Вкратце
Предыдущие хозяева сделали довольно удобную перепланировку в квартире в сталинке, но во время нового ремонта ее все равно пришлось поменять. Дизайнер разделила санузлы и выделила место под кладовку — с системами хранения здесь точно нет проблем.
Подробности
В этой квартире в доме советской постройки будет проживать семейная пара с взрослым сыном и брат заказчика. Перед дизайнером Натальей Мердиной поставили задачу оформить общие помещения и две жилые комнаты с учетом эргономики и удобства. Заказчики хотели получить функциональное пространство с большими системами хранения, среди которых минимум открытых полок.
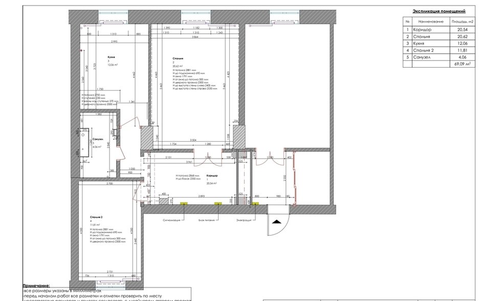
«На момент покупки квартиры в ней уже была произведена и узаконена перепланировка. Предыдущие жильцы объединили санузел в один и увеличили кухню за счет ванной комнаты — сейчас такие изменения согласовать не удастся, — рассказывает дизайнер. — Мы разделили санузел обратно на туалет и ванную, возвели стену для кладовой».
В спальне нужно было обязательно разместить рабочий стол для двоих: для этого зону отдыха отделили стеклянной перегородкой. У заказчиков очень большая библиотека: часть книг оставили в рабочей зоне спальни, остальное будет храниться в книжных шкафах в комнате сына. Для хранения хозяйственной утвари предусмотрели кладовую.
В прихожей выделили две большие гардеробные и шкаф. У заказчиков внушительная коллекция сувениров и посуды. Поэтому одна секция шкафа в прихожей выполнена со стеклянной дверкой и подсветкой: она рассчитана на демонстрацию десятков коллекционных солдатиков, которых собирает заказчик.
«В кухне помимо стандартных шкафов мы предусмотрели шкафы и пенал до потолка, чтобы разместить имеющуюся у хозяйки посуду, — рассказывает Наталья Мердина. — Дом газифицирован, газовую варочную панель мы оставили на законном месте, а электрический духовой шкаф установили в пенал. Все системы хранения, кухню и корпусную мебель мы будем заказывать у местных фирм».
Заказчики хотели создать довольно минималистичный интерьер, поэтому в качестве отделки во всех помещениях выбрали краску. Санузлы полностью отделаны плиткой, преимущественно без рисунков и фактур.
«В ванной мы столкнулись с небольшой проблемой: канализационный стояк и трубы были размещены по центру стены в ванной и занимали место. Раньше здесь была целая система для доступа к коммуникациям: надо было вытащить мраморную задвижку под зеркалом тумбы, отодвинуть тяжеленную тумбу и очень низко присесть, — делится автор проекта. — Я предложила поднять все вентили до уровня груди, сделать нишу для коммуникаций и встроить в эту нишу зеркало-шкафчик — предварительно у него сняли заднюю панель. Получилось очень красиво и удобно: зеркало полностью открывает доступ к стояку, а в закрытом виде смотрится как обычное зеркало с подсветкой».
Хозяин квартиры родом из солнечной Греции, поэтому главным требованием к цветовой гамме было наличие теплых бежевых, молочных, ванильных цветов. Исключение сделали только в комнате сына: там три светло-серые стены и одна выкрашена в глубокий синий.
Изначальная задумка была сделать кухонный гарнитур двухцветным: серый, «под бетон», низ и молочный верх. Но при заказе кухни заказчик влюбился в фасады ванильного цвета. «Чтобы гармонично вписать все эти цвета, я поменяла цвет стен с бежевого на теплый светло-серо-зеленый, добавила серо-фиолетовые стулья. Получившийся интерьер вызывает приятные ассоциации», — рассказывает дизайнер.
Кровать, диван, обеденный стол, почти все светильники сразу нашли на INMYROOM. «Они идеально нам подходили, долго искать не пришлось, — говорит Наталья Мердина. — Прикроватные тумбы планировали также заказать на сайте, но, к большому сожалению, их сняли с производства. Сейчас ищем похожие. Рабочие кресла заказчикам подарили друзья, а обеденные стулья выбрали вживую в мебельном центре».
Планировка
Бренды, представленные в проекте
Холл
Отделка: краска, Little Greene
Освещение: встраиваемый светильник и потолочный светильник, Arte Lamp; настенный светильник Magic Box, Cosmo
Комната сына
Отделка: краска, Little Greene
Мебель: диван-кровать Kansas, «ОГОГО Обстановочка!»; компьютерное кресло Rota, Woodville
Освещение: бра, Nowodvorski; потолочный светодиодный светильник Тао, Citilux
Спальня
Отделка: краска, Little Greene
Мебель: кровать из дуба с высоким изголовьем, Partisan
Текстиль: на заказ, Togas
Освещение: бра и потолочный светодиодный светильник, Eglo; встраиваемый светильник, Arte Lamp
Кухня
Отделка: краска, Little Greene; керамогранит Allmarble Frappucino Lux
Мебель: стол, Unika
Смесители: Omoikiri
Освещение: бра, Maytoni; трековые подвесы, SLV
Санузел
Отделка: керамогранит, NovaBell Imperial
Напольное покрытие: керамогранит, Kerranova
Cанфаянс: унитаз подвесной, BelBagno, с кнопкой смыва Geberit Delta; рукомойник, Melana; гигиенический душ, Lemark
Освещение: Arte Lamp
Ванная комната
Отделка: керамогранит и мозаика, Kerranova; плитка, Equipe
Напольное покрытие: керамогранит, Kerranova
Мебель: зеркало-шкаф, «Акватон»
Санфаянс: душевая панель, Alvaro Banos; полотенцесушитель электрический, Domoterm
Освещение: потолочный светильник Bagno, ST Luce
Хотите, чтобы ваш проект был опубликован на INMYROOM? Присылайте фотографии интерьера на wow@inmyroom.ru






















