Вкратце
В небольшой квартире дизайнер выделил место для просторной кухни-гостиной и оставил изолированной спальню. Для хранения придумали авторские шкафы-купе и стеллажи. Они выполняют двойную функцию: используются по прямому назначению и расширяют пространство за счет стеклянных дверей с отражающим эффектом.
Подробности
Заказчица — молодая девушка — обратилась к Руслану Просвирину, чтобы превратить бетонные стены новой квартиры в уютное комфортное жилье.
Важно было продумать зонирование помещений, разместить в прихожей необходимые системы хранения, установить в кухне линейный гарнитур, предусмотреть шкаф для сувениров и вина, сделать изолированную спальню. Со всеми задачами в итоге справились.
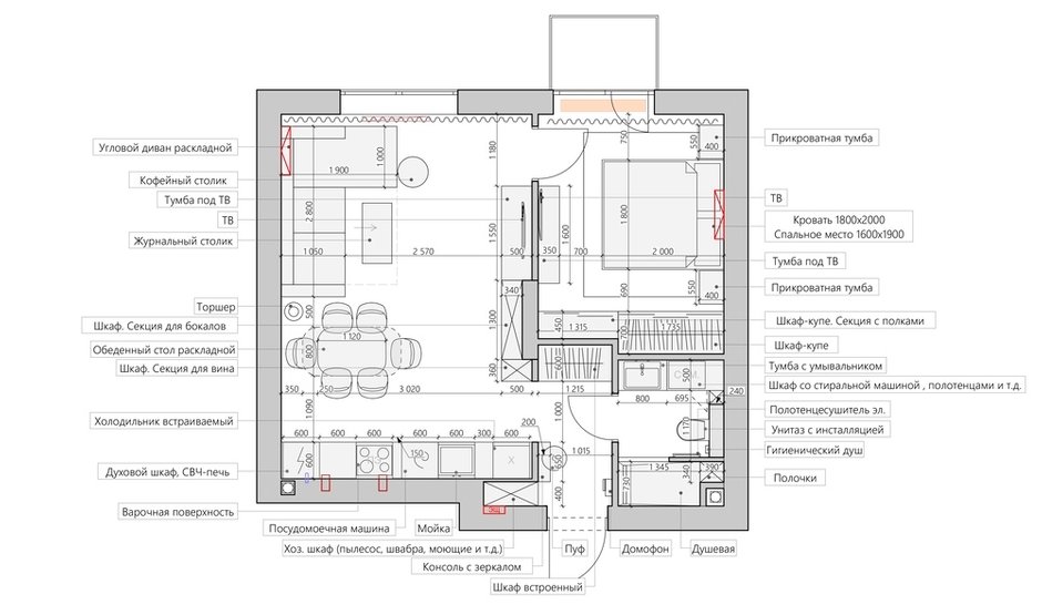
Квартира — так называемая «полуторка». По плану застройщика кухонный гарнитур устанавливается ближе к входной двери, зона гостиной располагается у окна и есть еще одна комната с отдельным входом. Руслан Просвирин предложил сделать вход в спальню из гостиной, чтобы использовать освободившееся место для систем хранения.
Стены покрашены, потому что это практично, на полу использован ламинат, в прихожей, санузле и кухонной зоне добавили напольную плитку.
«Особенностью проекта стало объединение нейтральных и контрастных оттенков, — рассказывает Руслан Просвирин. — В зоне ТВ мы использовали латунные вставки разной ширины, чтобы создать интересный ритмичный ряд. За диваном применили шпонированные панели, они поделены на разные сегменты: гладкие и рифленые — это создает уникальную игру фактур. Дополнительной фишкой стала раскладка ламината „французской елочкой“».
Заказчица хотела очень контрастный и уютный санузел: в итоге здесь расположили умывальник с тумбой, на стене большое зеркало с подсветкой. Дальше — шкаф со стиральной машиной и хозяйственными принадлежностями, также есть унитаз с гигиеническим душем и душевая.
Основной идеей дизайнера было разделить санузел на зоны и выделить их контрастными цветами, для этого использовали два разных оттенка керамогранита.
Два шкафа-купе расположены в спальне — здесь хранится основной объем одежды. В прихожей встроили шкаф для сезонных вещей и верхней одежды. В гостиной по чертежам дизайнера будет изготовлен шкаф с прозрачными дверками для хранения красивого декора и сувениров.
Верхний ряд кухонных шкафов закрывается фасадами из дерева, здесь использовали теплую подсветку, чтобы создать уютную атмосферу. Кухонный фартук сделали из тонированного стекла, это позволило создать эффект глубины комнаты за счет отражения.
Для оригинальности в кухне поставили дизайнерские стулья цвета марсала и добавили к ним акцентные — с обивкой "гусиная лапка". Раскладной стол овальной формы подчеркнули стильной люстрой.
В поддержку рейкам на стене гостиной придумали фрезерованные реечные фасады тумбы под ТВ и встроенного шкафа в прихожей. Вся композиция выглядит стильно: каждый элемент здесь продуман. Возле дивана поставили низкий дизайнерский кофейный столик: он добавляет оригинальности пространству.
Планировка
Бренды, представленные в проекте
Холл
Отделка: краска, Dulux
Напольное покрытие: керамогранит, Rex Ceramiche
Мебель: пуф, DG Home
Техника: видеодомофон, Hiper
Освещение: встраиваемые светильники, Donolux
Гостиная
Отделка: краска, Dulux; декоративная штукатурка, Derufa; декоративная панель, Volcraft
Напольное покрытие: керамогранит, Rex Ceramiche
Мебель: стол, Woodville; стул, Elena Chair Replica; кофейный столик, La Forma
Ковер: Aurum Cosmo
Техника: телевизор, Samsung
Освещение: встраиваемые светильники, Donolux
Спальня
Отделка: краска, Dulux
Мебель: тумба Harma, Cosmo
Ковер: Enigma Balta
Техника: телевизор, Samsung
Кухня
Отделка: гипсовые панели, Paraline; краска, Dulux
Напольное покрытие: керамогранит, Rex
Смесители: Kludi
Освещение: встраиваемые светильники, Donolux
Ванная комната
Отделка: керамогранит, Rex; керамогранит, Vallelunga
Напольное покрытие: керамогранит, Rex
Санфаянс: душевая дверь, Wasserkraft; подвесной унитаз, Noken
Смесители: для раковины встраиваемый, Feramolli; душевой комплект, Ferolli; гигиенический душ скрытого монтажа, Bossini Paloma; инсталляция и клавиша смыва, Tece
Освещение: встраиваемые светильники, Donolux
Хотите, чтобы ваш проект был опубликован на INMYROOM? Присылайте фотографии интерьера на wow@inmyroom.ru




















