Вкратце
Это дом-дача для большой семьи, в нем проживает несколько поколений: от бабушки с дедушкой до внуков разных возрастов. Периодически приезжают гости и родственники, поэтому нужно было создать пространство, которое понравится всем.
Подробности
«Заказчики хотели светлый интерьер, тяготеющий к Скандинавии, простой и функциональный, — рассказывают дизайнеры из студии FoRRoomʼs. — Большое внимание уделялось материалам, использованным в проекте, их экологичности и износостойкости, а также технической стороне — кондиционированию и отоплению».
В процессе создания проекта в изначальном архитектурном проекте немного скорректировали перегородки, но в целом ничего не меняли. На первом этаже расположены общая зона кухни-столовой и гостиная с камином — это семейный очаг, вокруг которого собирается семья.
В доме несколько спален и детских комнат для заказчиков и членов их семьи, предусмотрели место для большой семейной библиотеки, а также для инфракрасной сауны на первом этаже. Фишка проекта — крытая терраса на втором этаже: она представляет собой зону отдыха с небольшой кухней для приготовления барбекю.
По желанию заказчика использовали инженерную доску с пробковым основанием. Это основное напольное покрытие везде, кроме санузлов. Стены покрасили, также использовали декоративную штукатурку, фотообои, фактурные обои, мебельные панели.
«Заказчику нравился сдержанный декор в виде простых карнизов, высоких в сечении — они стали отличным завершением высоких потолков. Еще одним пожеланием было отсутствие уровней и ниш в потолках, точечного освещения и спотов», — говорят авторы проекта.
Семейную библиотеку разместили в закрытых стеллажах в общественных зонах: в холле на первом этаже, лестничном холле на втором этаже. Хранение в спальнях и гостевых устроено в нишах и на открытых полках в корпусной заказной мебели.
В выборе цветовой палитры дизайнеры придерживались сдержанных цветовых решений, с яркими акцентами. Дом находится в Ленинградской области, и заказчик просил немного разбавить серые оттенки природы, не перегружая интерьер.
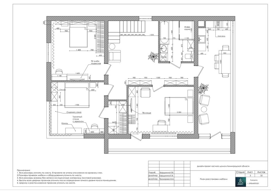
Планировка
Бренды, представленные в проекте
Холл
Отделка: краска, Tikkurila; лепной декор, Оrac Decor
Напольное покрытие: пробковое покрытие, Egger
Мебель: диван, Мoon; стол, Cosmo
Освещение: ARTE Lamp; Odeon Light
Кухня-столовая
Отделка: декоративный материал Microbeton art; краска, Тikkurila; лепной декор, Оrac Decor
Напольное покрытие: пробковое покрытие, Egger
Мебель: стол, E-style, стул, imodern - все INMYROOM; диван, Мoon; кресло Contour, Cosmo
Освещение: ARTE Lamp; Dairy Light Dome
Гостиная
Отделка: краска, Tikkurila; лепной декор, Оrac Decor
Напольное покрытие: пробковое покрытие, Egger
Мебель: диван, Мoon; журнальные столы, Cosmo
Освещение: ARTE Lamp; Odeon Light
Гостевая
Отделка: краска, Tikkurila; обои, Wallstreetstudio
Напольное покрытие: пробковое покрытие, Egger
Мебель: стол, ИКЕА; Zara Home; стул из литого полупрозрачного поликарбоната, Bradexhome; комод, The idea
Освещение: Eichholtz
Гостевая-детская
Отделка: обои, Affresco; краска, Tikkurila
Напольное покрытие: пробковое покрытие, Egger
Мебель: стол, Garda décor; La Redoute; стул, E-style; раскладной диван, Evald; стеллаж Powell gold, Intelligent Design
Ванная комната
Отделка: плитка, Pamesa и Novogres
Напольное покрытие: плитка, Pamesa
Санфаянс: унитаз, Roca
Смесители: E.C.A.
Освещение: ARTE Lamp
Прихожая
Отделка: краска, Tikkurila; лепной декор, Оrac Decor
Напольное покрытие: пробковое покрытие, Egger
Мебель: полка, ИКЕА; зеркало на ремне, Banska Degree; банкетка, Pawai
Холл 2-го этажа
Отделка: краска, Tikkurila; лепной декор, Оrac Decor
Напольное покрытие: пробковое покрытие, Egger
Мебель: стол, Zara Home; кресло, LASKA Family, INMYROOM
Освещение: Odeon Light; ARTE Lamp
Спальня дедушки
Отделка: краска, Tikkurila; лепной декор, Оrac Decor
Напольное покрытие: пробковое покрытие, Egger
Мебель: стул, La Forma (ex Julia Grup); тумба Stanmore, Сosmo; кровать, LASKA Family в темно-зеленом вельвете; консоль, TorySun
Освещение: Lumion
Спальня заказчицы
Отделка: краска, Tikkurila; лепной декор, Оrac Decor; обои, Fresq
Напольное покрытие: пробковое покрытие, Egger
Мебель: стул Warby Arm, Gramercy; тумба, Сosmo; кровать, LASKA Family; консольный стол, The Idea; тумба, Intelligent Design; комод, «Этажерка»
Освещение: Odeon Light
Спальня бабушки
Отделка: краска, Tikkurila; лепной декор, Оrac Decor; обои, Fresq
Напольное покрытие: пробковое покрытие, Egger
Мебель: стул из литого полупрозрачного поликарбоната, Bradexhome; тумба, The Idea; кровать, LASKA Family; тумба, La Redoute; стол, TorySun; кресло, «ОГОГО Обстановочка!»; столик, Zara Home
Освещение: Odeon Light
Ванная комната
Отделка: плитка — Vives, Saloni, Wow
Напольное покрытие: Wow
Санфаянс: унитаз, Aquanet; раковина, Melana; ванна, Bright
Смесители: E.C.A.
Освещение: ARTE Lamp
Терраса
Отделка: краска, Тikkurila
Напольное покрытие: пробковое покрытие, Egger
Мебель: кресло, Bay, обеденный стол Milton, стул Milton, кофейный стол Triple X, все — Cosmo
Освещение: Arte Lamp
Хотите, чтобы ваш проект был опубликован на INMYROOM? Присылайте фотографии интерьера на wow@inmyroom.ru




































