Вкратце
Главное достоинство этой четырехкомнатной квартиры в Санкт-Петербурге — открытая терраса площадью 36 кв. м. Здесь нужно было предусмотреть место для семейных ужинов, барбекю, занятий йогой и отдыха. Ввиду отсутствия большого бюджета оформлять интерьер решили минималистично, по-скандинавски. В то же время с функциональной точки зрения в квартире есть все необходимое даже для двух кошек хозяев.
Подробности
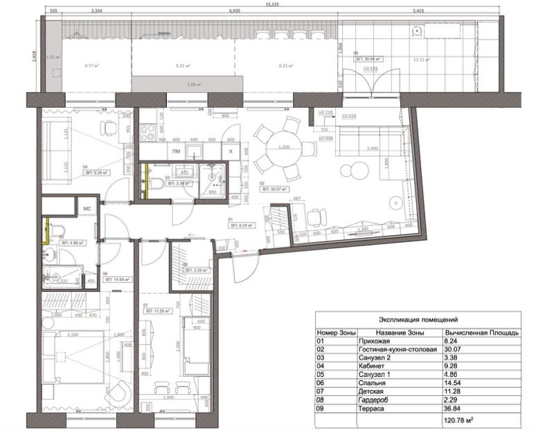
Заказчики проекта — семейная пара с сыном и дочерью (3 и 7 лет) и двумя питомцами. Они хотели получить спокойный интерьер без излишеств, поэтому в выборе стиля остановились на скандинавской модели. В то же время все комнаты должны были получиться максимально функциональными. В квартире нужно было предусмотреть кухню-гостиную-столовую, детскую, спальню с отдельным санузлом и кабинет, который в дальнейшем должен будет отойти старшей дочери.
«Квартира в ЖК Skandi Klubb была спроектирована шведской архитектурной мастерской. В изначальной планировке чувствовалось, что помещения продуманны, хотя и компактны. Но когда много всего нужно разместить, начинаешь планировать комнаты, как вагончики, где каждый уголок и сантиметр на счету», — рассказывают дизайнеры.
В квартире сделали незначительную перепланировку. При входе в гостиную выстроили перегородку, которая отделяет прихожую от гостиной-столовой. За перегородкой расположились сиденье и шкафчик для одежды. Убедившись, что у детей хватает места на все необходимое, выделили за счет площади прихожей и кусочка комнаты отдельную гардеробную.
Главной особенностью квартиры была большая терраса, на которой хозяева мечтали завтракать-обедать всей семьей, жарить барбекю, лежать в гамаке и заниматься йогой. Здесь появились столы, подвесное кресло, скамья с клумбой и удобные лежаки. Но это была не единственная многофункциональная зона.
«Пожеланий было много и по кухне-гостиной: пространство для общения, телевизор, но не в главной роли, домашняя библиотека, фортепьяно, небольшой рабочий уголок, а также место для хранения игрушек, ящик-грядка для зелени, ступени на террасу, на которых можно сидеть, и обеденный стол. И все это на 41 кв. м», — делятся впечатлениями о проекте дизайнеры.
Санузлы получились по-скандинавски лаконичными. Изначально один из них был просто туалетной комнатой. В него установили душевую кабину. Там же предусмотрели и туалет для кошек.
Наличие в доме домашних животных пришлось учитывать и при выборе отделочных материалов — они должны быть износостойкие. Предпочтение отдали краске Sherwin-Williams, простой по геометрии плитке Imola Ceramica, Equipe Ceramicas, CESI ceramica и паркетной доске. В обоях предпочтение отдали скандинавским производителям.
В основу цветового решения интерьера лег теплый «стокгольмский белый». К нему подбирали яркие акценты в декоре и мебели. Из-за ограниченного бюджета многие предметы были куплены в ИКЕА. «Навесную библиотеку пришлось все-таки делать на заказ. Угол комнаты со шкафами был не прямой, поэтому готовые модули не подходили», — комментируют дизайнеры.
Планировка
Бренды, представленные в проекте
Отделка: плитка, Equipe Ceramicas, Imola Ceramica; обои, England & Co; плинтус, Orac Dеcor
Напольное покрытие: паркетная доска, Barlinek
Мебель: табурет, Cosmorelax; стул, Premier Group; cтолик журнальный, La Redoute; раскладной стол, Unika Moblar; диван и зеркало, ИКЕА
Освещение: подвесной светильник, Camborne; настенный светильник, Eglo
Спальня
Отделка: обои, England & Co; краска, Sherwin-Williams; молдинг, карниз и плинтус, все — Orac Decor
Напольное покрытие: паркетная доска, Barlinek
Мебель: комод, La Redoute; прикроватная тумба Case, The IDEA; табурет Foresto, Cosmo, INMYROOM; кресло и ковер, ИКЕА
Освещение: напольный светильник, ИКЕА; бра Ornato, INMYROOM
Отделка: обои, York; краска, Sherwin-Williams
Напольное покрытие: паркетная доска, Barlinek
Мебель: двухэтажная кровать и шкафы, ИКЕА; стул, Stokke
Освещение: настенные светильники, Cosmorelax
Отделка: краска, Sherwin-Williams; керамическая плитка, Equipe Ceramicas, Italon Ceramica, CESI ceramica
Мебель: зеркало с подсветкой, INMYROOM
Сантехника: кнопка для инсталляции, Geberit; полотенцесушители, «Сунержа»; раковины накладные, Roca, Ravak; подвесной унитаз, Roca; душевая стойка и гигиенический душ, Hansgrohe
Смесители: Hansgrohe
Освещение: Astroligth; Arte Lamp
Отделка: краска, Tikkurila Euro Power 7, краска, Sherwin-Williams
Напольное покрытие: паркетная доска, Barlinek
Мебель: стул, Cosmorelax; другие предметы мебели, ИКЕА
Освещение: светильник настенный, Cosmorelax; светильник потолочный, Arte Lamp
Хотите, чтобы ваш проект был опубликован на INMYROOM? Присылайте фотографии интерьера на wow@inmyroom.ru





























