Вкратце
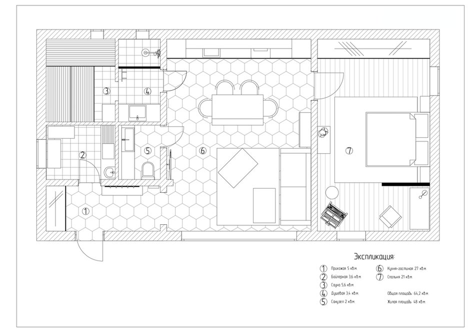
Площадь этого домика всего 64 квадратных метра, что даже для квартиры немного. Но здесь нашлось место для гостиной, вместительной кухни, спальни с рабочим местом и душевой.
Подробности
Заказчики живут в загородном доме в деревне Холмы Истринского района. Но уютного места для друзей и родственников не хватало. Поэтому был построен небольшой гостевой дом, его оформлением занималась Дарья Власова.
Основной задачей было сохранить уют деревянного дома, используя натуральные отделочные материалы и дополняя их яркими жизнерадостными акцентами.
«Когда я начала работу, уже был создан архитектурный проект и стояла „коробка“ с несущими стенами из бруса. Так как изменение планировочного решения было невозможно, разделение на зоны было довольно условным, — вспоминает дизайнер. — В спальне для зонирования спального и рабочего мест была сделана перегородка из бука со стеклянными вставками — это позволило сохранить естественное освещение комнаты».
Пространство кухни-гостиной зонировали с помощью консольного стола. А напольную плитку выложили таким образом, чтобы темные цвета в кухонной зоне плавно переходили к более светлым в зоне отдыха. Остальную площадь занимают санузлы и сауна.
Дом сделан из клееного бруса, поэтому возникли определенные ограничения в выборе отделки. Например, из-за неизбежной усадки дома нельзя было использовать настенную плитку. Поэтому дизайнер предложила выложить кухонный фартук 3Д-панелями из гипса: их легко демонтировать в случае необходимости. В санузлах стены отделали лиственницей и покрыли специальным защитным лаком.
«Еще одной проблемой стала открытая проводка. Использовать ретропровода принципиально не хотелось. Поэтому провода скрыли в стальных трубках малого диаметра — мне показалось, что это удобное решение для деревянных домов. Но чтобы использовать такой прием, нужно заранее предусмотреть нестандартную толщину плинтуса. Также не удалось реализовать идею с установкой чугунных радиаторов: при точном расчете необходимыми критериями обладали только современные стальные радиаторы отопления», — рассказывает Дарья Власова.
Часть мебели для проекта изготовили на заказ: например, по эскизам дизайнера был создан прямой диван с двумя приставными пуфами. С их помощью можно обустроить двуспальное место для гостей, зону для общения, поставив пуфы напротив дивана, или же сделать удобный угловой диван. А высокое изголовье дополняют подвесные светильники с приглушенным освещением. Задняя стенка книжного шкафа обтянута диванной тканью для продолжения единой композиции.
В процессе реализации дизайн-проекта столкнулись с финансовыми трудностями. Пришлось использовать смекалку: например, в санузле установили навесные кухонные шкафы ИКЕА с фасадами БУДБИН и зеркало, окрашенное краской Tikkurila для ванн. Столешница — мебельный щит, покрытый той же краской. В душевой тумба для раковины изготовлена из остатков мебельного щита, а ножки — из сантехнических труб, их окрасили из баллончика в медный цвет. В спальне тоже использовали комод из ИКЕА.
«В доме большие окна, и особое внимание хотелось уделить текстилю. Но, пересмотрев многие коллекции, мы так и не нашли подходящего варианта. Пока я не отправилась выбирать ткань для нового пальто. В итоге вместо пальто я сшила из пальтовой ткани шторы. В спальне они более сдержанны, а в гостиной создают уют за счет клетки и ярких цветовых полос», — говорит Дарья Власова.
Планировка
Бренды, представленные в проекте
Холл
Отделка: лак с колеровкой для дерева, Tikkurila
Напольное покрытие: керамогранит, Natucer
Гостиная
Отделка: лак с колеровкой для дерева, Tikkurila
Мебель: стулья, Kartell; мягкая мебель, KORB
Ковер: Dovlet
Текстиль: Zara Home
Декор: картина в гостиной, Анастасия Набирочкина
Спальня
Отделка: лак с колеровкой для дерева, Tikkurila
Напольное покрытие: ламинат, Kanindl
Мебель: комод, ИКЕА
Ковер: Dovlet
Декор: картина в спальне над изголовьем, Вера Альхова; две другие картины, Георгий Баронин
Ванная комната
Мебель: шкафы и зеркало, ИКЕА
Хотите, чтобы ваш проект был опубликован на INMYROOM? Присылайте фотографии интерьера на wow@inmyroom.ru

















