Вкратце
Проект создан для пары молодых шахматистов. Чтобы разместить в квартире все необходимые зоны, пришлось сделать перепланировку. Так из двушки получилась трешка с просторной спальней и кабинетом, который легко переделать в детскую в будущем. Отделку и декор подбирали осторожно под специфическую тематику, близкую хозяевам квартиры. На этапе планирования проект получил рабочее название «Шах и мат».
Подробности
Заказчики проекта — молодая семейная пара, чья жизнь тесно связана с шахматами. Молодой человек — гроссмейстер, а девушка — основательница сети шахматных школ для детей. Их квартира должна была соответствовать главному увлечению хозяев.
Дизайнер в первую очередь обыграла шахматную клетку в интерьере. Пол в квартире имитирует доску, сочетая темный паркет и светлую плитку. Контраст черного и белого или темного и светлого прослеживается и в подобранной мебели.
«Для ярких акцентов был выбран синий цвет, символизирующий знания, силу, стихии воды и воздуха — стихии заказчиков. Для кабинета предпочли зеленый цвет стен, так как он успокаивает и помогает сосредоточиться», — поясняет дизайнер.
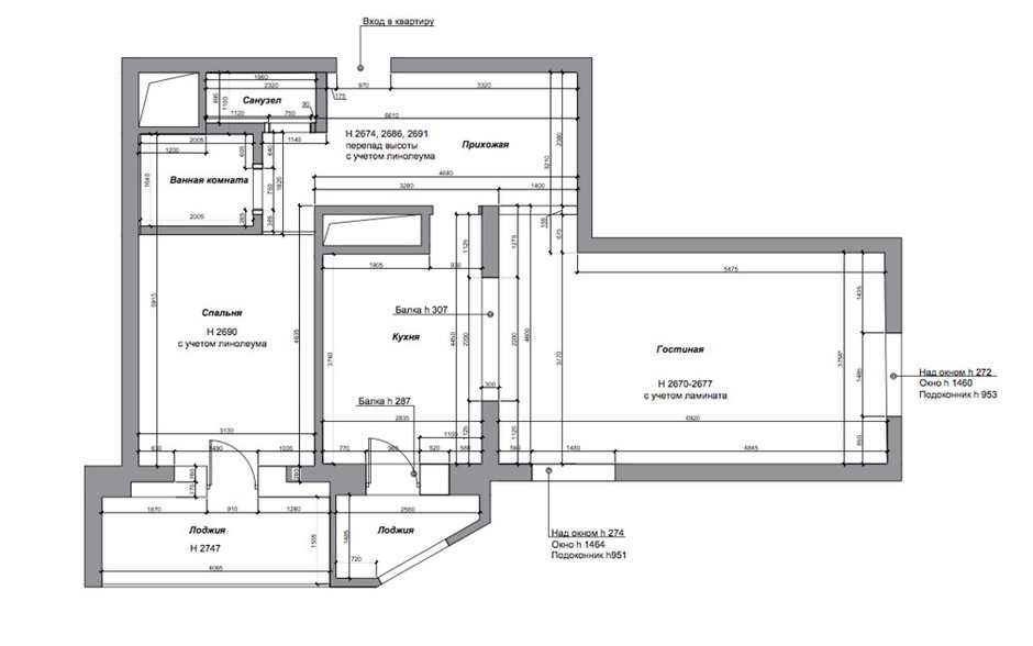
Главной задачей проекта было грамотно продумать зонирование пространства, сделать его практичным и удобным. Изначально квартира была двухкомнатной, с двумя лоджиями, двумя окнами в гостиной и раздельным санузлом. В результате перепланировки гостиную разделили на две комнаты: кухню-гостиную и изолированный кабинет. Последний может легко трансформироваться в детскую в будущем без инженерных изменений.
Спальню объединили с одной из лоджий, где установили панорамное остекление с видом на лес. Таким образом в комнате появилось место для большого платяного шкафа, туалетного столика и кресла для отдыха.
Туалет и ванную тоже было решено объединить. По-другому воплотить мечту заказчика о просторной ванной с душевой не получилось бы.
Тщательно продумывались в квартире и системы хранения. Старый вход в гостиную перекрыла новая вместительная гардеробная. Войти в нее можно со стороны прихожей. В кабинете установили шкаф для книг и документов, а также витрину для кубков. Эту мебель изготавливали на заказ из натуральных материалов, чтобы создать по-настоящему домашнюю атмосферу.
Стиль проекта можно отнести к современной классике. В интерьере есть все характерные для нее элементы: лепнина, раскладка плитки на полу, камин с порталом, классическое оформление дверей, фасадов и кабинетной мебели. Однако дизайнер отмечает: «На сегодняшний день многие проекты не несут конкретного стилистического направления, а больше передают индивидуальность заказчиков».
Планировка
Бренды, представленные в проекте
Отделка: краска, Little Greene
Напольное покрытие: керамогранит, Atlas Concorde
Мебель: банкетка, «Гарда Декор»; консоль, «ОГОГО Обстановочка!»; напольное зеркало, Louvre, INMYROOM
Декор: лепнина, «Европласт»; серебряный жук и ваза, Kare
Освещение: потолочный светильник, MW-light; накладные светильники, Rullo; лампы, «Гарда Декор»
Гостиная
Отделка: краска, Little Greene
Напольное покрытие: инженерная доска, Coswick
Мебель: угловой диван, «8 марта», декоративный камин, Real Flame
Ковер: Art de Vivre
Декор: лепнина, «Европласт»; серебряный жук, ваза, журнальные столики, все — Kare; картины, Анастасия Гейдор; подсвечники, ИКЕА
Освещение: бра и подвесная люстра, MW-light
Отделка: краска, Little Greene
Напольное покрытие: инженерная доска, Coswick
Мебель: прикроватные тумбочки, «Гарда Декор»; туалетный столик, DG Home; кресло и подставка для ног, Eames
Текстиль: подушки, плед, покрывало на кровать, все — Zara Home
Декор: лепнина, «Европласт»; черные вазочки, Zara Home; шкатулка, Le Home
Освещение: бра и подвесная люстра, MW-light
Отделка: краска, Little Greene
Напольное покрытие: инженерная доска, Coswick
Декор: лепнина, «Европласт»; картины, Анастасия Гейдор; черные вазочки, Zara Home
Освещение: подвесная люстра, MW-light; настольная лампа, Eglo
Отделка: краска, Little Greene; плитка, Equipe
Напольное покрытие: керамогранит, Atlas Concorde
Мебель: столешница и обеденный стол, «Лидер»; стулья, «4 ножки»
Гарнитур: «Стильные кухни»
Декор: лепнина, «Европласт»; посуда, вазы, подсвечник, все — Zara Home
Бытовая техника: Neff
Смесители: BLANCO
Освещение: люстра, MW-Light; накладные светильники, Rullo
Отделка: плитка, Atlas Concorde
Напольное покрытие: керамогранит, Atlas Concorde
Унитаз: Villeroy & Boch
Кабина: Ravak
Смесители: Hansgrohe
Освещение: точечное освещение, Arte Lamp
Отделка: краска, Little Greene
Напольное покрытие: керамогранит, Atlas Concorde
Освещение: точечное освещение, Arte Lamp
Хотите, чтобы ваш проект был опубликован на INMYROOM? Присылайте фотографии интерьера на wow@inmyroom.ru



























