Вкратце
На четырех этажах дома дизайнеры разместили личные комнаты, рабочие кабинеты и места для отдыха для каждого члена семьи. Площадь помещений в итоге оказалась не очень большой, поэтому использовали только самую необходимую мебель. При этом место для полноценной гардеробной все равно нашли.
Подробности
В таунхаусе будет проживать супружеская пара с маленьким сыном. Муж-программист и жена-психолог работают дома удаленно, а сын пока еще не ходит в школу. Для них дизайнеры Евгения Ермолаева и Людмила Самойлова создали интерьер, в котором учли все привычки и образ жизни хозяев.
Это типовой проект, в коттедже четыре этажа, и в задачи дизайнеров входили поэтажная разработка планировочного решения, зонирование, проектирование лестницы и проема для входа на мансардный этаж.
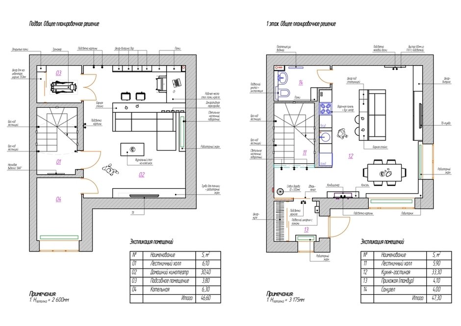
Цокольный этаж — территория мужа, она включает зону отдыха с диваном и проектором с экраном, барную стойку, мини-бар и рабочую зону. Барная стойка с подвесными светильниками над ней — условная граница между рабочей зоной и зоной отдыха. В подсобном помещении размещены тренажер и шкаф для хранения хозяйственных принадлежностей.
На первом этаже расположены общая зона кухни-гостиной, гостевой санузел, тамбур, прихожая и лестничный холл. В центре помещения вокруг дивана и барной стойки организовано круговое движение. Компактный кухонный гарнитур расположен как бы в нише и при входе в гостиную скрыт от глаз. «Мы постарались максимально отодвинуть мебель от стен, это дает ощущение большего пространства», — говорит Евгения Ермолаева.
На втором этаже — приватная зона отдыха для всей семьи, она включает спальню, детскую, гардеробную и ванную комнату. Помещения небольшие по площади, поэтому главной задачей было не загромождать их мебелью и добавить больше цвета, яркости, индивидуальности.
«Гардеробная — это комната, без которой редко обходится современный дизайн-проект. Здесь она условно поделена на две зоны — для мужа и для жены, — которые находятся по разные стороны от окна. На этапе проектирования мы также предусмотрели место для гладильной доски и небольшого телевизора», — рассказывают авторы проекта.
Мансардный этаж — личное пространство для заказчицы, с рабочим местом, большим количеством стеллажей для книг и сувениров, диваном со спальным местом, а также в будущем — небольшим биокамином. Когда ребенок подрастет, пойдет в школу и станет более самостоятельным, мансарду планируют отдать в его распоряжение, а в детской комнате сделать рабочий кабинет.
Для отделки помещений использовали привычные материалы: обои и ламинат в жилых комнатах, керамический гранит и плитку в «мокрых» зонах. В подвале и мансарде для пола выбрали ковровое покрытие: оно не бликует, что важно для домашнего кинотеатра в подвале, по нему приятно и тепло ходить босиком, оно поглощает звук шагов.
Изголовье кровати в спальне оформили с помощью МДФ-панелей с текстурой дерева, декором служат гипсовые 3D-панели с изображением растительных мотивов. Этот мотив поддерживает текстиль приятного серо-зеленого оттенка.
Цветовая гамма ванной перекликается со спальней — здесь, правда, зеленый оттенок приобретает более свежий и насыщенный тон. Интересна отделка стены вдоль ванной: она выполнена из металлической конструкции и стеклянной панели с фотопечатью.
Детская — наиболее яркая комната. Здесь преобладает сине-голубая гамма. Чтобы зрительно увеличить небольшое помещение, дизайнеры использовали горизонтальное членение стен с помощью молдингов и обоев с разным рисунком.
Практически вся корпусная мебель изготовлена на заказ по индивидуальному проекту и эскизам дизайнеров. На мансардном этаже, который имеет сложную конфигурацию и излом крыши, это позволило максимально удобно встроить стеллажи в существующее пространство. Исключением стала детская комната, которая должна расти вместе с ребенком и требует частого обновления. Здесь стоит готовая мебель из ИКЕА.
Планировка
Бренды, представленные в проекте
Холл
Отделка: обои, Marburg
Напольное покрытие: керамический гранит, Kerama Marazzi
Освещение: светильники, Donolux
Кухня-гостиная
Отделка: обои, Marburg; магнитно-грифельная краска, IdeasMarket
Напольное покрытие: ламинат, Pergo; керамогранит, Kerama Marazzi
Мебель: барные стулья, ИКЕА; диван, MOOH; стол обеденный, Venice Aero; двери, ProfilDoors
Декор: декор, Moon-Stores; картина «Лето», автор Владимир Дудкин, галерея SmartGallery
Освещение: люстра, Barrus; светильники, Donolux
Спальня
Отделка: обои, Marburg; гипсовые 3D-панели, Artpole
Напольное покрытие: ламинат, Pergo
Мебель: кровать, Ormatek
Декор: картина, SmartGallery; декор, Moon-Stores
Освещение: бра и накладные потолочные светильники, Lightstar
Детская
Отделка: обои, Parato Ciao Bimbi
Напольное покрытие: ламинат, Pergo
Мебель: корпусная мебель, ИКЕА
Ковер: ИКЕА
Текстиль: ИКЕА
Декор: Moon-Stores
Освещение: светильники, Donolux
Ванная комната
Отделка: керамическая плитка, Marazzi
Напольное покрытие: керамический гранит, Kerama Marazzi
Мебель: фабрика, «Мария»
Санфаянс: унитаз, Roca
Техника: стиральная машина, LG
Освещение: светильники, Donolux
Подвал
Отделка: декоративный отделочный кирпич, White Hills; обои, Marburg
Напольное покрытие: ковролин, Condor
Мебель: диван и кресло, ИКЕА
Декор: Moon-Stores; картина «Ночной Амстердам», автор Штормит Лиза, галерея SmartGallery; графика «Композиция №4», автор Софья Пятницкая, галерея SmartGallery
Освещение: светильники, Lightstar
Мансарда
Отделка: цифровая фреска, WallStreet; обои, Marburg
Напольное покрытие: ковролин, Condor
Мебель: диван, MOOH
Декор: Moon-Stores
Освещение: светильники, Lightstar
Хотите, чтобы ваш проект был опубликован на INMYROOM? Присылайте фотографии интерьера на wow@inmyroom.ru
















