Вкратце
Заказчицы — мама и дочь, современные, активные, ценят комфорт и обладают хорошим вкусом. Перед дизайнерами стояла задача разработать проект однокомнатной квартиры под сдачу, учитывая, что в дальнейшем там будет жить одна из заказчиц. То есть интерьер должен быть достаточно универсальным и в то же время отвечать пожеланиям хозяйки. Например, балкон необходимо было утеплить и обустроить там рабочее место с полками для книг и бумаг, а на кухне — выделить нишу для кладовой.
«Уже на этапе обсуждения мы четко определили цветовую гамму и основное стилевое направление — современная классика. Одним из предпочтительных материалов был мрамор, мы решили обыграть это и продумали современную нескучную трактовку», — рассказывают авторы проекта.
Подробности
В проекте было важно спроектировать отдельную гардеробную в спальне, создать на балконе несколько функциональных зон, предусмотреть системы хранения для одежды, книг, бытовых предметов, а также не забыть про удобную кухню.
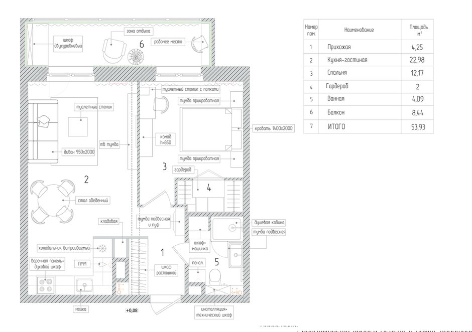
В результате дизайнеры перенесли вход в спальню, чтобы увеличить площадь кухни и сохранить просторный проход в гостиную. В ванной спроектировали перегородку, чтобы отделить зону душевой, а в получившуюся нишу отлично встал хозяйственный шкаф в потолок со стиральной машиной и местом для хранения бытовых принадлежностей. В нише сделали инсталляцию с подвесным унитазом и техническим шкафом, куда спрятали бойлер.
Для отделки стен во всех комнатах выбрали интерьерную краску Tikkurila. В кухне-гостиной использовали вставку с фреской, чтобы выделить обеденную зону. А цветовые вставки в зоне гостиной делят стену с молдингами и придают динамики интерьеру. В спальне также использовали фреску и обои.
В качестве напольного покрытия взяли ламинат Quick-Step серо-бежевого оттенка, имитирующий дубовую доску. В прихожей и на балконе — керамогранит Italon, в ванной — керамическая плитка-гексагон Equipe. Для отделки стен в ванной использовали плитку под мрамор в двух цветах: крупноформатная плитка создает вертикальные линии, что зрительно вытягивает помещение.
«Что касается хранения, мы предусмотрели различные системы для книг, одежды, бытовых предметов. Все встроенные системы хранения будут выполнены на заказ и под потолок, именно поэтому они кажутся менее заметными, но при этом максимально функциональными. Все пространство задействовано с умом, а хозяйке не придется заботиться о пыли, скопившейся на шкафах, — говорят авторы проекта. — В кухне в нише появилась небольшая, но вместительная кладовая с фасадами-невидимками, которые сливаются с плоскостью стены. В прихожей — встроенный шкаф с распашными дверями и зеркальной вставкой, а в гардеробной задействовано все пространство под хранение одежды, обуви, есть место для гладильной доски и спальных принадлежностей».
По стилистике получился микс современного и классического стилей. На нейтральном фоне несколько цветовых акцентов, в каждом помещении — своя цветовая гамма и свое настроение. Например, контраст оливково-зеленого, жемчужно-серого и дымчато-белого тонов, золотая фурнитура, фреска с подсветкой создают торжественно-праздничную обстановку в кухне-гостиной. А в спальне сливочно-лососевые тона перекликаются с кремовыми, приглушенными синими и насыщенными терракотовыми оттенками: что вместе с обилием текстиля и мягких велюровых поверхностей делает пространство нежным и уютным.
Планировка предусматривает два выхода на лоджию — со стороны гостиной и со стороны спальни. Именно поэтому дизайнеры решили объединить на балконе цветовые акценты этих помещений: зеленый и терракотовый, получилось ярко.
Цветовые вставки служат не только декоративным оформлением интерьера. Они визуально делят пространство на функциональные зоны и помогают расставить акценты, выгодно обыграть планировку. «Например, в спальне цветовая вставка идет по периметру комнаты на высоте 850 мм, по уровню изголовья кровати. Комод и туалетный столик также расположены на заданной высоте. От уровня вставки вверх по стене идут молдинги — такие же вертикали можно заметить и на принте на обоях. Этот прием в сочетании со светлым фоном стен создает иллюзию высоких потолков.
А на балконе мы использовали молочный оттенок краски по длинным стенам, в то время как торцевые части оформили контрастным оливково-зеленым — это визуально делает помещение не таким узким и вытянутым», — делятся секретами дизайнеры.
Вся корпусная мебель будет выполнена на заказ по эскизам дизайнеров. Остальные позиции подбирали по цвету, стилю и фактуре. Хотелось создать не просто стильный, но и эргономичный, уютный интерьер.
Мягкая мебель выполнена преимущественно из велюра — он создает дополнительный уют и придает нотку роскоши. В качестве декора использовали предметы из ИКЕА, H&M Home, Zara Home.
Планировка
Бренды, представленные в проекте
Холл
Отделка: краска, Tikkurila
Напольное покрытие: керамогранит, Italon; ламинат, Quick-Step
Мебель: пуф, Cosmo
Декор: Zara Home
Освещение: подсветка для картин, Favourite; точечный светильник, Lightstar
Гостиная
Отделка: краска, Tikkurila; фреска, Affresco; композиция из молдингов, «ДИКАРТ»
Напольное покрытие: ламинат, Quick-Step
Мебель: журнальный столик, Copenhagen
Ковер: Aurum Sand, Cosmo
Текстиль: подушки, Zara Home
Декор: Zara Home; H&M Home
Техника: LG
Освещение: точечный светильник, Lightstar; торшер, Markslojd
Спальня
Отделка: краска, Tikkurila; обои, Factura; композиция из молдингов, «ДИКАРТ»
Напольное покрытие: ламинат, Quick-Step
Мебель: кровать, Nest
Ковер: Zara Home
Текстиль: Zara Home; H&M Home
Декор: Zara Home
Освещение: точечный светильник, Lightstar; подвесной светильник и настольная лампа, Paulmann
Кухня
Отделка: краска, Tikkurila; керамогранит, Italon
Напольное покрытие: ламинат, Quick-Step
Мебель: стулья Brooke, StoreForHome
Бытовая техника: духовой шкаф, СВЧ-печь, все — Miele; вытяжка, Monsher; посудомоечная машина, AEG; встраиваемый холодильник, Electrolux
Смесители: Lemark
Мойка: Omoikiri
Освещение: точечный светильник, Lightstar; подвесной светильник, Eurosvet
Ванная комната
Отделка: краска, Tikkurila; керамогранит, Kerama Marazzi; керамогранит, Italon
Напольное покрытие: керамогранит, Carrara; плитка, Equipe
Мебель: тумба с раковиной, Am.Pm; шкаф-пенал, Onika
Сантехника: душевой уголок, Black & White; душевая система, Raiber; система инсталляции с унитазом, Grohe
Смеситель: D&K
Освещение: встраиваемый светильник, Lightstar
Декор: Zara Home; H&M Home
Лоджия
Отделка: краска, Tikkurila; композиция из молдингов, «ДИКАРТ»
Напольное покрытие: керамогранит, Italon
Мебель: кресло Livengood, Cosmо; кофейный столик Elia, Dutchbone
Декор: Zara Home; H&M Home
Освещение: точечный светильник, Lightstar; бра, Favourite
Хотите, чтобы ваш проект был опубликован на INMYROOM? Присылайте фотографии интерьера на wow@inmyroom.ru

























