Вкратце
Чтобы создать максимально комфортное пространство в квартире-студии, дизайнер не стала отказываться от полноценного спального места плюс обустроила гостиную для приема гостей. Как это получилось сделать на 36 метрах? Поменяли планировку и перенесли кухонный гарнитур в коридор.
Подробности
Заказчица — молодая девушка, недавно окончила институт и начала работать. Основное время проводит вне дома, по выходным любит готовить и приглашать друзей. В своей первой квартире хозяйка попросила создать современное, светлое и стильное пространство, при этом чтобы интерьер не был «женским».
«В первую очередь необходимо было продумать функционал и рационально использовать каждый сантиметр площади. Поскольку никакой диван не сравнится с удобством кровати, мы решили выделить спальную зону, — рассказывает дизайнер Маргарита Фомина. — Мы ее сделали на месте бывшей кухни, а гарнитур перенесли в коридор и расположили его по двум сторонам. Плита электрическая, поэтому проблем с согласованием не возникло».
Заказчица отдает предпочтение экологичным материалам, поэтому в отделке потолка и стен использовали штукатурку и краску. Частично стены отделаны гипсовой плиткой «под кирпич». На полу — дубовый паркет.
Слева от входа в санузел сделали нишу для хранения, в ней же установили стиральную машину. На стенах использовали белую плитку-гексагоны, на полу — такую же черную. В качестве цветового акцента верхнюю часть стен по периметру покрасили желтой краской. Если хозяйке захочется поменять настроение интерьера, можно легко перекрасить желтый в любой другой цвет.
В зоне раковины разместили большое зеркальное полотно, которое визуально расширяет пространство. Подвесные светильники с ретролампами включаются отдельно от основного верхнего света и своим мягким свечением создают атмосферу релакса.
В коридоре разместили довольно вместительную систему хранения. В ней открытая вешалка для верхней одежды, тумба для обуви, платяные шкафы и шкаф для хозяйственных принадлежностей. Кухонная мебель продолжает единый ряд шкафов. Вся корпусная мебель для этого проекта была изготовлена в Москве в частной столярной мастерской.
Заказчица любит светлые интерьеры с небольшим количеством акцентов, которые можно менять по настроению. Поэтому в качестве базовых цветов были выбраны: белый, черный, коричневый и цвет натурального дуба. Такая гамма создает спокойную основу, в которую дизайнер добавила немного яркого декора: красные и синие подушки, картины, желтую полоску стен в санузле. Интерьер получился легким, воздушным, но в то же время контрастным.
Вся корпусная мебель была выполнена на заказ. Остальное нашли у популярных мебельных брендов. Специально для этого интерьера на заказ были сделаны два небольших столика со столешницами из натурального мрамора с ониксом. Один столик стоит на лоджии, второй — рядом с кроватью.
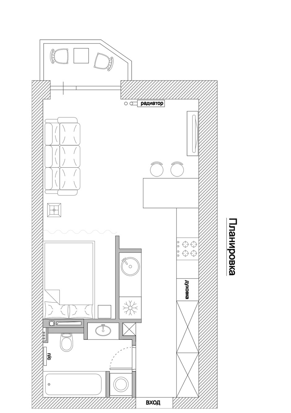
Планировка
Бренды, представленные в проекте
Холл
Отделка: краска, Dulux
Напольное покрытие: паркетная доска, Focus Floor Smart
Освещение: встраиваемые светильники, Azzardo
Гостиная
Отделка: краска, Dulux
Напольное покрытие: паркетная доска, Focus Floor Smart
Мебель: тумба под ТВ, ИКЕА; диван, Scandica
Ковер: натуральная коровья шкура, ИКЕА
Декор: ИКЕА
Радиатор: КЗТО
Техника: телевизор, LG
Спальня
Отделка: краска, Dulux; паркетная доска, Focus Floor Smart
Напольное покрытие: паркетная доска, Focus Floor Smart
Мебель: кровать, Ormatek
Освещение: Arlight
Кухня
Отделка: краска, Dulux; керамогранит, Seranit
Напольное покрытие: паркетная доска, Focus Floor Smart
Бытовая техника: холодильник, Liebherr; варочная панель и духовка, Hansa; вытяжка, Maunfeld
Смесители: Remer
Освещение: встраиваемые светильники, Azzardo
Ванная комната
Отделка: плитка, Kerama Marazzi; краска, Dulux
Напольное покрытие: плитка, Kerama Marazzi
Санфаянс: ванна, Cersanit; раковина, Kirovit; унитаз, Roca
Смесители: Remer
Техника: стиральная машина, Gorenje
Освещение: потолочные светильники, Maytoni
Лоджия
Напольное покрытие: плитка, Vives
Мебель: стулья, ИКЕА
Освещение: ИКЕА
Хотите, чтобы ваш проект был опубликован на INMYROOM? Присылайте фотографии интерьера на wow@inmyroom.ru
















