Вкратце
Чтобы превратить старую квартиру в новое уютное жилье для семьи из трех человек, дизайнер сделала перепланировку: увеличила гостиную, санузлы, избавилась от непрактичного коридора и объединила кухню с гостиной. В стилистике ставку сделали на создание атмосферы старой московской квартиры — с метлахской плиткой, гипсовыми карнизами и антикварной мебелью.
Подробности
Эта квартира находится в самом центре Москвы в старом доме сталинской постройки. В ней будет жить семейная пара с взрослой дочерью и домашним питомцем — небольшой собакой.
Хозяева квартиры всегда жили в центре Москвы и новую квартиру купили по соседству не случайно. Заказчики очень творческие и позитивные люди, которые увлекаются искусством, музыкой, историей, театром. Хозяйка пробует себя в живописи, и у нее это замечательно получается. Дочь занимается профессионально музыкой.
«Заказчики не случайно обратились ко мне, — рассказывает дизайнер Татьяна Красикова. — Они видели мои работы много-много лет назад в журнале, а недавно опять увидели мои работы и поняли, что это не случайность. Им импонировало, что я использую в своих проектах сложные цветовые сочетания, а они хотели увидеть свою квартиру красочной и спокойной одновременно».
Основное пожелание — квартира должна сохранить дух старого времени, воспоминаний детства: дубовый паркет «елочкой», красивые метлахские ковры, высокие двери с фрамугами, порталы, состаренные зеркала, лепной декор, интересная мебель, может быть, купленная в антикварной лавке, какие-то милые сердцу вещи.
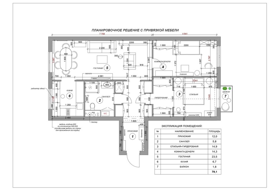
Первоначально в квартире были длинный нефункциональный коридор, маленькие раздельные санузлы и очень скромная кухня. Все зоны оставили на своих местах, но сделали перепланировку: увеличили гостиную за счет коридора, сделали из нее вход в кухню, ванную объединили с санузлом и расширили их за счет бывшего прохода в кухню. Две спальни остались без изменений.
Гостиная получилась вытянутой по длине, и, чтобы уменьшить этот эффект, ее условно разделили на три зоны: зона столовой, диванная группа и библиотека. Зонирование выполнили с помощью расстановки мебели, отделки стен и освещения.
«Кухня очень маленькая, всего шесть квадратных метров. Как и во всех старых домах, здесь газовая плита, но хозяева рассматривают перспективу отказа от газовой плиты, поэтому проем в кухню оставили открытым, — рассказывает автор проекта. — Кухонная мебель расположена П-образно, что делает ее функциональной, а подоконник объединен с рабочей зоной — получилось создать небольшое место для перекуса. Хотя приятнее посидеть здесь с чашкой чая, любуясь видом из окна».
В спальне старую балконную дверь заменили на французские балконные двери в пол — это создает особую романтику. Балкон крохотный, открытый, с легким кованым ограждением. Здесь будут стоять растения в кашпо.
В ванной хозяева попросили обустроить душевую кабину, поставить красивую мебель с раковиной, унитаз и сделать шкаф для стиральной машины и бытовой химии.
В отделке полов заказчики обязательно хотели видеть метлахскую плитку, но они долго не могли определиться с орнаментом, так как нравилось все. В итоге метлахский ковер украсил коридор, ванную и кухню. В комнате будет дубовый паркет по индивидуальному заказу. В спальне и комнате дочери решили использовать инженерную доску, уложенную «елочкой», а в гостиной — модульную инженерную доску с орнаментом.
В коридоре, кухне, комнате дочери и гостиной стены покрашены английской краской Little Greene, в спальне — бумажные обои. В гостиной стену с фальшкамином дополнили состаренными зеркалами от пола до потолка в декоративном обрамлении. Потолки везде ровные, их подчеркнули лепным карнизом Orac Décor.
Одним из условий перепланировки было создание достаточного места для хранения вещей и книг. В спальне организовали гардеробную со встроенными шкафами шириной по 1500 мм с антресолями сверху, она будет разделена на мужскую и женскую. Библиотека в гостиной выполнена углом, она оформляет проход в комнату дочери, образуя портал.
В комнате дочери будут диван-кровать, книжный шкаф, шкаф для одежды и электропианино. И маленький комодик в китайском стиле шинуазри — он отлично вписался в цветовую палитру интерьера. Вообще, к выбору мебели хозяева подходят очень тщательно: возможно, часть предметов будут антикварными, с историей. Или переедут с прошлой квартиры после реставрации и перетяжки.
«Заказчики официально согласовали проект во всех инстанциях. Примерный бюджет оценить сложно, — говорит Татьяна Красикова. — Ремонт в старых домах всегда стоит дороже, чем в новостройках. Необходимо сделать демонтаж старых перегородок, снять старую отделку стен, зачистить все до основания, удалить старые полы, заменить устаревшие и негодные коммуникации, обновить вентиляцию. С учетом этих работ и большого количества встроенной мебели по индивидуальным размерам бюджет составит не меньше 6–8 млн рублей».
Планировка
Бренды, представленные в проекте:
Холл
Отделка: краска, Little Greene
Напольное покрытие: плитка, TOP CER
Гостиная
Отделка: краска, Little Greene
Мебель: диван, Parker Knoll; столик, Jonathan Sainsbury; сервант, Hooker
Комната дочери
Отделка: краска, Little Greene
Кухня
Отделка: краска, Little Greene; плитка, Equipe
Напольное покрытие: метлахская плитка, TOP CER
Смеситель: Nicolazzi
Техника: SMEG
Ванная комната
Отделка: плитка, Equipe; краска, Little Greene
Напольное покрытие: метлахская плитка, TOP CER
Унитаз: Villeroy & Boch
Душевое ограждение: Cezares
Смесители: Nicolazzi
Мебель: Caprigo
Спальня
Отделка: обои, Colefax and Fowler
Мебель: кровать и тумбочки, Dialma Brown
Освещение: люстра, Fine Art; лампы настольные, Pottery barn
Хотите, чтобы ваш проект был опубликован на INMYROOM? Присылайте фотографии интерьера на wow@inmyroom.ru




















