Вкратце
Кабинет за стеклянными перегородками, ванна в стеклянном кубе и авторские зеркальные панно, которые помогли сломать пространство и добавить воздуха — работа над проектом этой просторной квартиры в центре Москвы велась без задержек. Все идеи и предложения заказчик утвердил с первого раза: он полностью доверил создание интерьера дизайнерам от начала и до последнего штриха.
Заказчик, который обратился к Максиму и Евгении Константиновым, живет между Москвой и Санкт-Петербургом. Это очень современный молодой человек с западным мышлением, который любит коллекционировать предметы искусства, постоянно путешествует, имеет хороший вкус и открыт к нестандартным решениям. Ему нужна была «транзитная» квартира, где он, его друзья и родственники смогут останавливаться, когда будут в Москве. И в дополнение предполагались шумные вечеринки и, возможно, деловые встречи в неформальной обстановке.
Главной причиной покупки именно этой квартиры стали виды на Москву, открывающиеся с десятого этажа. Поэтому основным пожеланием заказчика было создание зоны viewpoint на месте балкона.
«Чтобы организовать эту обзорную площадку, нам пришлось разместить второе остекление, так называемый „теплый контур“. Остекление от застройщика было холодное и не предполагало таких изысканных требований будущих жильцов. Мы заказали видовое окно в пол из Бельгии с минимальным количеством створок. Оставили только одну, чтобы была возможность его помыть. При этом мы не нарушили внешнего вида фасада здания, так как учитывали раскладку и цвет профиля», — рассказывают дизайнеры.
Планировка была разработана и реализована так, чтобы сохранить максимально открытое пространство и воздух, как и хотел заказчик. От входа сразу видно открытое пространство гостиной, кухни и зоны viewpoint.
Кухню спроектировали так, чтобы вся необходимая техника и посуда были скрыты, но при необходимости они легко открываются — фасады заезжают в тело стеллажей и не мешают передвижению. Все зоны хранения находятся на уровне напольных шкафов и в пеналах. Столовую зону заказчик не хотел, поэтому дизайнеры предусмотрели только небольшой стол для завтраков, на всякий случай.
Диванные группы из разных элементов в гостиной разместили по трем сторонам — для комфортного общения. Плюс добавили несколько кофейных столиков различной формы и отделки. Один — с кожаной круглой столешницей на металлическом основании, второй — прямоугольный деревянный. Текстуры кожи и дерева повторяются во всем интерьере, даже рамки выключателей и розеток «одеты» в кожу.
Большое пространство объединил глянцевый пол, начинающийся от входа в квартиру. Смягчил блеск глянца ковер в сложной серо-синей цветовой гамме, на котором, по замыслу дизайнера Микаэлы Шлейпен, изображены накатывающие на берег волны.
Кабинет расположен в общем пространстве за прозрачными стеклянными перегородками. Там можно легко уединиться при необходимости — достаточно закрыть легкую портьеру. В открытом виде кабинет становится частью гостиной.
«Стеллаж для книг мы придумали и спроектировали специально для этого помещения, — рассказывают дизайнеры. — Он с секретом: в нем прячутся откидная кровать-трансформер и комод. Это на случай, если одновременно приедет много гостей».
Зона viewpoint — «сердце» квартиры. Дизайнеры спроектировали парящую конструкцию в отделке из шпона ореха, которая с потолка переходит на стену и далее в столешницу, опираясь на стеклянную невидимую ногу. «Мы продумали ее так, чтобы она не перекрывала окно в пол. На одной стене мы решили использовать зеркала — это дало бесконечный вид и игру пространства, некое „московское зазеркалье“.
Противоположная стена отделана итальянским мрамором с брашированной матовой поверхностью и черными металлическими вставками. Любоваться видами на Москву можно, расположившись на удобных кожаных барных стульях», — рассказывают Максим и Евгения Константиновы.
В спальне заказчика решили сделать ванную комнату в стеклянном кубе. Хозяин квартиры с радостью поддержал эту идею. Все материалы для ванной комнаты и спальни дизайнеры подобрали так, чтобы они не спорили друг с другом, а, наоборот, гармонично дополняли. Несмотря на то, что это два разных по своему назначению помещения, они сосуществуют вместе как единое целое.
Оттенки в отделке близкие друг к другу: авторы проекта работали с полутонами. А вот с текстурами и фактурами решили поиграть, чтобы не было скучно. Так за изголовьем кровати появились гипсовые 3D-панели с геометрическим рисунком, на стенах — штукатурка, имитирующая лен, на полу — натуральное дерево, а на стенах в ванной — глянец с рисунком оникса. Холодное стекло, зеркала и глянцевый крупноформатный керамогранит уравновесили теплым деревом и тканью.
Шкаф выполнили по чертежам дизайнеров, а раскладка зеркал удивительным образом совпала с подписью заказчика. Прикроватные столики на белых металлических основаниях отлично сочетаются с белым напольным итальянским полотенцесушителем в виде лестницы.
В отделке гостевой спальни за основу взяли японскую эстетику и создали пространство простое, но продуманное и с интересными деталями. Здесь использовали больше дерева, стены «одели» в декоративную штукатурку из мятой бумаги в технике «папирус», а изголовье кровати сделали бирюзовым — рисунок обивки напоминает игру бликов на морской глади.
Зато гостевой санузел — самое яркое и смелое помещение. «Он небольшой, и мы решили „оторваться“ и сделать санузел таким, чтобы он вызывал интерес и недоумение у посетителей. Стены частично облицевали плиткой Mutina с активной геометрией, насыщенными цветами и неровной поверхностью. Потолок выкрасили в подходящий синий оттенок», — рассказывают авторы проекта.
Остальные стены в зоне тумбы с раковиной, а также дверь отделали зеркалами, продолжая тему зазеркалья. Сантехника — классика от Philippe Starck с ироничными формами. Она отлично завязалась в тандеме с плиткой.
На внешних стенах санузла и гардеробной комнаты придумали и вычертили два зеркальных панно с геометрическими элементами. В противопоставление зеркальным и глянцевым поверхностям выступил архитектурный объем — куб, облицованный стеновыми панелями. В нем растворились двери в коробе invisible, ведущие в спальни. В верхней части куба предусмотрели подсветку, чтобы вечером можно было создавать разное настроение.
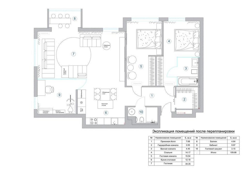
Планировка
Бренды, представленные в проекте
Гостиная
Мебель: диваны и кофейный столик, BoConcept; кофейный столик, Bontempi; ТВ-тумба, Novamobili
Ковер: дизайнер Микаэла Шлейпен
Текстиль: портьеры, «Арт-Сервис»
Декор: скульптура «Двое», Тарас Левко; ладья, Ceramum
Видовая зона
Мебель: мебельная конструкция в облицовке шпоном ореха выполнена по чертежам дизайнеров, Yachtline; барные стулья, Cattelan
Декор: панно на стене из брашированного мрамора, Salvatori (Tratti Bianco Carrara); зеркала, мастерская Papa Carlo; поднос, Ibrid
Кабинет
Отделка: стеновые панели, Leicht; краска, Little Greene
Напольное покрытие: керамогранит, Ariostea
Мебель: рабочий стол, кресло, стеклянные полки, все — Bontempi
Декор: картина, Александр Кипсоне «1984», галерея Artis gallery; декор, Ceramum и Happy collection
Кухня
Отделка: керамогранит, Ariostea
Мебель: кухонная мебель, Leicht; стулья, Poliform
Освещение: светильники подвесные над столом, Gubi
Декор: картина, Елена Минаева «Она повернулась ко мне лицом», галерея Artis gallery
Техника: вытяжка, Elica; Asko; AEG; Franke; Neff
Декор: вазы, Ceramum
Спальня
Отделка: штукатурка, Finex
Напольное покрытие: инженерная доска, Villapark
Дверь: Sofia
Мебель: кровать, Bolzan letti; шкаф, Yachtline; прикроватные столики, Bontempi
Освещение: светильники подвесные, Gubi
Текстиль: постельное белье, Atelier Tati; портьеры из испанской ткани, «Арт-Сервис»
Декор: Happy collection; Zara Home; картина, Юлия Маменина «Лондон step», Artis gallery
Ванная комната
Отделка: керамогранит, Ariostea
Сантехника: Duravit; полотенцесушитель, Scaletta Freestanding
Гостевая спальня
Отделка: штукатурка, Finex
Напольное покрытие: инженерная доска, Villapark
Дверь: Sofia
Мебель: кровать, Bolzan letti; шкаф по эскизам дизайнеров, Yachtline; прикроватные тумбы, Bontempi
Декор: зеркало, BoConcept
Текстиль: постельное белье, Atelier Tati; портьеры, «Арт-Сервис»
Гостевой санузел
Отделка: плитка, Mutina; краска, Benjamin Moore
Сантехника: Duravit; стеклянные дверки душевой, Kermi
Смеситель: Axor
Дверь: Sofia
Декор: зеркала, мастерская Papa Carlo
Гардеробная комната
Отделка: керамогранит, Ariostea; краска, Little Greene
Дверь: Sofia
Мебель и стеновые панели: Yachtline
Хотите, чтобы ваш проект был опубликован на INMYROOM? Присылайте фотографии интерьера на wow@inmyroom.ru

























