Вкратце
К Елене Пылиной обратилась взрослая супружеская пара, чтобы превратить старую квартиру в спокойное современное пространство с теплым и уютным интерьером. Супруги много путешествуют, часто останавливаются в отелях и частных апартаментах, любят Европу и финский минимализм. Дизайнер не первый раз работала с этими заказчиками: шесть лет назад она уже оформляла квартиру для их внучки.
Подробности
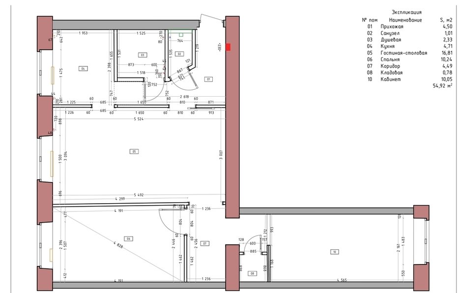
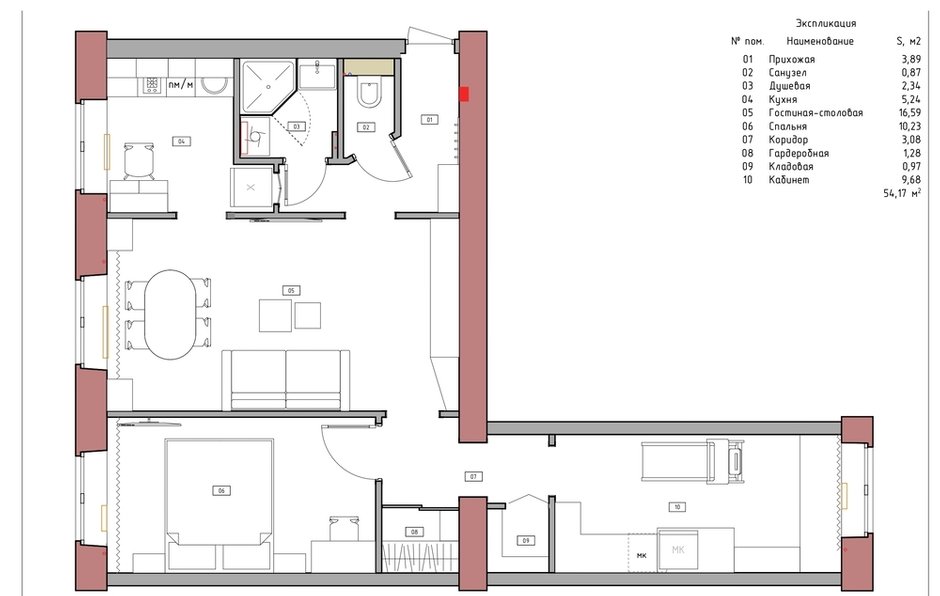
Перепланировка была минимальная. Первым делом убрали вход в кухню из коридора: благодаря этому получилось удачно расположить кухонную мебель и технику. Плюс выделили место для гардеробной и кладовки рядом с жилыми комнатами. В одной из комнат обустроили спальню, в другой — кабинет.
«Когда производили демонтаж перегородок, у нас, можно сказать, была „парящая“ планировка на один день. Когда сняли плинтусы и галтели, оказалось, что старые перегородки были прикреплены саморезами к потолку и, раскачиваясь, висели в воздухе. Этим перегородкам было на тот момент 59 лет. Мы вовремя начали ремонт!» — рассказывает Елена Пылина.
Для отделки стен выбрали краску плюс акцентно использовали обои с орнаментом, чтобы не перегружать стены и низкие потолки. В гостиной — немецкие обои Aquarelle с геометрическим принтом, в кабинете — обои, имитирующие трикотажную вязку.
На полу в прихожей и кухне положили керамогранит, в комнатах — паркетную доску теплого медового оттенка. В кухне фартук и столешницу сделали из искусственного камня одного оттенка. Этот прием позволил визуально расширить маленькое пространство кухни и сделать ее воздушной.
Для ванной выбрали плитку Equipe белого и винного оттенков — заказчики не побоялись оформить на маленькой площади такие яркие стены. В душевой разместили стиральную машинку вертикальной загрузки и вместительную тумбу с двумя ящиками. Душевой поддон выполнили из плитки плюс установили стеклянные ограждения с распашной дверцей. Каждый сантиметр просчитали, и в итоге получилось идеально.
Цветовая палитра интерьера — сочетание персикового, лилового и пепельно-розового цветов. «Нам с заказчиками хотелось создать что-то оригинальное и не похожее на большинство палитр стандартных интерьеров. Мы хотели поэкспериментировать с пастельными тонами: контраст достигался не насыщенностью цвета, а разнообразием оттенков одной тональности», — рассказывает Елена Пылина.
Всю корпусную мебель спроектировали и изготовили на заказ. Дизайнер создала фасады, повторяющие геометрию на обоях, нашла идеальные оттенки, которых требовала концепция интерьера. Мебель реализована совместно с мебельным производством Peter Tischler. Также специально для проекта изготовили буфет с элементами ковки.
Планировка
Фото до ремонта
Бренды, представленные в проекте
Холл
Отделка: обои, Marburg
Напольное покрытие: плитка, Italon
Освещение: Lightstar
Гостиная
Отделка: обои, Aquarelle
Напольное покрытие: Karelia
Мебель: Peter Tischler
Ковер: Amikovry
Декор: Zara Home
Освещение: Lumion; Lightstar
Спальня
Отделка: Trussardi; обои под покраску, Rache
Напольное покрытие: Karelia
Мебель: DMI «Дятьково»
Текстиль: Zara Home
Освещение: ST Luce
Кабинет
Напольное покрытие: Karelia
Мебель: Peter Tischler
Освещение: Eglo; настольная лампа, Phantom 1867-1T
Кухня
Напольное покрытие: Italon
Мебель: Peter Tischler
Гарнитур: Peter Tischler
Бытовая техника: Bosch
Освещение: Lightstar
Ванная комната
Отделка: Equipe
Напольное покрытие: Italon
Смесители: Elghansa
Освещение: Lightstar
Хотите, чтобы ваш проект был опубликован на INMYROOM? Присылайте фотографии интерьера на wow@inmyroom.ru




















