Вкратце
В квартире проживает заказчица с сыном восьми лет. Она хотела получить стильную светлую квартиру, с элементами современной классики, с интересными решениями, соответствующими темпераменту хозяев. Было необходимо выделить три отдельные комнаты, разместить вместительную гардеробную при спальне, сделать два полноценных санузла, функциональную кухню, гостиную с удобным диваном для просмотра ТВ, столовую зону, так как заказчица любит приглашать гостей.
Подробности
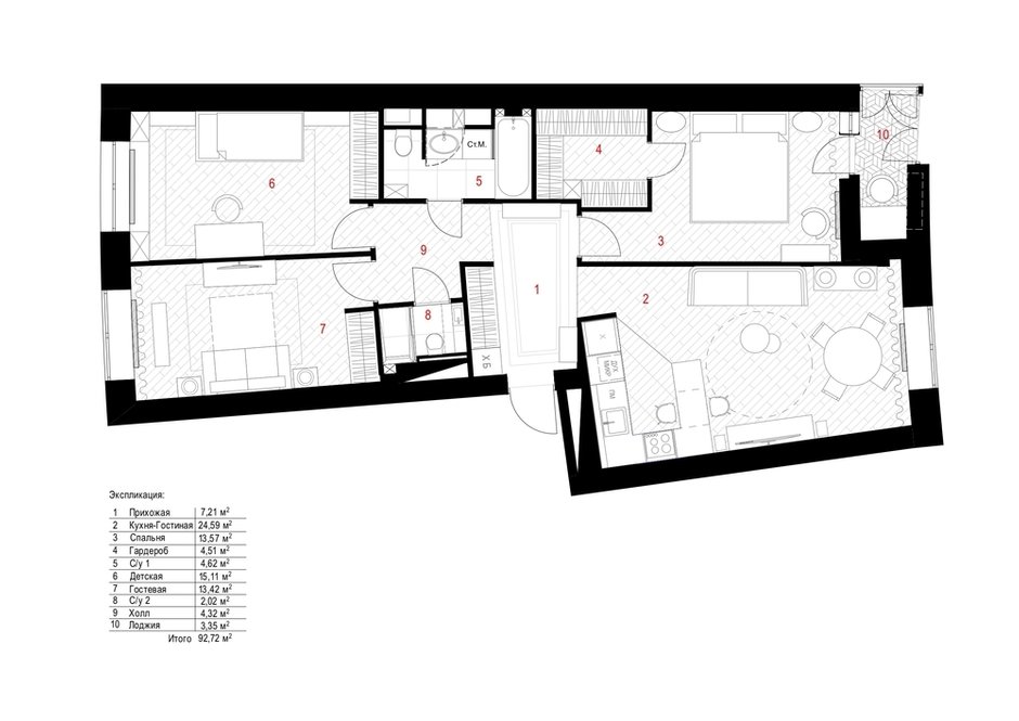
Квартира находится в ЖК «Фили-Град», дом построен по проекту бюро SPeeCH Сергея Чобана и Сергея Кузнецова. Комплекс в плане эллипсовидной формы, поэтому квартиры в нем нарезаны секторами — этот факт во многом повлиял на планировку, так как в помещении не было ни одного прямого угла. Дизайнерам Александре Дашкевич и Наталье Каримовой нужно было обыгрывать сужающиеся и расширяющиеся пространства, чтобы визуально все выглядело гармонично и эффективно функционировало.
Основная сложность по зонированию была в кухне-гостиной. Объединенная кухня-гостиная — это всегда вызов, нужно сделать красиво, функционально и не перегрузить пространство. Комната сужается к окну, поэтому авторы проекта решили расположить у окна стол, а мягкую зону сделать в центре — это дало возможность установить удобный и довольно большой диван. Геометрию помещения, сужающегося к окну, решили визуально «трансформировать» с помощью больших зеркальных панно, расположенных по бокам от дивана. Хозяева — большие любители кино и хорошего звука, поэтому в гостиной предусмотрена встроенная аудиосистема с потолочными колонками.
В кухне-гостиной оборудовали очень функциональную кухню, дизайн которой начался с выбора холодильника. «Заказчица хотела определенный холодильник, который продавался только в двух цветах — коричневый и розоватый. Мы выбрали розоватый оттенок, который повлиял на всю гамму гостиной. Фасады кухни мы выкрасили в цвет стен, чтобы максимально растворить ее в объеме гостиной», — рассказывает Александра Дашкевич.
Большинство шкафов в гарнитуре с выдвижными механизмами, есть также «запасница» — механизм, позволяющий использовать зону фартука для хранения. Специальная панель, выполненная из того же материала, что и фартук и столешница, уезжает вниз, открывая полки. Также кухня оснащена ящиками в цоколе, где хранится складная лестница для доступа к верхним шкафам, и винным шкафом.
Два санузла должны были быть полноценными, в одном должна была появиться ванна, а в другом — душ. Несмотря на очень компактные размеры второго санузла, удалось вписать в него душ с раздвижной перегородкой, а также небольшую тумбу с раковиной. В большой санузел под столешницу с раковиной интегрировали стиральную машину.
Также здесь удалось использовать все небольшие, оставшиеся после разводки коммуникаций пространства — в них оборудовали места для хранения мелочей, косметики, бытовой химии. В ванной сделали незаметный пенал со встроенной корзиной для белья.
В прихожей на полу уложили панно из керамогранита — это более практичное решение. Стены окрашены. В гостиной на полу инженерная доска, а зона кухни выложена керамогранитом в тон инженерной доски, чтобы не дробить пространство. За ТВ-панелью использовали обои, имитирующие камень. В детской комнате стену напротив кровати расписали вручную по эскизам дизайнеров проекта, роспись покрыта несколькими слоями лака, поэтому ее можно мыть при необходимости. В санузлах для отделки использовали керамогранит крупного формата разных фактур и оттенков. Керамогранит — универсальный прочный материал, идеален для использования в «мокрых» зонах, легок в уходе.
«Особая история связана с хозяйской спальней. Изначально она также планировалась светлой, со светлыми стенами. Но в какой-то момент заказчица поняла, что ей не хватает глубины, поэтому мы поменяли концепцию и пришли к решению сделать насыщенное зеленое панно за изголовьем кровати. Это обои с ручной росписью в виде ткани с драпировкой», — рассказывает Александра Дашкевич.
Изначально сын заказчицы попросил использовать в отделке комнаты синий цвет, а от хозяйки было пожелание устроить удобную сидячую зону на подоконнике. В итоге зона на подоконнике стала самым любимым местом в доме для всех жильцов. Дизайнеры предусмотрели подсветку для чтения, поэтому тут можно удобно расположиться с книгой. Из окна открывается отличный вид на реку и Москва-Сити.
«В какой-то момент интерьер начинает жить своей жизнью и подсказывает интересные элементы декора. Так в гостиной появился фламинго на стене — пожалуй, самая необычная деталь в декоре квартиры, — рассказывают дизайнеры. — Хозяйка не любит острые углы мебели, поэтому почти все элементы с закругленными углами — это придает особую эстетику и мягкость интерьеру. Большинство из них сделано нашими столярами по нашим эскизам.
Наша заказчица — очень яркая личность, поэтому в интерьер ворвались яркие элементы, например, синяя входная дверь, бирюзовый комод напротив нее, глубокая зеленая стена в спальне, синий диван в гостиной. Однако, как и человеку, интерьеру необходима гармония, поэтому яркие элементы уравновешиваются спокойными тонами стен».
Планировка
Бренды, представленные в проекте
Отделка в квартире: инженерная доска, «Олимп паркета»; керамогранит, Porcelanosa Grupo; керамогранит, Equipe Ceramicas; краска, Tikkurila; роспись стены, Paintsofdesign; лепной декор стен, потолков, плинтуса, все — Orac Decor
Электрофурнитура: Bticino и Legrand
Кухня-гостиная
Отделка: обои, Zinc
Мебель: стулья обеденные, Estetica; стулья полубарные, Bradexhome; журнальные столики, Zara Home
Гарнитур: Giulia Novars; раковина и смеситель, Blanco
Декор: зеркала, «Главстеклострой»
Освещение: люстра, Design Logistic; бра над диваном и подвесы над барной стойкой, Ideal Lux
Прихожая
Освещение: бра над комодом, люстра, все — Design Logistic
Спальня
Отделка: обои, Fresq
Мебель: кровать и тумбы, Estetica; стул, Eichholtz
Освещение: светильники, Design Logistic
Детская
Мебель: диван-кровать, Manifesto; рабочий стол, ИКЕА
Освещение: потолочные люстры, Design Logistic
Гостевая
Мебель: диван, «Цвет диванов»
Освещение: люстра, настольные лампы, все — Design Logistic
Санузлы
Отделка: керамогранит, Porcelanosa Grupo; керамогранит, Gambarelli
Освещение: подвес, Design Logistic
Сантехника: смесители, Hansgrohe; раковина, унитазы, ванна, все — Villeroy & Boch; душевая перегородка, «Главстеклострой»
Хотите, чтобы ваш проект был опубликован на INMYROOM? Присылайте фотографии интерьера на wow@inmyroom.ru
























