Вкратце
Хозяева этой квартиры в сталинке давно мечтали создать гостевой дом в Минске, чтобы принимать таких же открытых и активных людей со всего мира. Обязательными условиями были расположение в центре и дом сталинской эпохи. Когда заказчики нашли идеальную квартиру, они обратились к архитектору Евгении Лыкасовой, чтобы полностью обновить обстановку.
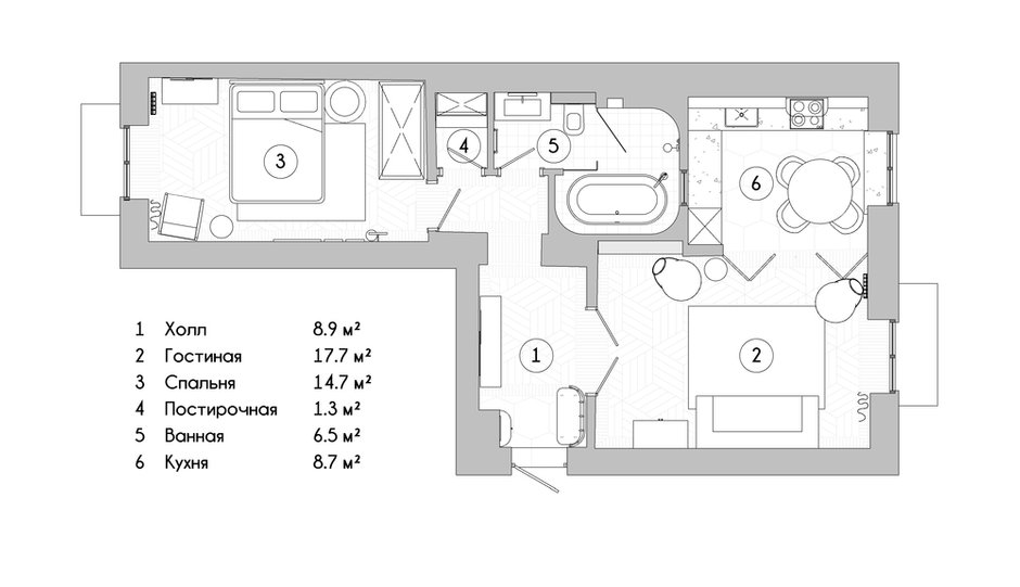
В результате ремонта получилась уютная двушка с кухней-гостиной, спальней и вместительным санузлом. Атмосферности интерьеру придали сохранившаяся оригинальная лепнина и элементы, придуманные дизайнером и выполненные на заказ.
Подробности
Кухня и гостиная образуют открытое общее пространство, при этом зона приготовления и приема пищи отделена от зоны отдыха изящной стеклянной дверью с деревянным обрамлением в виде арок. Таким образом в гостиной стало больше света и воздуха, при этом дверь на кухню при необходимости всегда можно закрыть. Это решение позволило не только визуально увеличить пространство гостиной, но и расширить ванную за счет перепланировки и переноса входа.
«Для того, чтобы не утяжелять помещение, мы отказались от верхних шкафчиков на кухне. Вместо этого вытянули нижний фронт вдоль двух стен, обеспечив достаточно места для хранения. Здесь поместилось все, что планировали, включая большой двухкамерный холодильник, посудомоечную машину, фильтр для воды и духовой шкаф. А газовую плиту мы заменили на электрическую», — рассказывает Евгения Лыкасова.
Главная задача, которая стояла в этом проекте, — создать современный и стильный интерьер, сохранив при этом историю и дух прошлого. Аутентичности новой обстановке решили придать с помощью отделки. Несмотря на возраст здания и ветхий конструктив стен, классическая для сталинских квартир лепнина осталась в хорошем состоянии.
Также сделали выбор в пользу окраски стен кистями, вручную, без выравнивания поверхности гипсокартоном и штукатуркой, чтобы создать «старый-новый» интерьер по старинке. По проекту отделка плинтуса и карнизов будет выполнена протяжным методом: они будут повторять незаметные с первого взгляда неровности стены, делая интерьер интереснее.
Паркетный пол — еще один элемент, которому автор проекта уделила особое внимание. Выбрали модульный паркет: брашировка позволяет придать дереву особую фактуру за счет выборки мягких волокон специальной щеткой. Во влажных зонах в качестве напольного покрытия решили использовать бетонную плитку, выложенную красивым ковром с орнаментальным рисунком.
Цветовая палитра мягкая, в ней преобладают спокойные, пастельные цвета. И только ванная получила насыщенный оттенок теплого, травянистого зеленого в плитке ручной работы. Чтобы глубокий зеленый цвет плитки не перегружал помещение, ею оформили только часть стен — в местах, предполагающих прямой контакт с водой. Остальные поверхности, включая пол и потолок, будут выкрашены в белый.
Мебель для проекта выбрана в скандинавском стиле: легкая, минималистичная и современная, она будет делать интерьер воздушным и комфортным, уравновешивая классические элементы отделки. В проекте естественным образом нашлось место и для винтажной мебели.
От предыдущих владельцев в квартире остались советские стулья — заказчики их отреставрировали. В дополнение к этой винтажной группе в гостиной появился классический честер с обивкой мягкого золотого оттенка.
«В квартире предусмотрено много места для книг — открытых систем хранения владельцы не боятся. На полках будут расставлены книги об истории Беларуси, местных художниках, музыкантах и интересных местах, чтобы иностранные гости могли узнать о стране и городе больше. Хозяева квартиры — любители винила. Поэтому в гостиной также предусмотрена отдельная зона для проигрывателя и пластинок. В уютной спальне есть все необходимое: лаконичная и комфортная кровать, вместительный гардеробный шкаф, небольшое кресло для чтения у окна и комод, — говорит Евгения Лыкасова.
— Интерьер получился очень легким, атмосферным и располагающим. Мы уверены, что, начиная знакомство со столицей с такого комфортного и эстетически выверенного жилья, гости получат самое приятное первое впечатление о стране и ее жителях».
Планировка
Бренды, представленные в проекте
Холл
Отделка: краска, Farrow & Ball; розетка потолочная, «Стиль-декор»
Напольное покрытие: плитка, BISAZZA; паркет, Woodberry
Мебель: скамья, Ercol
Освещение: бра, «Сфера-декора»
Гостиная
Отделка: краска, Farrow & Ball; розетка потолочная, «Стиль-декор»
Напольное покрытие: паркет, Woodberry
Мебель: стол кофейный, Vitra; кресло, GUBI
Освещение: люстра, Gooseneck Pelle Chandelier; торшер, CTO Lighting
Кухня
Отделка: краска, Farrow & Ball; розетка потолочная, «Стиль-декор»; столешница кухонная, BetON
Напольное покрытие: плитка, BISAZZA
Мебель: стол обеденный, GUBI; кухня, WOODPART
Бытовая техника: Bosch
Смесители: смеситель, Hot bath
Освещение: люстра, Astep
Спальня
Отделка: краска, Farrow & Ball
Напольное покрытие: паркет, Woodberry
Мебель: кровать, ИКЕА; комод, Aeroslon-shop; кресло, &Tradition; столик кофейный, Vitra
Освещение: бра, «Сфера-декора»; подвесные потолочные светильники, &Tradition; торшер, CTO Lighting
Ванная комната
Отделка: плитка, Carmen Ceramic; краска, Little Greene
Напольное покрытие: плитка, Pavigres
Санфаянс: ванна и унитаз, Laufen; инсталляция, TECE
Смесители: смесители и душевая лейка, Hot bath; трап, TECE
Освещение: бра, «Сфера-декора»; потолочный светильник, DesignLed; розетка, «Стиль-декор»
Постирочная
Отделка: краска, Farrow & Ball; розетка потолочная, «Стиль-декор»
Напольное покрытие: плитка, BISAZZA
Техника: стиральная машина, Kenmore Elite
Хотите, чтобы ваш проект был опубликован на INMYROOM? Присылайте фотографии интерьера на wow@inmyroom.ru

























