Вкратце
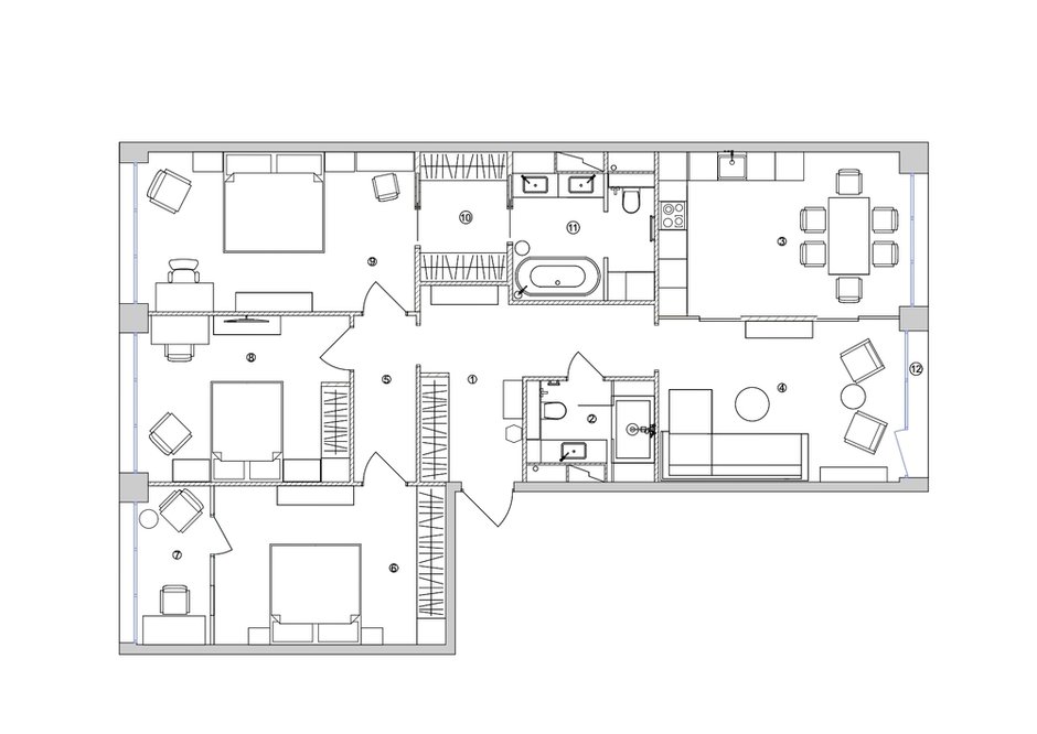
Заказчики — семейная пара с двумя разнополыми детьми, дочь уже взрослая, ей 21 год, сыну десять лет. Дизайнеру Диане Бгановой нужно было создать красивый, изящный интерьер, в котором для каждого члена семьи нашлось бы свое уютное местечко. При этом перепланировка должна быть минимальной. В итоге на 127 квадратных метрах разместили три спальни, два санузла, просторную кухню и гостиную, а также много систем хранения.
Подробности
«Изменения в планировке были минимальные. Мы подвинули дверные проемы, а также демонтировали и заново выстроили стены под раздвижные двери в гардеробной и санузле. В комнате дочери установили стеклянную перегородку, — рассказывает дизайнер. — Большую комнату под кухню и гостиную по требованию заказчика нужно было разделить на две зоны — зону готовки и обеденную, а также зону отдыха.
Для этого я использовала лофт-перегородки, они смотрятся гармонично, а посередине возвела стену под ТВ с вращающимся стендом. Перегородка в этом интерьере — очень удачное и функциональное решение, при желании можно объединить две комнаты в единое большое пространство либо разделить, например, во время приготовления еды на кухне, чтобы запахи не распространялись по всей квартире».
Кухонный гарнитур угловой, под заказ, его установили напротив окна. Вся крупная бытовая техника встроенная: винный шкаф, духовой шкаф и микроволновка, а также посудомоечная машина. Под остальную бытовую технику выделили большой угол на столешнице. Обеденную зону на несколько человек обустроили у окна.
Спальни располагаются в противоположной части квартиры и образуют приватный блок. В спальне родителей спроектировали собственную гардеробную и обустроили рабочее место. В комнате дочери кабинет находится за стеклянной перегородкой: здесь поставили письменный стол и кресло для чтения. В спальне сына места хватило для всего необходимого: спального места, рабочего стола и системы хранения.
Входную зону выложили керамогранитом, так как это самый практичный вариант. В санузлах также использовали керамогранит и керамическую плитку. В качестве напольного покрытия во всей остальной квартире выбрали инженерную доску. Стены в комнатах окрашены, а для декора добавили настенные молдинги.
«Сыну заказчиков десять лет. Он уже не маленький ребенок, а через пару лет станет подростком. Поэтому мы пришли к решению, что нужно создавать дизайн комнаты на вырост. Вместо прикроватных тумб были использованы сундуки. В них можно хранить игрушки или мелкий спортивный инвентарь. Одно отделение в шкафу отдано под хранение книг, поэтому в нем выполнены открытые полки», — рассказывает Диана Бганова.
Все системы хранения были выполнены под заказ. Это помогло сэкономить бюджет. В прихожей установили большой встроенный шкаф под одежду от пола до потолка, с лифтом. Встроенные шкафы во всю стену также спроектировали в спальнях дочери и сына, а в мастер-спальне места хватило и для полноценной гардеробной.
В санузлах максимально использовано все пространство. Над инсталляцией расположены шкафы под хранение нужных мелочей и бойлера. В ванной при мастер-спальне за одним из зеркал находится ниша с полками — удобное место для различных баночек, все спрятано от глаз.
В санузле при мастер-спальне установили перегородки. Благодаря этому удалось разделить помещение на две зоны. В одной расположили отдельно стоящую ванну и двойной умывальник, а во второй — туалет с инсталляцией и постирочную.
Стиральная и сушильная машины встроены в шкаф, также там есть отделение под хранение бытовой химии и корзина для грязного белья. В гости к заказчикам часто приезжают пожилые родители, поэтому в гостевом санузле спроектировано сиденье в зоне душевой из плитки.
«Мебель и декор выбирали либо в магазинах, либо делали под заказ. Кстати говоря, большая часть мебели с INMYROOM. Например, прикроватные тумбы в мастер-спальне или кофейные столики в гостиной. Эти столики я уже давно хотела использовать в одном из своих проектов, и наконец они нашли свое место», — делится Диана Бганова.
Бренды, представленные в проекте
Отделка: краска, Little Greene
Напольное покрытие: инженерная доска, Workshop
Мебель: обеденный стол, Copine
Бытовая техника: Bosch; Liebherr
Смесители: Paulmark
Отделка: краска, Little Greene; настенные молдинги, Orac; карниз и плинтус, «Европласт»
Напольное покрытие: инженерная доска, Workshop
Мебель: ТВ-тумба, Quadro; кофейные столики, Aliner
Текстиль и декор: ковер, Sky Dinamic
Ванная комната
Напольное покрытие: Artcer
Мебель: под заказ, Glasar
Сантехника: Jacob Delafon; Ceramica Nova; Radaway; SSWW
Смесители: Boheme; Omnires; Paffoni
Прихожая
Отделка: краска, Little Greene; настенный молдинг, Orac
Напольное покрытие: керамогранит, Artcer; инженерная доска, Workshop
Мебель: консольный стол, The Werby
Освещение: My Interno; Arte Lamp
Спальня
Отделка: краска, Little Greene; молдинг, Orac; карниз и плинтус, «Европласт»
Напольное покрытие: инженерная доска, Worksho
Мебель: прикроватные тумбы, Bragin Design, ICON Designe; другая мебель, La Redoute, The Idea
Текстиль и декор: Pittera
Освещение: Lucide
Детская
Отделка: краска, Little Greene; настенные молдинги, карниз и плинтус, все — «Европласт»
Напольное покрытие: инженерная доска, Workshop
Мебель: прикроватные тумбы, Mak-interior; другая мебель, The Idea, Lulu Space
Текстиль и декор: Pittera
Освещение: Lucide
Хотите, чтобы ваш проект был опубликован на INMYROOM? Присылайте фотографии интерьера на wow@inmyroom.ru















































