Вкратце
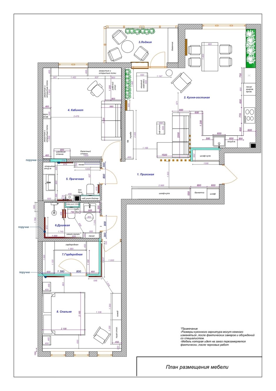
В этой просторной квартире живет семейная пара. Особенность проекта — супруга передвигается на коляске, поэтому весь интерьер дизайнеры из студии Lavhome спроектировали с учетом габаритов ее коляски и удобства передвижения и использования функциональных зон.
Подробности
«Заказчица обратилась ко мне после работы с другим дизайнером, они не сошлись во взглядах. Дело в том, что хозяйка передвигается на коляске, а предыдущий дизайнер сначала сделал обычный проект и не учел важных нюансов, а после этого предложил „проект больнички“ просто потому, что заказчица хотела белые стены, — рассказывает Тамара Литус. — Мой проект получился особенным, но никто никогда не догадается, в чем конкретно отличия. Это и было главной целью — создать уютный интерьер без ощущения каких-либо ограничений».
Кухня-гостиная спроектирована специально так, чтобы хозяйка могла свободно передвигаться и заниматься обычными делами — все сделано с учетом габаритов ее кресла. Функцию барных стульев выполняет диван с другой стороны барной стойки — он выполнен на заказ.
Основной стиль интерьера — эко, плюс немного сканди. «Мы с командой называем его сканди-шик — не совсем минимализм, но и нет визуального шума и ненужных предметов интерьера», — говорит автор проекта.
Мебель в спальне сделана на заказ со специальной высотой, учитывающей габариты кресла. Эта комната продолжает экостиль и поддерживает любовь заказчицы к растениям. Кровать с высоким изголовьем в насыщенно-фиолетовом цвете контрастирует с фотообоями — получилось ярко и сочно.
Муж заказчицы занимается своим бизнесом и часто берет работу на дом. Поэтому в кабинете предусмотрены рабочее место и достаточно вместительные встроенные шкафы, специально для личной библиотеки. Здесь же предусмотрено место для спорта: шведская стенка и балетный станок.
В квартире предусмотрено два санузла. В прачечной поставили специальный душ, где хозяйка самостоятельно может заниматься растениями и купать котиков по необходимости.
В душевой и в зоне с инсталляцией интегрировали специальные поручни, но они не привлекают к себе внимание, так как встроены прямо в стеклянную стенку душевой — такая конструкция выдерживает до 100 кг.
























