Вкратце
Эту квартиру Анна Букаева проектировала для себя. Дизайнер мечтала о самой маленькой квартире на самом высоком этаже, так и получилось — теперь иронично называет ее «пентхаус». Хозяйке хотелось сделать эти 34 метра максимально комфортными, а значит, полноценная ванная комната, кровать и большой круглый стол для гостей или творчества были обязательны. Плюс нужно было решить, где заниматься йогой, рисовать и хранить хозяйственные вещи.
Подробности
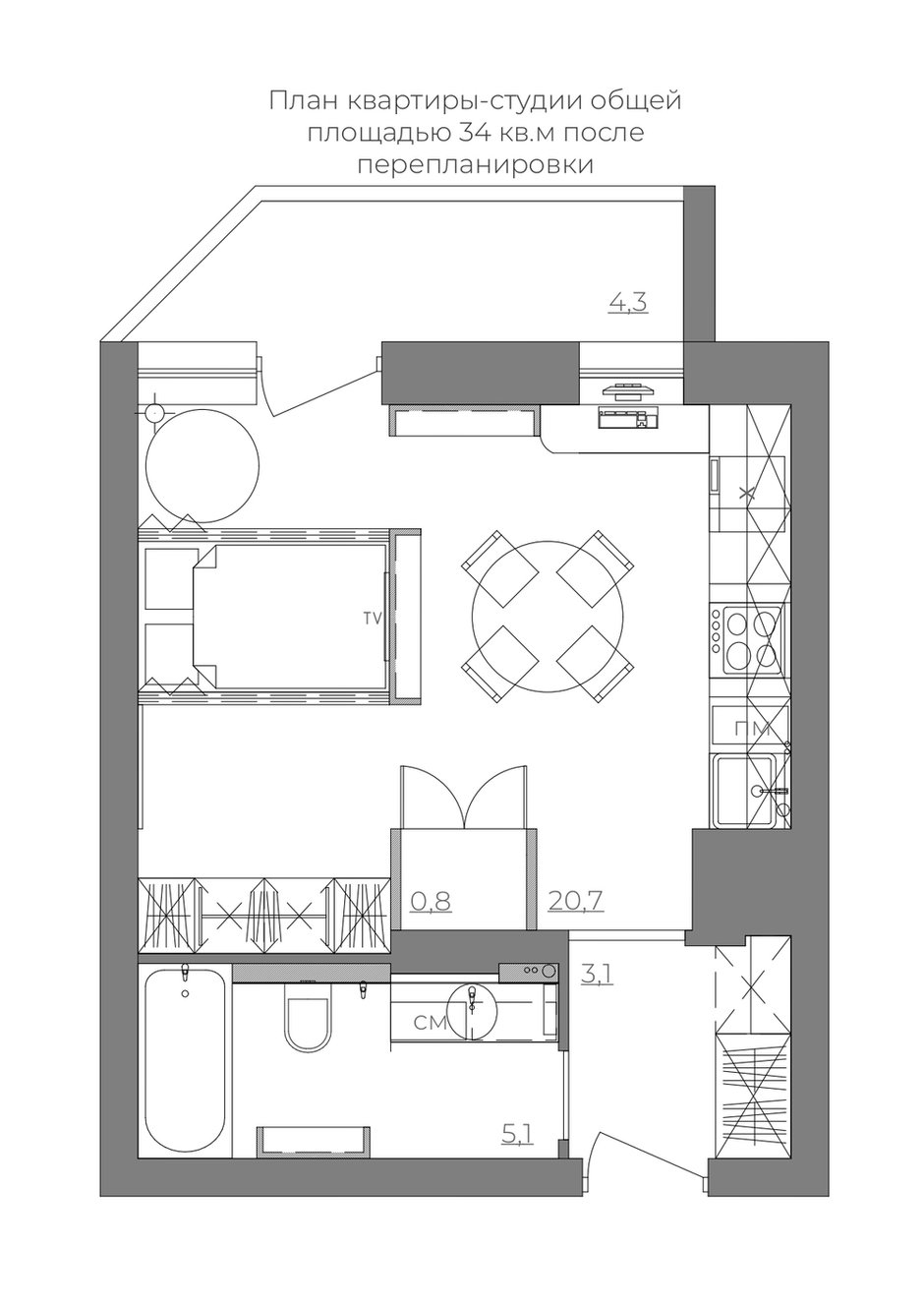
Изначально в квартире типовая студийная планировка. Фишка — в зонировании и повторяющихся встроенных стеллажах. По факту были выстроены только опорные стенки для встроенных систем хранения.
Кухню и спальню дизайнер разделила встроенным стеллажом. Со стороны кровати к нему крепится телевизор, а со стороны кухни — хранится посуда. Стеллаж подсвечен теплым светом и добавляет романтики по вечерам. Большим плюсом стал шкаф-кладовая для хозяйственного инвентаря.
Кухня — изюминка проекта. Корпус выполнен из ДСП, а фасады — из фанеры, покрытой прозрачным лаком в три слоя. Столешница, перетекающая в небольшое рабочее место, — ДСП. Фартук — прозрачное стекло, чтобы сохранить единый цвет стен в этой зоне. Холодильник выбрали маленький, три года эксплуатации показали достаточность его объема для 1–2 человек. Из остальной техники: посудомоечная машина, вытяжка и полноценная варочная поверхность с духовым шкафом.
В жилой комнате и прихожей стены окрашены. В ванной тоже частично покраска. Темно-синий и зеленый цвета — Deep space blue и Pale lime от производителя Little Greene. Ламинат положили везде, в том числе в кухне и столовой. Вся керамическая плитка из экономсегмента.
Мебель в первую очередь выбиралась по габаритам. Декор — это смесь ассоциаций с Францией и природных мотивов: сине-зеленые стены, белое фактурное панно (то ли пена морская, то ли французская меренга), необработанный булыжник в раковине. Кресло и отделка фанерой немного относят нас к 60-м годам и оттуда — в старое французское кино. Система зонирования стеллажами заимствована дизайнером из старой югославской книги про планировку и декор.
«Ванная комната получилась хорошей площади — пять квадратных метров, но узкая и длинная. В итоге я разбила ее на три зоны: ванна (шириной 1500 мм, мне при росте 170 оказалась вполне комфортной), туалет + очень функциональный стеллаж для хранения, умывальник (из речного камня) и стиральная машина + тумба из дуба и зеркала. Дуб отлично себя показал даже при затоплении, никаких дефектов. Раковина за счет стиральной машины выше нормы, но при росте выше среднего — комфортно. Ее позиционирование из-за стиральной машины и ящика было сложным, сейчас я бы скорректировала его. В целом ванная стала отдельной полноценной комнатой», — рассказывает Анна Букаева.
Бренды, представленные в проекте
Кухня
Отделка: краска, Little Greene
Напольное покрытие: ламинат, Pergo
Мебель: стол и стулья, ИКЕА
Бытовая техника: Electrolux; Kuppersberg; Candy
Ванная комната
Сантехника: раковина, Loftdesigne; унитаз с инсталляцией, Geberit; ванна, Roca
Декор: ИКЕА
Смесители: Ideal Standart
Спальня
Мебель: прикроватные тумбы, ИКЕА
Освещение: ИКЕА
Хотите, чтобы ваш проект был опубликован на INMYROOM? Присылайте фотографии интерьера на wow@inmyroom.ru



















