Вкратце
Дизайнер Мария Зайцева создала стильный и уютный интерьер для молодой семьи, планирующей прибавление. Заказчикам хотелось создать атмосферу тишины, расслабления и домашнего тепла — что-то близкое к кантри. Кантри, расположенному на 11-м этаже серого современного дома. Поэтому в интерьере появились балки под потолком, много зеленого цвета и дерева и подвесное кресло.
Подробности
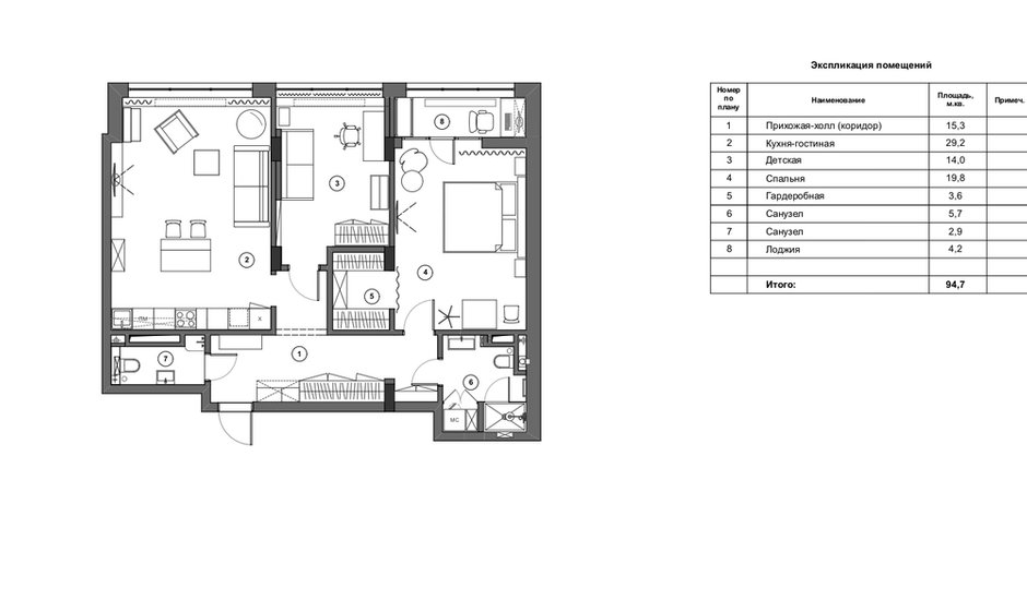
Перепланировка была небольшая. Перенесли вход в гостиную — первоначально он был сразу из прихожей. Выделили гардеробную при спальне. И за счет коридора немного расширили гостевой санузел. Кухню и гостиную отделили небольшим кухонным островом — барной стойкой.
Кухня сделана на заказ. Для хранения крупной техники предусмотрены нижние и верхние шкафы. В острове размещены выдвижные ящики с вилками-ложками, а также выдвижные сушки для посуды. Остров находится напротив посудомоечной машины — удобно выгружать чистую посуду. Дополнительно изготовили разборный кухонный стол из того же материала, что и остров. Когда приходят гости, столы объединяются и образуют пространство для дружеских и семейных посиделок.
«Подоконники сделали из мебельного щита, который купили на проверенном стройдворе. Это позволило сделать единую поверхность без стыков и вышло дешевле, чем заказные подоконники из дерева. Щит покрыли пропиткой и матовым лаком. На подоконниках очень удобно сидеть — смотреть в окно или общаться с компанией: они получились теплыми, вместительными и не скользкими», — рассказывает дизайнер.
В проекте много натурального дерева теплого медового оттенка: пол, подоконники, двери, балки на потолке, часть мебели. Много зелени и зеленого цвета: кухня, мягкая мебель, обволакивающая темно-зеленая спальня. И немного поверхностей с имитацией бетона — как отсылка к окружающему большому городу.
Еще на стадии проектирования решили не экономить на поле и дверях. Пол — паркетная доска, двери шпонированы деревом и выполнены на заказ в местной мастерской. Для стен использовали покраску по стеклохолсту. Это вышло дешевле обоев и декоративной штукатурки, а за счет мелких неровностей даются интересные визуальный и тактильный эффекты.
Тему кантри продолжили в санузлах. Основная ванная облицована плиткой, похожей на лоскутное одеяло. А в гостевом санузле поселились обои с лисами.
Большая система хранения выделена в коридоре. Узкий шкаф рядом с санузлом предназначен для хозинвентаря и запасов. Широкий шкаф в коридоре сделан на заказ специально без внутреннего наполнения в виде полок, штанг. В нем разместили сетчатые системы, которые можно менять с течением времени.
Бренды, представленные в проекте
Кухня
Отделка: краска Top Satin, Kamenevgroup; обои, Elizabeth Ockford
Напольное покрытие: паркетная доска, Meister
Мебель: буфет, этажерка, стулья, все — ИКЕА
Гарнитур: «Левато Соле»
Бытовая техника: микроволновая печь, Hansa; духовой шкаф, печь и холодильник, все — Whirpool; посудомоечная машина, Bosсh
Смесители: Lemark
Мойка: Omoikiri
Освещение: подвес, Odeon Light
Гостиная
Отделка: краска Top Satin, Kamenevgroup; обои, Elizabeth Ockford
Напольное покрытие: паркетная доска, Meister
Мебель: кресло, ИКЕА
Освещение: шинопровод и споты, Arte Lamp
Ванная комната
Отделка: плитка для ванной, Mainzu; плитка, Kerama Marazzi; обои, Scion
Напольное покрытие: Kerama Marazzi
Сантехника: Roca
Декор: ИКЕА
Смесители: Grohe
Освещение: настенный светильник, Odeon Light; потолочные, Arte Lamp
Прихожая
Отделка: краска Top Satin, Kamenevgroup
Напольное покрытие: керамогранит, Abitare
Мебель: комод, ИКЕА
Освещение: Lightstar
Спальня
Отделка: краска Top Satin, Kamenevgroup; обои, Elizabeth Ockford
Напольное покрытие: паркетная доска, Meister
Мебель: кровать и прикроватные тумбы, ИКЕА
Хотите, чтобы ваш проект был опубликован на INMYROOM? Присылайте фотографии интерьера на wow@inmyroom.ru






















