Вкратце
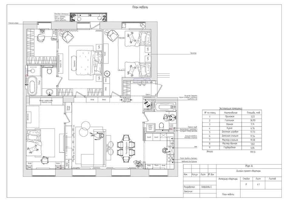
Заказчики купили соседнюю квартиру рядом с той, в которой уже живут, и решили объединить их. Пригласили дизайнера Елену Лебедеву (Иванову), чтобы создать удобную планировку с учетом планов семьи — например, сейчас дети спят в одной комнате, но через какое-то время им понадобятся отдельные детские.
Подробности
Несущих стен между квартирами было мало, также удалось присоединить тамбур между квартирами — это возможно с согласия всех соседей. Вариантов объединения пространств было несколько, но заказчики остановились на той планировке, где все спальни выходят в гостиную. Напоминает отель, где номера выходят в общий уютный холл, в котором классно провести время вместе. А если захочется отдохнуть, то всегда можно уйти в свою комнату.
В доме газ, поэтому кухню нужно было оставить на своем месте и отделить дверьми. Обеденный стол перенесли в гостиную, чтобы на кухне было удобно готовить.
В отделке использовали краску: стены легко подкрашивать, реставрировать. В проекте используются цветная мебель, шпон и плитка с узором, и не хотелось переизбытка текстур, поэтому основные поверхности однотонные.
В игровой комнате разместили кушетку, рабочее место и шведскую стенку. Позднее она станет отдельной комнатой для сына заказчиков, поэтому все зоны предусмотрели заранее.
В спальне родителей поместились большая кровать, много мест хранения, своя ванная комната и гардеробная с рабочим столом. Заказчикам иногда нужно поработать дома, в тихом месте.
Ванная комната при спальне получилась очень нежной и романтичной — использовали несколько видов отделки. Площади хватило, чтобы разместить отдельно стоящую ванну и полноценный душ в строительном исполнении.
В детской установили две кровати с единым изголовьем. У окна оформили место для уютных посиделок с видом во двор.
«Ванная комната спроектирована таким образом, что унитаз находится в укромном месте, а напротив двери мы видим красивую мятную тумбу с зеркалом. Шампуни спрятаны в нише, которую тоже не сразу заметно», — говорит дизайнер.
Бренды, представленные в проекте
Гостиная
Мебель: стол, стулья, барные стулья, все — INMYROOM; диван, The Idea
Освещение: торшер, La Forma
Кухня
Отделка: плитка, Cifre; карниз, Dikart
Смеситель: Omoikiri
Аксессуары: дозатор, Omoikiri
Напольное покрытие: плитка, Marazzi Italy
Детская ванная
Отделка: плитка, Cifre
Напольное покрытие: плитка, Cifre
Сантехника: смеситель, Grohe; душ, Iddis; кнопка, Ideal Standart
Декор: зеркало, J-Mirror
Перегородка: Jacob Delafon
Игровая
Мебель: стул, ИКЕА
Освещение: люстра, Kink Light, INMYROOM
Детская комната
Мебель: столики, письменный стол, все — INMYROOM; кресло-заяц, KRESLO
Освещение: люстра, торшер, бра, все — INMYROOM
Спальня
Отделка: лепнина и карниз, Dikart
Мебель: тумба, комод, все — INMYROOM
Освещение: торшер, La Forma; люстра, INMYROOM
Ванная комната
Отделка: плитка, Atlas Concorde; Cersanit
Сантехника: напольный кран, Boheme; полотенцесушитель, «Сунержа»; кнопка, Ideal Standart
Хотите, чтобы ваш проект был опубликован на INMYROOM? Присылайте фотографии интерьера на wow@inmyroom.ru










































