Вкратце
Дизайнеры Варя Шалито и Рада Кобук создали интерьер для семьи с двумя детьми школьного возраста. Квартира находится в ЖК «Зил Арт», площадь довольно небольшая для всех хотелок — заказчики просили спроектировать прихожую, спальню, кухню-гостиную, две детские комнаты и два санузла. Амбициозно, но все получилось.
Подробности
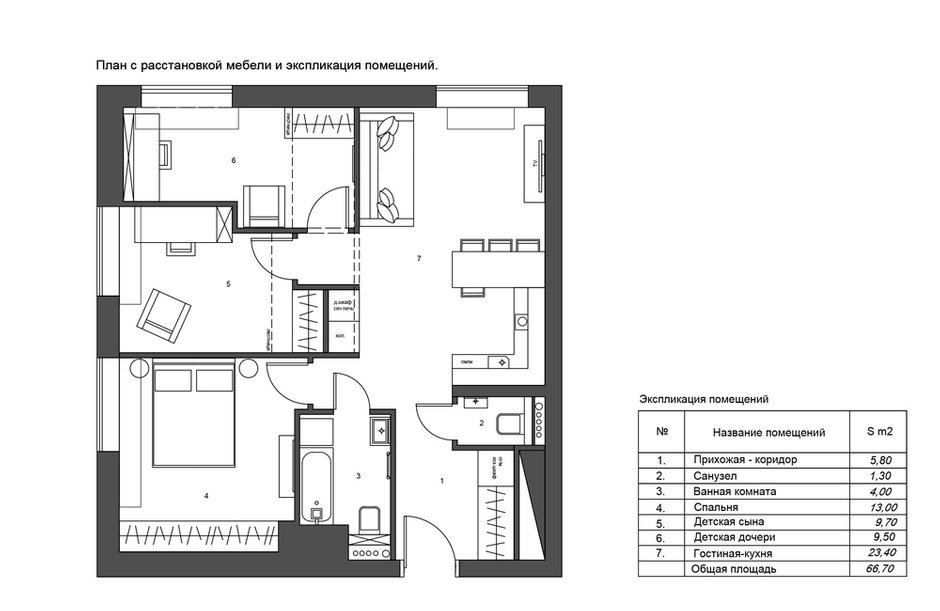
Изначально у квартиры удачная угловая планировка: за счет четырех окон, которые выходят на две стороны, удалось зонировать пространство так, чтобы всем членам семьи было комфортно. Самое большое помещение — кухня-гостиная. Из нее есть проход в две детские. Они получились маленькие, но удобные. Высота потолков три метра, поэтому спальные места организовали под потолком.
Кухня состоит из нескольких частей. Угловой гарнитур выполнили практически до потолка, организовав двойной ряд верхних шкафов — для многочисленного хранения. От зоны гостиной рабочую зону отделили барной стойкой — она здесь вместо обеденного стола.
Еще одна часть кухни — встроенные высокие шкафы с холодильником и бытовой техникой. Они расположены в нише на противоположной стене от основного гарнитура. Фасады выполнены в цвет стен, поэтому мебель сливается с пространством.
Для спальни заказчицы выбрали нейтральный фон, но «отыгрались» на обивке кровати и декоре. Яркое изголовье кровати и картина над ним смотрятся очень стильно и современно.
В отделке санузлов использовали недорогую керамическую плитку, но за счет контрастной затирки и ярких стен и мебели интерьер выглядит эффектно. Мебель изготовили на заказ, чтобы все вписалось идеально.
Бренды, представленные в проекте
Санузлы
Отделка: плитка, Kerama Marazzi; краска, Tikkurila
Напольное покрытие: плитка, Kerama Marazzi
Мебель: тумба, зеркало и шкаф, все — «Акватон»
Сантехника: смеситель в санузле, Ledeme; ванна, Aastraform; душевая система, Orange; кнопки, Berges; унитазы, B&W
Гостиная
Отделка: краска, Tikkurila
Напольное покрытие: паркетная доска, Decorwoods
Межкомнатные двери: Karlson
Мебель: диван, PUSHE
Декор: работа «Пальто» Марии Шалито
Кухня
Мебель: стулья, ИКЕА
Техника: Samsung
Спальня
Мебель: прикроватные тумбы, ИКЕА; консоль, La Redoute
Декор: картина на стене, Светлана Головина; зеркало, Art и max
Детские комнаты
Мебель: столы, стулья, шкаф, все — ИКЕА
Декор: картины на полках, Светлана Головина
Прихожая
Мебель: тумба, ИКЕА
Хотите, чтобы ваш проект был опубликован на INMYROOM? Присылайте фотографии интерьера на wow@inmyroom.ru



























