Вкратце
За основу проекта просторной квартиры для семьи с детьми дизайнер Светлана Цисвилер взяла элементы из стиля кантри. Полностью оформлять пространство в этой стилистике было странно — новостройка, 25-й этаж. Поэтому элементы осовременили и сделали более яркими: например, шкаф-стеллаж в гостиной, который имеет довольно привычные для стиля кантри фасады, сложенные как будто из деревяшек, стал насыщенного синего цвета.
Подписывайтесь на наш Telegram-канал.
Подробности
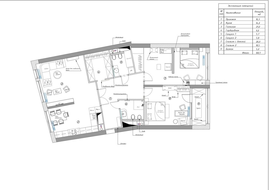
В кухонной зоне находится несущая стена, которую невозможно было уменьшить или перенести. Со стороны гостиной на ней расположили ТВ-зону, а вот со стороны кухни обыграть ее было куда сложнее. Решением стал акцент из плитки, которую использовали для кухонного фартука. Но это еще не все: когда включается подсветка рабочей поверхности, также включается и подсветка этого декоративного панно.
Кухня итальянской марки Stosa с большим объемом шкафов, внушительной варочной панелью на 80 см: под ней расположились глубокие выдвижные ящики, которые позволяют разместить все необходимое. Важным моментом стал выбор раковины: светлый камень — не очень практично, потому что быстро пачкается, а из нержавеющей стали — шумно. Выбор пал на новый материал — специальный сплав металла серебряного цвета — и практично, и бесшумно.
Рейки в гостиной подсвечены до люстры, что создает особый световой эффект. Также заказчик очень хотел видеть в интерьере текстуру камня в зеленых тонах — дизайнер нашла гибкий мрамор, который и был применен для фасадов ТВ-зоны.
«Обои так понравились клиентам на визуализации, что менять они их не хотели, а они были из старой коллекции, поэтому раздобыть образец не получалось. Так что покупали, полагаясь только на референс. После покупки обоев мы подбирали цвет панелей, чтобы достичь максимально гармоничного сочетания. Причем панели были покрашены на производстве только в один слой, второй слой пришлось красить на месте. Так как на стенах сочетались обои, панели и покраска, нужно было красить их после монтажа, чтобы все „сошлось“. И только после этого клеить обои и собирать зеркала в прикроватной зоне», — рассказывает дизайнер.
В проекте использовали три вида дверей. Это сделано для того, чтобы избежать ощущения «как в гостинице». Основные двери белого цвета с фрезеровкой. Дверь в гостиную — совершенно особенная, со стеклом и филенками, выкрашенными в цвет стен гостиной. А за необычным полотном с белым матовым стеклом прячется гардеробная комната.
Санузлы запланированы таким образом, чтобы в квартире были и душ, и ванна — это было пожелание заказчика. Стиральную машину попросили разместить исключительно в ванной, поэтому пришлось поискать для нее место. В итоге ее стал обрамлять шкаф, стенка которого выполнена из тика.
«В бежевом санузле не удалось выровнять геометрию, однако мы максимально ее нивелировали, переведя акцент на другие стены и подчеркнув подсветкой, — говорит дизайнер.
Бренды, представленные в проекте
Кухня
Отделка: краска, Caparol
Напольное покрытие: керамический паркет, Atlas Concorde
Гарнитур: Stosa, Virginia
Бытовая техника: Smeg, Liebherr
Смесители: Blanco
Мойка: Blanco
Освещение: люстра, Favourite
Гостиная
Отделка: краска, Caparol
Напольное покрытие: массивная доска, Missouri
Мебель: ТВ-зона и синий шкаф на заказ, компания «Вуд Инстайл»
Текстиль и декор: текстиль — Art buro Sneg, Ирина Голованова; декор, Monstore
Санузлы
Отделка: розовая плитка, Diesel Living and Iris Ceramica; керамогранит под мрамор, Atlas Concorde
Напольное покрытие: Atlas Concorde
Мебель: тумба, «Вуд Инстайл»
Сантехника: Villeroy & Boch
Декор: ограждение и зеркало, «Арт Зеркал»
Освещение: подвесы, Newport
Прихожая
Отделка: краска, Caparol
Напольное покрытие: керамический паркет, Atlas Concorde
Мебель: комод, «Вуд Инстайл»
Декор: Monstore
Освещение: бра, Lightstar
Двери: «Вуд Инстайл»
Спальня
Отделка: обои, York; краска, Caparol
Напольное покрытие: паркет, Coswick
Мебель: шкафы, «Вуд инстайл»
Текстиль и декор: Art buro Sneg, Monstore
Освещение: бра и люстра, Maytoni
Хотите, чтобы ваш проект был опубликован на INMYROOM? Присылайте фотографии интерьера на wow@inmyroom.ru

