Вкратце
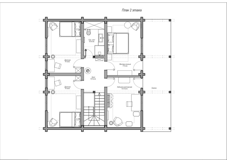
Заказчики — семья из четырех человек: родители и двое сыновей. Дом предназначен для сезонного проживания во время каникул и отпусков, атмосфера должна быть наполнена домашним теплом, уютом, располагать к расслаблению и в то же время радовать его обитателей. Чтобы создать идеальную планировку, внесли изменения в типовой проект застройщика: первый этаж сделали с большой кухней-гостиной, центром которой стал камин, на втором этаже обустроили три спальни и кабинет-мастерскую.
Подробности
Дом двухэтажный: первый этаж выложен из керамических блоков, второй — из бруса. Так как дом не для постоянного проживания, не требовалось обустраивать много мест хранения. В прихожей предусмотрели большой функциональный шкаф для одежды, а пространство с дверью под лестницей оборудовали для чемоданов и новогоднего декора, в спальнях вместо шкафов поставили комоды.
Чтобы ускорить ремонт и комплектацию, использовали отделку и предметы мебели, которые можно купить из наличия — например, керамическую плитку Kerama Marazzi и мебель из ИКЕА. В качестве напольного покрытия на первом этаже из соображений практичности положили керамогранит, а на втором этаже — массивную доску.
«Сердцем любого загородного дома является камин. Изначально по проекту застройщика он располагался в углу гостиной. При разработке планировочных решений мы приложили максимум усилий, чтобы раскрыть пространство, и перенесли часть перегородок. Это позволило переместить камин в самый центр дома, где он хорошо просматривается из всех точек кухни-гостиной. Открытые опорные стойки, которые должны были располагаться в стенах, прекрасно работают на атмосферу дома», — рассказывает дизайнер Елена Горячева.
В прихожей установили насыщенный терракотово-красный шкаф — очень эффектный и функциональный. Своим цветом он уже с самого входа в дом поднимает настроение. Шкаф поддержали раскладкой коврика из цветной керамической плитки на полу.
Старший сын заказчиков ухаживает за неясытью в центре спасения животных. По его просьбе одна из комнат дома была оформлена в «совиной тематике» — обои с совами, потолочный светильник со стилизацией «под перья».
Из санузлов сделали волшебные шкатулки: в интерьере душевой на втором этаже взяли за основу ярко-синие и белые арабески, разбавили их желтыми и узорными вставками. Встроенная мебель с корпусами синего цвета и фасадами под дерево сглаживает строгость плитки и добавляет теплоты.
Бренды, представленные в проекте
Кухня
Отделка: плитка, Kerama Marazzi
Мебель: стол и стулья, гарнитур, все — ИКЕА
Гостиная
Отделка: краска, Derufa
Мебель: ИКЕА
Текстиль и декор: картины Инги Павловой; керамика, «Бисквит керамика»; белая ваза, Ceramum
Техника: ТВ, Samsung
Ванная комната
Отделка: плитка, Kerama Marazzi
Мебель для ванной: на заказ, компания Alfazer
Прихожая
Напольное покрытие: плитка, Kerama Marazzi
Мебель: на заказ, компания Alfazer
Спальня
Мебель: кровать, комод, тумбы, все — ИКЕА
Детская
Мебель: кровать, комод, стол и стул, все — ИКЕА
Хотите, чтобы ваш проект был опубликован на INMYROOM? Присылайте фотографии интерьера на wow@inmyroom.ru































