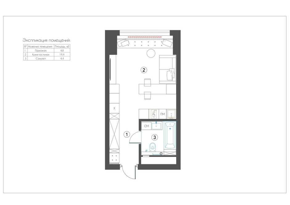
Вкратце
Дизайнер Дарья Големинова оформила студию площадью 29 квадратов на 32 этаже одной из башен в ЖК «Небо». Особенность квартиры — панорамное окно, из которого открывается прекрасный вид на Москву. Заказчики попросили оформить ее для своей дочери-студентки, которая любит принимать друзей и устраивать посиделки. При этом нужно было не забыть про системы хранения и рабочее место.
Подробности
Дробить пространство не хотелось, поэтому использовали единое напольное покрытие и выкрасили фасады мебели в цвет стен — для этого заказывали пробники краски и выкрасы эмали на мебельном производстве. Визуальное зонирование осуществили только за счет цвета и применения различной декоративной лепнины.
Холодильник перенесли в сторону от основного рабочего места и интегрировали в шкаф. Система хранения вдоль стены — единственное место для вещей и бытовых принадлежностей. Шкаф сделали до потолка и разделили за счет цвета на отсеки. Все пространство прихожей, зона шкафа в ней и кухня выкрашены в небесно-голубой цвет, подстать названию ЖК.
Особое внимание стоит уделить мягкой зоне у окна: здесь можно расположиться с книгой и чашкой кофе или посмотреть телевизор. Для оформления окна были выбраны деревянные жалюзи на электроприводе, и помимо основного предназначения они создают дополнительную графику и игру света и тени, когда их опускают.
Площадь санузла позволила разместить полноценную ванну и нишу для хранения, длинную столешницу с интегрированной раковиной, большую и вместительную тумбу. Весь санузел выложили керамогранитом с рисунком под мрамор. Часть стены и потолок выкрасили в нежно-розовый цвет, чтобы визуально увеличить высоту помещения.
Бренды, представленные в проекте
Отделка: краска, Little Greene
Напольное покрытие: кварцвинил, Alpine Floor
Мебель: барные стулья Валенсия и журнальный стол — все INMYROOM
Декор: часы Nomon, INMYROOM
Смесители: Omoikiri
Мойка: Omoikiri
Хотите, чтобы ваш проект был опубликован на INMYROOM? Присылайте фотографии интерьера на wow@inmyroom.ru















