Вкратце
Хозяйка этой квартиры живет одна, но к ней приезжает в гости дочь с мужем и ребенком, поэтому было важно создать такую атмосферу, которая была бы комфортна всем. Планировка в целом нравилась, но были недостатки, которые дизайнер Анна Плакунова устранила — добавила шкаф в прихожей, предусмотрела места хранения в ванной и увеличила кухонный гарнитур.
Подробности
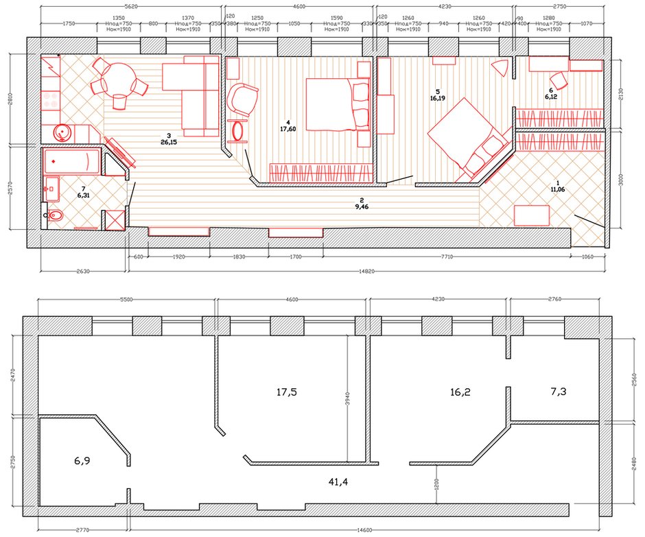
«Изначально это была стандартная петербургская «Расческа»: то есть вдоль стены идет коридор, от которого в одну сторону отходили все комнаты, как зубчики у расчески, — рассказывает дизайнер. — Перепланировка была сделана еще 20 лет назад, я лишь немного ее подкорректировала».
Кухню делали на заказ. Фасады — крашеный МДФ. Необычно расположение встроенной микроволновки — под столешницей. Заказчица говорит, что это очень удобно и микроволновка не занимает место на рабочей поверхности.
Фишкой интерьера стала кирпичная стена вдоль всего коридора, которая открылась после демонтажа ГКЛ и демонтажа старой штукатурки. Коридор увеличился на 10 см по ширине, а отпескоструенный кирпич задал стилистику всей квартире.
Помимо кирпичной стены, остальные стены оклеены однотонными шведскими обоями. Только в двух местах обои с декором. Интересно решили двери. «Комнатные перегородки не переделывали, но хотелось визуально повысить двери. Мы решили сделать фальш-фрамуги. На стену над дверными проемами наклеили зеркало и обрамили его наличниками», — рассказывает Анна Плакунова.
Шкафы в прихожей и гардеробной делались на заказ, чтобы использовать все пространство до миллиметра. Из-за больших размеров фасадов бюджетным это решение не назвать. Зато во второй спальне хорошо встали недорогие шкафы из ИКЕА.
Санузел серьезно уменьшили, но он стал функциональнее. При входе сделали два встроенных шкафчика, в один из которых спрятали бойлер и стиральную машину. Второй шкафчик скрыл скос стены, на котором со стороны гостиной расположился телевизор.
Фото квартиры до ремонта:
Бренды, представленные в проекте
Кухня
Отделка: обои, Pigment; плитка, Kerama Marazzi
Напольное покрытие: плитка, Kerama Marazzi
Мебель: диван, ИКЕА
Гостиная
Напольное покрытие: ламинат, HARO
Ванная комната
Отделка: плитка, Kerama Marazzi
Мебель: тумба, ИКЕА
Сантехника: ванна, Jacob Delafon; унитаз безободковый, Keromag; раковина, ИКЕА
Прихожая
Отделка: обои, Pigment; обои, Jubileum
Напольное покрытие: плитка, Kerama Marazzi
Спальня
Отделка: обои, Pigment
Напольное покрытие: ламинат, HARO
Мебель: кровать, ИКЕА
Хотите, чтобы ваш проект был опубликован на INMYROOM? Присылайте фотографии интерьера на wow@inmyroom.ru



























