Вкратце
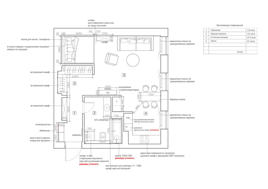
Эта квартира находится в историческом центре Москвы в доме 1893 года постройки. Площадь довольно скромная — 48 квадратных метров. Тем не менее дизайнерам из студии Faomi удалось организовать большую закрытую зону хранения с многочисленными шкафами, камерную зону для сна, гостиную, кухню, обеденную зону с барной стойкой и полноценную ванную комнату.
Подробности
Планировка стала студийной: кухня, гостиная и спальня находятся в одном просторном помещении. Разделение пространства на зоны выполнено за счет света, мебели и столярных изделий. Практически все — от кухни до экранов на радиаторы — выполнено по эскизам Светланы Шалдыбиной.
Кухонную мебель выкрасили в нежный зеленый, верхние шкафы частично со стеклянными дверцами, внутри них — подсветка, которая срабатывает на открывание дверок. Фартук и столешница изготовлены в одном камне. Над варочной поверхностью — встроенная вытяжка в шкафчике: на нем спроектировали небольшой выступ-полку, заказчица будет хранить на ней свою коллекцию фарфоровых ангелочков.
В зоне гостиной поставили классический диван: его преобразили необычная современная обивка и яркие подушки. Слева от дивана шкаф, одна его дверка зеркальная. Зеркало играет не только функциональную роль, но и зрительно ломает пространство, что только на пользу небольшому помещению.
«Воздушные, нежные по цвету шторы смягчают весь интерьер и придают ему уют. Тюля нет — за окном прекрасный вид на усадьбу Долгоруковых-Бобринских. Все предметы декора, вазы и искусство — это яркие, акцентные пятна, которые хочется рассматривать, они делают обстановку неповторимой», — говорит Светлана Шалдыбина.
В гостиной выделили место для сна: в нише сделали деревянное основание, на нем — матрас, под ним — выдвижные ящики для хранения. На стенах мягкие тканевые панели, как в прихожей над пуфом. За подушками предусмотрели небольшую полку, чтобы можно было положить телефон, книгу. На стене у подушек — светильники для чтения.
«Зайдя в квартиру, можно присесть на удобный встроенный пуф, под которым расположилась небольшая закрытая обувница. Над пуфом стена отделана мягкими тканевыми панелями: на них прикреплены открытые крючки, на которые можно временно повесить верхнюю одежду гостей. В коридоре вообще нет потолочного освещения, есть только два бра у зеркала и два нейтральных архитектурных бра на стене со встроенными шкафами.
В шкафах, к которым не доходит дневной свет, мы сделали встроенную подсветку, которая срабатывает при открывании дверок. Шкафов много, они до потолка, в них разместился весь гардероб хозяйки, чемоданы, а также хозинвентарь», — рассказывает автор проекта.
Для отделки ванной выбрали красивую плитку «кабанчик». Дизайнер остановилась на самом графичном варианте — с четкими выступающими гранями в матовом исполнении. Сложность была в укладке такой плитки, особенно на внутренних углах, но строители не подвели. Контрастом служит напольный керамогранит с орнаментом и немного состаренными краями. На потолке добавили гипсовые карнизы — они делают интерьер более торжественным.
Подвесная тумба как бы парит в воздухе, зеркало в тонкой белой металлической раме высотой от столешницы до потолочного карниза зрительно расширяет пространство, увеличивает высоту потолка.
Бренды, представленные в проекте
Отделка: лепнина, DesignCity; краска для стен, Little Greene и Zoffany
Напольное покрытие: паркетная доска, Scheucher
Мебель: все столярные изделия по эскизам дизайнера, мастерская Gvarneri
Декор: картина Марии Голомоносовой; керамика, Ceramum; искусство, галерея Artis; аксессуары в ванной, Keuco
Текстиль: плед, Togas; подушки, Enere
Сантехника: Villeroy & Boch и Hansgrohe
Хотите, чтобы ваш проект был опубликован на INMYROOM? Присылайте фотографии интерьера на wow@inmyroom.ru














