Вкратце
Дизайнер Татьяна Тувман разработала и реализовала проект двухуровневой квартиры для семьи с двумя разнополыми детьми. Квартира изначально была свободной планировки. На первом этаже обустроили кухню, гостиную, гардеробную, кабинет и санузел. На втором — три спальни и два санузла. Заказчики хотели использовать в оформлении восточную тематику, поэтому использовали яркие цветовые сочетания, декоративные узоры и вещи ручной работы.
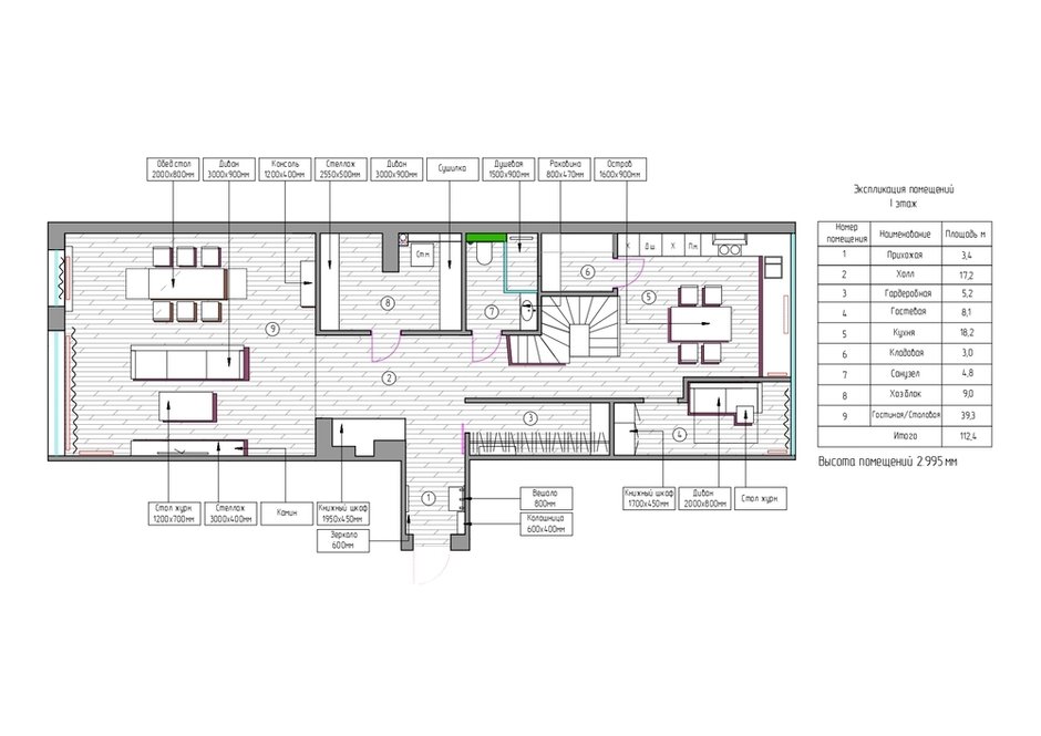
Подробности
Кухонный гарнитур, как и всю корпусную мебель в интерьере, изготовили на заказ. Из техники: духовой шкаф, совмещенный с микроволновой печью, отдельный холодильник и морозильник, посудомоечная машина. В острове все шкафы используются для хранения. От верхних шкафов в рабочей зоне отказались и сделали акцент на очень красивую фреску с растительным рисунком.
В отделке использовали натуральные материалы: декоративную штукатурку, краску и фрески. Все помещения первого этажа выполнены в едином стиле и цвете. Зону прихожей отделили от жилого пространства краской малахитового оттенка.
В мастер-спальне получился очень нарядный и роскошный интерьер. На одной из стен разместили фреску цветочной тематики — ее изготовили специально для этого проекта. Керамогранит испанского производства двух форматов и двух оттенков.
Для сына подростка оформили уже довольно взрослую комнату с большим количеством систем хранения и рабочим столом. Растяжка краски идет от белого цвета к насыщенному синему. Одна стена выкрашена грифельной краской для надписей и рисунков.
В спальне дочери — самой маленькой комнате — гладко выкрашенные стены. Бежевый, персиковый, несколько оттенков розового — маленькая хозяйка участвовала в выборе цветовой палитры. Мебель сделали на заказ: подобрали оттенок в цвет стен и добавили розовые акценты в стеллаже и полках.
Детский санузел оформлен двумя разными материалами: керамогранит в форме шестигранника голубого цвета под терраццо, а также декоративная штукатурка.
Системы хранения оформлены в отдельные помещения: есть две гардеробные, постирочная, кладовая. Вся корпусная мебель выполнена на заказ в Самаре.
Планировка
Бренды, представленные в проекте
Кухня
Отделка: декоративная штукатурка, фреска, все — Derufa
Напольное покрытие: инженерная доска, Tarwood
Бытовая техника: духовой шкаф, Smeg; вытяжка, Teka
Освещение: точечный свет, Маytoni
Гостиная
Отделка: декоративная штукатурка, Derufa
Напольное покрытие: инженерная доска, Tarwood
Детский санузел
Отделка: Chicago Exa
Сантехника: ванна и шторка, Ravak; смеситель для раковины, термостат для ванны, душевой гарнитур, все — Hansgrohe
Мебель: подвесная тумба с раковиной, Vox
Ванная комната
Отделка: Berlin Flamingo; Dune
Мебель: подвесная тумба, Ravak; зеркало, Jacob Delafon
Сантехника: ванна, раковина, смеситель, все — Ravak; унитаз, Artceram; кнопка инсталляции, Tece
Прихожая
Отделка: краска, декоративная штукатурка, все — Derufa
Напольное покрытие: керамогранит, Estima
Спальня
Отделка: декоративная штукатурка, Derufa
Напольное покрытие: инженерная доска, Tarwood
Детская
Отделка: краска, Derufa
Напольное покрытие: инженерная доска, Tarwood
Хотите, чтобы ваш проект был опубликован на INMYROOM? Присылайте фотографии интерьера на wow@inmyroom.ru


