Вкратце
Дизайнеры из бюро Studio DA оформили стильный и современный интерьер в новом жилом комплексе для семейной пары, преподавателей Британской школы дизайна. Заказчики — очень открытые, общительные люди, которые любят принимать гостей. Стояла задача — визуально сделать апартаменты в два раза больше по площади, предусмотреть большую кухню-гостиную и изолированную спальню с гардеробной.
Подробности
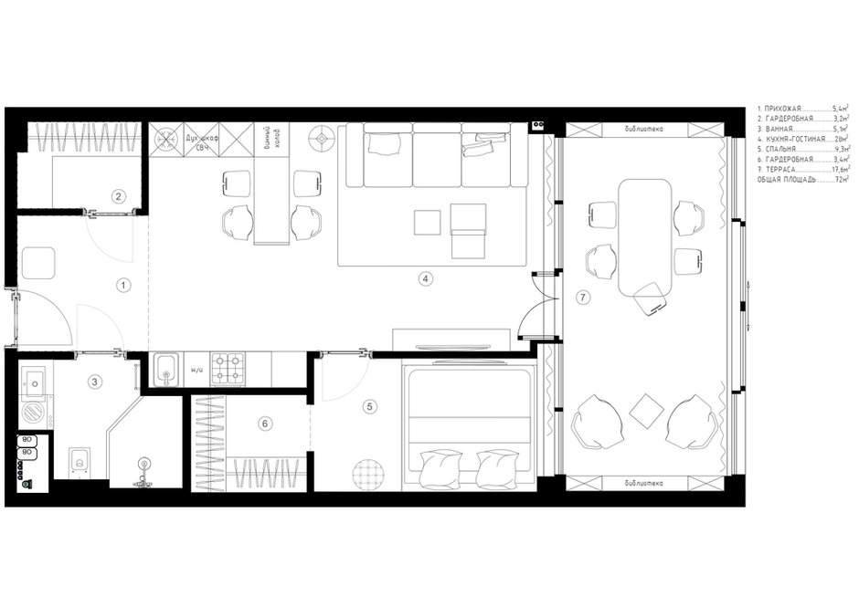
Пространство делится на блоки. Прихожая, гардеробная, санузел создают единый блок. Они выделены отделкой стен, напольным покрытием, освещением — никаких перегородок. Кухня проходная, разделена на мокрую зону и зону с техникой и барной стойкой. Мокрая зона размещена ближе к коллектору и общедомовым коммуникациям.
Гостиная с большим диваном и зоной для проектора. При необходимости можно повесить телевизор — для этого предусмотрели электроточки. Спальня отделена перегородкой из блоков. Блок установлен прямо к импосту остекления через демпфер. На террасе расположены зона столовой, библиотека и зона отдыха.
В «мокрой зоне» кухни разместили мойку на 60 см, посудомоечную машину шириной 45 см, выдвижные ящики для столовых приборов и варочную панель. Противоположная сторона кухни со шкафами-пеналами — в них находятся холодильник, духовой шкаф, есть пенал для хранения продуктов — по сути мини-кладовая. Кухня выполнена на заказ: комбинация фасадов МДФ в эмали и ЛДСП Egger.
В кухне-гостиной и спальне применили единое напольное покрытие — инженерную доску. Она обработана слоем масла таким образом, чтобы исключить попадание влаги в толщу материала. Стены покрашены влагостойкой моющейся краской.
В прихожей на полу использовали микроцемент. «При правильном нанесении покрытия оно очень устойчиво к повреждениям, хотя его толщина всего несколько мм. Необходима тщательная подготовка чернового пола и выравнивание наливным полом. Стена со входной дверью отделана декоративной штукатуркой под бетон — получается визуальный переход материала с пола на стену. Внутренняя панель входной двери была заказана с грунтовкой под покраску и оштукатурена декоративным покрытием вместе с участком стены. Стена в санузел с дверью invisible покрашена. Стена напротив полностью зеркальная, на дверном полотне также есть зеркало для расширения пространства», — рассказывают дизайнеры.
Все столярные изделия выполнены на заказ. В апартаментах две гардеробные комнаты — в прихожей и в спальне. Конструкция кровати напоминает подиум, предусмотрены системы хранения, выдвижные ящики.
Санузел выполнен в темных тонах на контрасте с основным жилым пространством. Использовали керамогранит 1200×600 мм и мелкоформатный декор из одной коллекции. Раковина накладная и немного смещена от центра для удобного размещения сифона и стиральной машины.
Бренды, представленные в проекте
Мебель: журнальные столы, Kare Design; обеденный стул, La Forma; стул и кресло, Deep House
Освещение: торшер Jupiter; Kare
Хотите, чтобы ваш проект был опубликован на INMYROOM? Присылайте фотографии интерьера на wow@inmyroom.ru














