Вкратце
Галина Овчинникова преобразила «убитую» квартиру в хрущевке под сдачу для пары без детей. Хотелось создать удобную и эргономичную планировку, обустроить нейтральный, но при этом яркий и запоминающийся интерьер. При этом важно было уложиться в небольшой бюджет с учетом практически полного демонтажа — поменяли окна, двери, все коммуникации и отделку.
Подробности
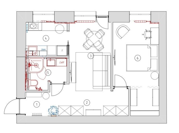
За счет перепланировки удалось объединить кухню и столовую зону. В самой кухне организовали барную зону для быстрых завтраков. Санузел увеличили на площадь коридора.
Кухонный гарнитур линейный, совсем небольшой. Подобрали черные матовые фасады, установили черную бытовую технику. Для фартука выбрали керамогранит с дизайном терраццо.
Обеденную зону в гостиной сделали фокусной точкой интерьера — с помощью рельефных панелей и картины с гусем, специально написанной для этого проекта.
Особенность проекта — отделка оконных проемов и подоконников ярким керамогранитом. Получилось интересное решение, которое прослужит очень долго.
Хранение в гостиной решили с помощью отдельностоящих шкафов для одежды и книг. В спальне выделили место в нише для гардеробной за текстильными шторами.
В спальне создали более приглушенную обстановку. Низ стены в изголовье оформили мягкими текстильными панелями — синяя полоса продолжается на шторах. Поместились также небольшой столик для работы за ноутбуком и кресло с кофейным столиком для чтения.
В отделке санузла повторили цветовую палитру остальных помещений, использовали такой же керамогранит, что и на фартуке, и оконных проемах. Получилось жизнерадостно и современно.
Фото квартиры до ремонта:
Бренды, представленные в процессе
Кухня
Отделка: краска, Dulux
Мебель: стулья, La Redoute
Гарнитур: Hoff
Бытовая техника: холодильник, Maunfeld; варочная панель, Gefest
Ванная комната
Отделка: плитка, Creto и Kerama Marazzi; краска, Dulux
Напольное покрытие: керамогранит, Creto
Прихожая
Отделка: краска, Dulux
Хотите, чтобы ваш проект был опубликован на INMYROOM? Присылайте фотографии интерьера на wow@inmyroom.ru























