Вкратце
Эту квартиру Юлия Горлова оформила для себя и двоих детей: дочери 18 лет, сыну 8 лет. Переезжая в сталинку, дизайнер хотела создать самобытный интерьер, который объединяет лучшие традиции и новаторские идеи, вызывает теплые воспоминания, но остается актуальным и функциональным. В семье часто бывают гости, поэтому важно было организовать просторное общее пространство, но при этом обустроить детскую для двоих с рабочими зонами и небольшой библиотекой и не забыть про питомца.
Подробности
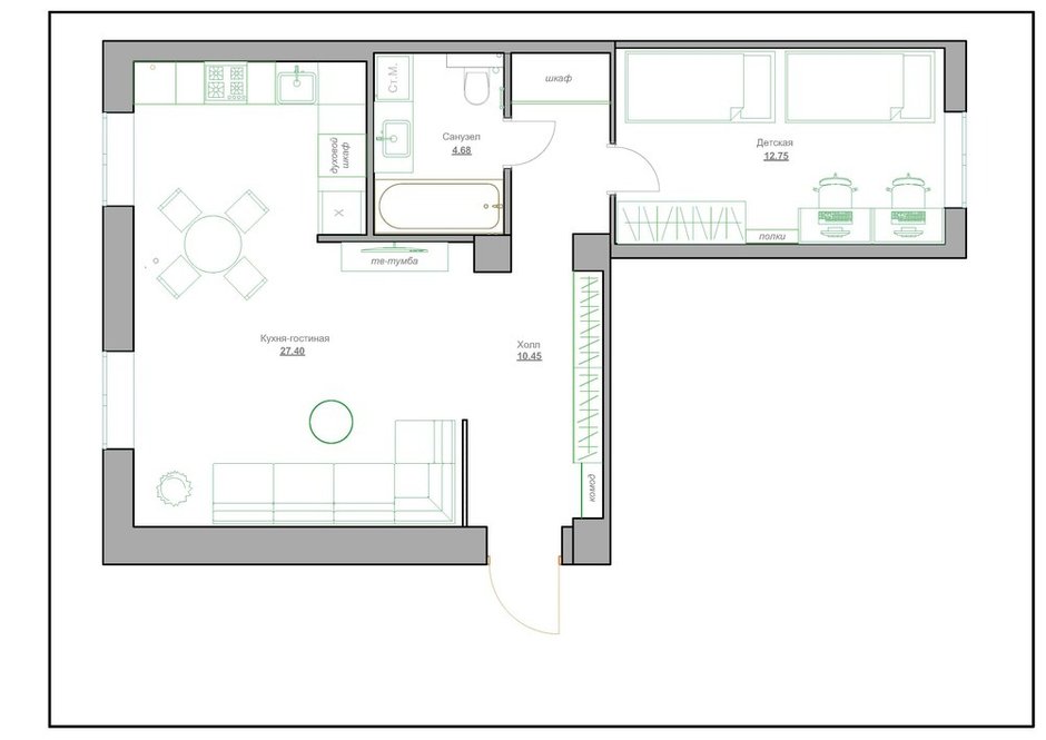
В двухкомнатной квартире 53 кв. м сделали перепланировку. Хозяйке хотелось создать в квартире максимально открытое и свободное пространство, отойти от начальной планировки, но при этом сохранить старый кирпич на стенах без какой-либо реставрации, колонны в прихожей и ригель в том виде, в каком он был при застройке дома. От раздельных санузлов отказались в пользу одного совмещенного, достаточно просторного и функционального.
Продуманное, правильное расположение перегородок позволило мне купить готовую кухню и прилично сэкономить. Угловой кухонный гарнитур специально не до потолка — своеобразная отсылка к сталинским временам. Здесь установлена газовая плита — в дальнейшем планируются межкомнатные перегородки.
«Моя идея с отсылом к старому времени реализована через сохранение кирпичной кладки на внешних стенах и колонне. В ней читаются история, следы времени и современные вмешательства в виде штроб от электрических проводов. Мы выкрасили кирпич в белый цвет, специально не реставрируя и не закрывая щели по углам.
Все возведенные перегородки и смежные с соседями стены были оштукатурены и выкрашены в белый цвет, кроме входной зоны в прихожей. Здесь я использовала достаточно яркий, сложный оттенок розового, который П-образно переходит со стены на декоративную перегородку, как бы обнимая вошедшего и приглашая пройти внутрь», — рассказывает дизайнер.
«Над вариантом светильников я думала долго: ничего не подходило под концепцию. И тут одна из моих знакомых мастериц выложила броши на продажу в виде лиц матрешек — это была любовь с первого взгляда. Сразу картинка сложилась: я поняла, чего же мне не хватает. Я купила обычные круглые белые светильники на маркетплейсе, и мастер сделал мне по эскизу из фанеры кокошники. Я их приклеила к основанию. А художница расписала мне получившиеся уникальные светильники в виде вот таких очаровательных Дуняшек», — делится Юлия Горлова.
В детской разместили две кровати с подъемным механизмом и зоной хранения и два рабочих стола. Шкаф в спальне готовый, не заказной. Отделение с полками дети определили для себя сразу — высокие для дочери, нижние для сына.
Обратите внимание на видео:
«В планировке санузла я использовала классический вариант расположения сантехнического оборудования по стенам. Принципиальным здесь было установить ванну 180×80 см для моей высокой дочери. Столешницу из слэба мне сделал на заказ местный мастер. Уже отдельно я купила тумбу и раковину. Стиральная машина расположилась под столешницей. Удобное и функциональное пространство получилось в достаточно просторной комнате. Вертикальный полотенцесушитель специально расположила справа от входа, чтобы скрыть визуальный шум и сделать отражение в зеркале максимально красивым», — делится хозяйка.
Фото квартиры до ремонта
Бренды, представленные в проекте
Кухня
Отделка: краска, Moda; керамогранит, Laparet
Напольное покрытие: керамогранит, Laparet
Гарнитур: кухонный гарнитур, Bazone
Бытовая техника: варочная поверхность, духовой шкаф, микроволновая печь, отдельностоящая вытяжка, Dexp; холодильник, Indesit
Смесители: Florentina
Мойка: GranFest
Освещение: светильник потолочный, Feron lighting
Гостиная
Отделка: краска, Moda
Напольное покрытие: ламинат, WoodStyle Cottage
Текстиль и декор: наволочки декоративные, JoyArty
Ванная комната
Отделка: керамогранит, Laparet; керамогранит, Cersanit
Сантехника: полотенцесушитель, Inaro; инсталляция, Alcaplact; ванна, «Ривьера»; душевая стойка, Gappo; раковина и смеситель, Teymi
Освещение: светильник, TopDecor
Прихожая
Отделка: краска, Moda
Напольное покрытие: керамогранит, Cersanit
Мебель: ИКЕА
Освещение: светильник накладной, Feron lighting
Детская
Отделка: краска, Moda; фреска, WallTERRA
Напольное покрытие: ламинат, WoodStyle Cottage
Мебель: шкафы, ИКЕА
Освещение: светильник потолочный, Feron lighting
Хотите, чтобы ваш проект был опубликован на INMYROOM? Присылайте фотографии интерьера на wow@inmyroom.ru




















