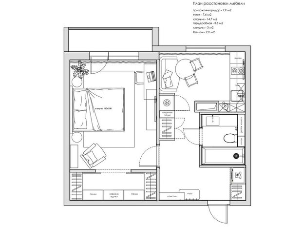
Интерьер этой однушки в типовом панельном доме был создан дизайнером Ольгой Бодровой для молодой девушки, которая искала комфортное место для жизни и учебы. Основной задачей было организовать пространство так, чтобы оно сочетало в себе стиль и функциональность, включая достаточно мест для хранения вещей.
До ремонта прихожая выглядела как типичная квартира со скучным, уже устаревшим ремонтом. Громоздкий шкаф имел покосившиеся фасады, создавая ощущение загроможденности. Обои внутри шкафа делали пространство еще более устаревшим и неприветливым.
После переделки прихожая кардинально изменилась. Для отделки стен был выбран малярный флизелин, который можно легко подкрашивать, если это понадобится. Это решение добавляет гибкости в использовании пространства. На пол уложен красивый узорчатый керамогранит, который гармонирует с отделкой кухни. Входную дверь заменили, и теперь она не только украшает, но и повышает уровень уюта.
Чтобы упростить себе задачу при ремонте, стоит заглянуть в галерею готовых решений от Лемана ПРО. Здесь можно выбрать проекты, где уже продуманы планировка, мебель и отделка, а все материалы и предметы декора доступны в одном месте. А также можно записаться на бесплатное проектирование системы хранения, где специалисты Лемана ПРО создадут проект под вашу планировку и запрос.
Вместо громоздкого шкафа в нише теперь располагается современное место для хранения с зеркальными раздвижными дверцами, которые визуально увеличивают пространство. Прямо напротив входной двери висит картина, написанная самой дизайнером, что добавляет индивидуальности и тепла в обстановку.
Справа от входа — декоративная панель в цвет двери, на которой размещены крючки для сумок и других нужных вещей. Акценты, такие как подвесная консоль, зеркало и яркий пуф, дополняют общий стиль, превращая прихожую в гармоничное и функциональное пространство.
Каждая деталь в прихожей тщательно продумана, чтобы помогло создать уютную атмосферу и обеспечить все необходимые условия для хранения вещей. Такая прихожая не только радует глаз, но и облегчает повседневную жизнь, делая пространство более комфортным для молодой хозяйки.
erid: 2W5zFGezJzU. Реклама. lemanapro.ru. ООО «ЛЕ МОНЛИД». ИНН 5029069967.





