Перед дизайнером Алиной Камалеевой стояла задача создать для холостяка — популярного московского диджея — универсальный интерьер, который при необходимости можно будет легко трансформировать для будущей жены и ребенка.
Место: г. Москва
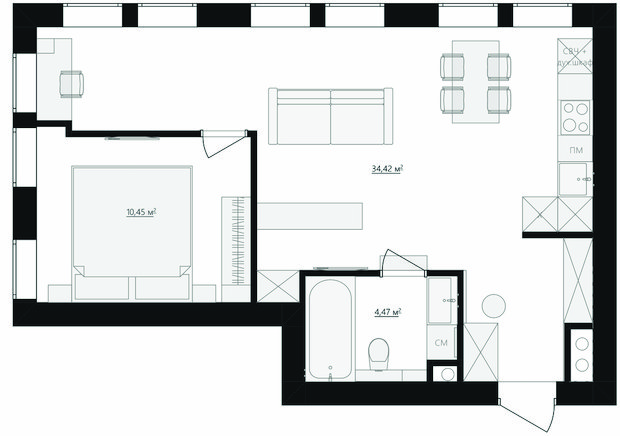
Метраж: 52 м²
Высота потолков: 3 м
Количество комнат: 2
Санузел: 1
Дизайн: Алина Камалеева
Фото: Наталья Градусова
Стилист: Софья Паскевич
Алина Камалеева — в дизайне интерьеров уже 10 лет, в архитектуре 14. «В первую очередь в работе для меня важна практичность и функциональность. Что бы все мои заказчики через много лет писали “спасибо” за удобство их жилья. Работаю по принципу “от проектирования до переезда”. О своих проектах рассказываю в Инстаграм, Телеграм, ВКонтакте, а с портфолио можно ознакомиться на сайте». (*Meta Platforms признана экстремистской организацией в РФ).
О планировке
На момент начала работ квартира представляла собой свободную планировку с уже обозначенными «мокрыми» зонами. В результате перепланировки появились кухня-гостиная, отдельная спальня, прихожая и совмещенный санузел. Особое внимание уделили зоне кабинета, предусмотрев закладные элементы для будущей возможной детской.
О кухне-гостиной
Кухня оформлена в современном минималистичном стиле. Здесь установлен линейный гарнитур с темно-серыми фасадами, а верхние шкафы выполнены с дверцами из темного стекла. Кухня оснащена всей необходимой современной техникой.
Зону гостиной визуально подчеркивает серый потолок. Главным элементом здесь стал большой диван с яркой зеленой обивкой. Он легко трансформируется в дополнительное спальное место. В нише расположен встроенный стеллаж для книг и декора, а небольшой журнальный столик легко перемещается и может использоваться как придиванный.
О спальне
Стены во всей квартире окрашены в нейтральные тона. В спальне, в изголовье кровати, использованы 3D панели, которые добавляют пространству текстуры и визуального интереса. Вся система хранения в квартире, включая спальню, выполнена на заказ. В спальне шкаф сделали максимально прозрачным, создав вау-эффект и визуально облегчив пространство.
О прихожей
На пол во входной зоне уложили прочный и практичный керамогранит. Потолок, как и в гостиной, темно-серый. Здесь установлен вместительный шкаф для хранения верхней одежды, а для повседневной одежды предусмотрены открытые вешалки. На входной двери — большое зеркало, которое отражает свет от окна и визуально расширяет пространство.
О санузле
Санузел отделан темным керамогранитом. Главная задача здесь заключалась в том, чтобы вместить максимум функциональности на ограниченной площади: стиральную машину, систему защиты от протечек, ванну, раковину, унитаз и, конечно же, места для хранения. Несмотря на компактные размеры, санузел получился стильным и комфортным.












