Румтур этой квартиры (25 минут)
Вкратце
Для молодой семейной пары дизайнер Анна Жижайкина оформила квартиру в спокойных тонах. Главной задачей было создать уютное пространство с удобными системами хранения, отдельной спальней и кабинетом для работы на дому. В интерьере преобладают белые и бежево-коричневые оттенки, а за основу взят стиль неоклассика.
Подробности
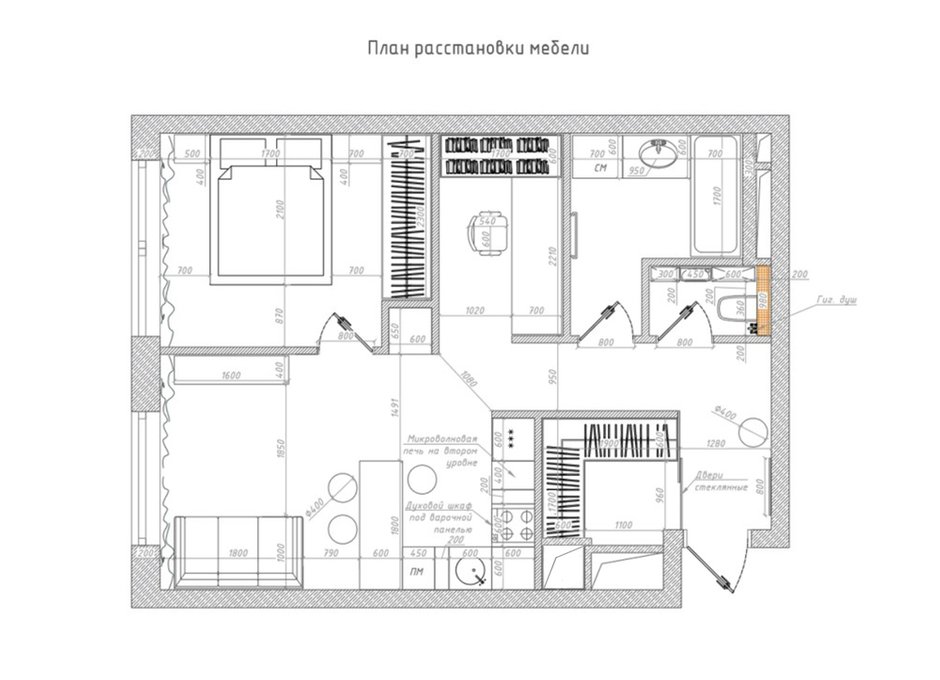
На старте проекта квартира представляла собой бетонную коробку с несущей балкой. Благодаря грамотному зонированию удалось спланировать удобную кухню-гостиную, отдельную спальню, кабинет, два санузла и гардеробную.
Поскольку заказчица любит готовить, кухню оборудовали всем необходимым. П-образный гарнитур с барной стойкой обеспечивает достаточно рабочей поверхности. Технику разместили в колонне на противоположной стене, что позволило освободить пространство и предусмотреть необходимый функционал. Верхние шкафы установили только на одной стороне, выбрав для них зеркальные фасады, — они отражают свет от окна и визуально увеличивают пространство.
В качестве напольного покрытия во всей квартире использован ламинат, уложенный «елочкой». Стены покрашены и декорированы молдингами. По периметру всех комнат, в верхней части стен, установили бордюр из декоративных панелей, окрашенных в цвет стен. Они привносят нотки классического стиля и добавляют объем.
Для кабинета была спроектирована ниша, в которой разместили большой рабочий стол, чтобы создать комфортное рабочее пространство. Для хранения документов и важных рабочих принадлежностей предусмотрены встроенные подвесные и напольные шкафчики, а также отдельная ниша для техники.
В спальне есть большой шкаф для хранения вещей, оснащенный подсветкой, которая интуитивно включается при открывании. Стена в изголовье кровати оформлена темно-серо-коричневой краской и декоративными молдингами. Возле одной из прикроватных тумб располагается зеркальная панель, визуально расширяющая пространство. Кровать оборудована удобным подъемным механизмом.
Во входной зоне спроектирована гардеробная, которая деликатно отделена от прихожей раздвижными стеклянными дверями. Благодаря тонировке стекла, содержимое гардеробной не привлекает лишнего внимания. Напротив размещено широкое зеркало, дающее возможность оценить свой внешний вид перед выходом.
Раздельный санузел включает в себя компактную, но хорошо продуманную ванную комнату. Здесь размещена полноразмерная ванна, над которой предусмотрена ниша с подсветкой — идеальное место для гелей и шампуней. Зона стирки организована возле раковины, где в нише установлены стиральная и сушильная машины, окруженные практичными шкафчиками для хранения. В туалете — тумба под раковину с открытыми и закрытыми полками и большое зеркало.



















