Команда студии инвестдизайна «50 оттенков интерьера», дизайнеры Татьяна Бельтова и Ксения Лёвина реализовали проект однокомнатной квартиры в новостройке Санкт-Петербурга. Они обустроили светлый изысканный интерьер с парижским вайбом и всем необходимым для комфортного проживания. Показываем классные идеи из проекта, которые вдохновят вас на переделки.
Микс сталинского ампира и французского очарования
Концепция проекта вдохновлена архитектурой района со сталинками и французскими окнами квартиры. Получился микс сталинского ампира и парижского очарования: белые стены с молдингами, черно-белые фотографии, плитка с графичным орнаментом, черная фурнитура и золотые акценты. Это делает небольшую однокомнатную квартиру светлее, просторнее и более атмосферной.
Единый цвет — ключ к гармонии
Единый цвет на стенах по всей квартире использовали намеренно, так как геометрия помещений очень непростая. Комнаты имеют неправильные формы с выступающими углами, и эти архитектурные особенности «растворили» в чистоте белого цвета, подарив помещениям чистоту и ясность. Молдинги на стенах помогают обозначить зоны: зону гостиной, столовой и домашнего офиса.
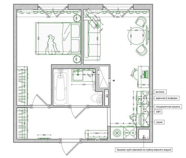
Функциональное зонирование
В гостиной выделили место для домашнего офиса, поставив письменный стол и предусмотрев розетки для подключения ноутбука, зарядки телефонов и включения настольной лампы. Таким образом столовая и рабочая зона не смешиваются.
Максимум хранения, минимум визуального шума
В зоне кухни нарастили стену и поставили два больших пенала в нишу, спрятав в них встроенный холодильник и духовку с СВЧ. Таким образом обеспечили максимальное место для хранения и сохранили аккуратный и эстетичный вид зоны готовки.
Дополнительное спальное место
В гостиной предусмотрели широкий диван-кровать. При необходимости он позволит разместить гостей, несмотря на ограниченный метраж квартиры.
Уютная компактная спальня
В спальне очень скромных габаритов поставили кровать 140 см шириной и две миниатюрные тумбочки, чтобы с обеих сторон от кровати остались полноценные проходы. Подвесные светильники рифмуются с акцентной подушкой на кровати. Шторы-блэкаут фланкируют французское окно, а на стене над изголовьем кровати расположили крупноформатную фотографию с изображением настоящего парижского окна с красивой кованой решеткой и распахнутыми ставнями.
Бюджетные решения для ванной
Стены в санузле частично в крупногабаритном керамограните, частично — в покраске специальной водостойкой краской. Этот прием позволяет значительно уменьшить бюджет на плитку, при этом помещение смотрится более «жилым». Этот эффект усилили, повесив парадную люстру.
Этот проект демонстрирует, что даже в небольшой квартире можно создать стильное, функциональное и комфортное пространство, используя продуманные дизайнерские решения и творческий подход.
Автор фото Александр Зиновьев.








