Дом расположен в живописном уголке Ленинградской области, на берегу тихого озера в Кингисеппе, и окружен зрелым фруктовым садом, полным яблонь, груш и кустов сирени. Владельцы — взрослая семейная пара, построившая дом более 17 лет назад для себя и своих детей. Они решили вдохнуть в дом новую жизнь, обновить интерьер, не разрушая его основу и атмосферу. Перед дизайнером Ольгой Фисенко они поставили задачу переосмыслить пространство, сохранив все ценное, что накопилось за годы.
Место: г. Кингисепп, село Ивановское
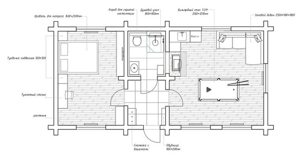
Метраж: 200 м²
Количество этажей: 2
Высота потолков: 2,7 — 7,5 м
Количество комнат: 5
Санузел: 2
Бюджет: 4 млн 400 тыс. рублей
Дизайн: Ольга Фисенко
Фото: Наталья Андреева
Основной дом
Живописное место, великолепный фруктовый сад, зеркальная гладь озера и безупречная архитектура деревянного дома — все это задавало высокую планку для создаваемого интерьера. Дизайнер с особым трепетом отнеслась к существующей обстановке. Все элементы из массива дерева — кухня, лестница, комоды и даже антикварный обеденный стол, прибывший из Европы — были бережно сохранены и тщательно отреставрированы.
Кухня
Напольное покрытие заменили на мозаику из керамогранита, созданную по индивидуальному эскизу. Кухонный гарнитур, выполненный из качественного и долговечного массива дерева, решили не менять. Фасады перекрасили, отреставрировали, заменили столешницу, фартук и фурнитуру. Варочный центр в современном стиле от итальянского производителя разбавляет классический облик мебели.
Массивный обеденный стол также подвергся обновлению: ножки перекрасили в более темный цвет, а столешницу выполнили в цвет дерева, дополнив современными стульями. Над столом установили стильные подвесные светильники. Легкий тюль на окнах завершил образ.
Гостиная
Стены из лафета были перекрашены в светлый оттенок американской краской на водной основе. Лестница, как символ дома, была полностью разобрана по ступеням, отреставрирована и собрана заново, обретя современное звучание благодаря облегченным металлическим перилам. Камин получил новую облицовку из камня, выполненную в спокойной, современной геометрии, став стильным акцентом в интерьере.
Диван обновили, перетянув его новой, приятной на ощупь обивкой, и дополнили декоративными подушками, создающими атмосферу уюта. Светлый современный ковер добавил тепла и комфорта. Тумбу под ТВ отреставрировали и перекрасили в акцентный синий цвет, придав ей свежий и актуальный вид. Завершили композицию новые современные журнальные столики, подчеркивающий лаконичность и стиль обновленного интерьера.
Спальня
Хозяйская спальня отличается простором и особым уютом, который создает настоящий камин. В комнате бережно сохранен и отреставрирован старинный комод. При спальне расположена отдельная гардеробная, планировка которой осталась неизменной.
Прихожая
В прихожей на полу уложена новая плитка, стены перекрашены в единый цвет, использованный и в других комнатах. Тумба стала ярким акцентом благодаря насыщенному зеленому цвету. Дополнительно предусмотрены удобный пуф и зеркало.
В доме имеется отдельная постирочная, полностью оборудованная системой хранения: шкафами и раковиной для технических нужд.
Ванная комната
Мозаика на полу в ванной и кухне, разработанная индивидуально и выполненная из керамогранита, добавляет изысканности и стиля. Мебель и ванна были отреставрированы и перекрашены, а фасады мебели украшены маркетри с изображением птиц и цветов, созданными по личному эскизу. Современные смесители с каменными ручками от испанского производителя вносят нотку элегантности.
Гостевой домик
Во втором, гостевом доме, особое внимание уделено зоне камина и кухни. Облицовка из натурального камня объединяет два функциональных блока в единое целое. Центром пространства стал бильярдный стол, разработанный индивидуально с учетом размеров помещения, эргономики и общего стиля.
В спальне предусмотрено все необходимое для комфортного пребывания гостей: удобная кровать с обивкой приятного голубого оттенка, телевизор, туалетный столик и зеркало.






















