Дизайнер Евгения Акимова разработала проект для однушки 36 кв. м, предназначенной для долгосрочной аренды. Квартира была свободной планировки, поэтому проектирование начинали с нуля. Главная задача — создать универсальный интерьер с продуманными системами хранения, который арендаторы могли бы легко адаптировать под себя.
Гардеробную разместили на месте, где застройщик планировал кухню, а кухонную зону немного сместили. Рассказываем все про светлую и стильную кухню из этого проекта.
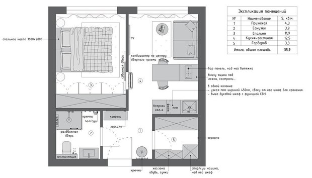
Кухня-гостиная площадью 12,5 кв. м получилась компактной, но технически насыщенной. Центральным элементом стал барный остров с белой столешницей — он выполняет сразу несколько функций: варочная панель встроена прямо в его поверхность, под столешницей расположены вместительные ящики для хранения, а с противоположной стороны остров служит обеденной зоной с барными стульями из серой ткани букле на черных ножках.
Над островом подвешена цилиндрическая белая вытяжка — нестандартное решение, которое выглядит как самостоятельный декоративный элемент. Всю технику, кроме варочной панели, сосредоточили в одной колонне шириной 600 мм у правой стены. Снизу встроена узкая посудомоечная машина, выше — духовой шкаф с функцией СВЧ, рядом — холодильник, а верхние шкафы отвели под хранение редко используемых вещей. Компоновка освобождает рабочую зону и делает кухню визуально чище.
Гарнитур выполнен в светло-бежевом оттенке без ручек, с минималистичными фасадами от пола до потолка. Латунные вертикальные рейки на колонне с техникой — единственный декоративный акцент на кухне, который добавляет теплоты нейтральному интерьеру. Столешница острова и рабочей зоны — белая, раковина врезная стальная, смеситель с высоким изливом в матовом хроме.
Рабочую зону со шкафами и раковиной разместили вдоль левой стены, отделив ее от острова небольшим проходом. Стена над раковиной оставлена чистой — без навесных шкафов, что добавляет воздуха и подчеркивает высоту помещения. Над островом висит линейный светильник — деревянная трубка с латунными держателями, которая поддерживает общую теплую палитру.
В гостиной, которая плавно перетекает в кухню, стены покрашены в тот же светло-бежевый оттенок. Радиусные молдинги очерчивают зону дивана, окрашенные в тон стен, создают игру теней при включенном свете. Диван с обивкой из букле добавляет тактильности, спальня отделена от кухни-гостиной раздвижной дверью с вертикальными рейками в цвет стен.
Благодаря барному острову с варочной панелью, колонне со всей техникой и единым бежевым фасадам без ручек кухня получилась функциональной, визуально легкой и универсальной. Евгения Акимова доказала, что арендная квартира не должна быть безликой — продуманные детали вроде цилиндрической вытяжки и латунных реек создают характер без лишних затрат.






