Вкратце
Хоумстейджер Татьяна Аникина разработала проект трехкомнатной квартиры для семьи с ребенком-школьницей. Ключевой задачей стало создание комфортной среды для всех членов семьи, где родители могли бы работать удаленно, а дочь — учиться и отдыхать. Требовалось организовать два изолированных и эргономичных рабочих места для родителей и наполнить пространство индивидуальными деталями, отражающими характер и увлечения семьи.
Татьяна Аникина — хоумстейджер (с англ. — специалист, который занимается хоумстейджингом — способом предпродажной подготовки недвижимости). «Дизайн интерьеров вошел в мою жизнь с момента обустройства собственной квартиры. С 2014 года я начал(а) инвестировать в недвижимость, а с 2025 года дизайн интерьеров стал моей основной профессией. В своих проектах делаю особый акцент на создание функциональных пространств, где каждый элемент продуман и адаптирован под реальные жизненные сценарии. О своих проектах рассказываю в Инстаграм*, Телеграм, Пинтерест, а с портфолио можно ознакомиться на сайте». (*Meta Platforms признана экстремистской организацией в РФ).
Подробности
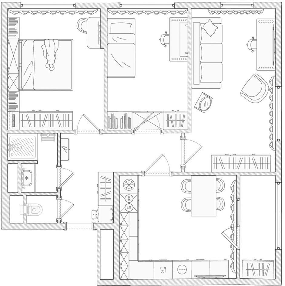
Планировочное решение квартиры было сохранено в изначальном виде от застройщика. Пространство включает кухню, гостиную, спальню, детскую, коридор и раздельный санузел. Для организации комфортной работы из дома для каждого из супругов было спроектировано отдельное рабочее место: одно расположено в гостиной, а второе — в спальне.
Центром общего пространства стала кухня, выполненная на заказ. В ее дизайне был использован глубокий зеленый цвет фасадов, который гармонично сочетается с белыми стенами, светлой рабочей столешницей и деликатными золотыми элементами. Помимо стандартного набора встроенной бытовой техники, удалось разместить стиральную машину и дополнительную морозильную камеру. Вдоль одной из стен удачно скомбинированы система открытого хранения и ТВ-зона. Особое внимание было уделено эргономике: сушка для посуды интегрирована в нижнюю секцию кухонного гарнитура, что делает ее удобной в использовании даже для самого младшего члена семьи.
Особое внимание уделено кухонной двери — она выполнена с большой площадью прозрачного стекла. В открытом положении такая дверь визуально растворяется в пространстве коридора, пропускает свет, мягко приглушает звуки и при этом сохраняет возможность присматривать за детской комнатой из кухни.
Для отделки стен в разных зонах использовались практичные решения. В кухне и коридоре выбрана моющаяся краска — это обеспечивает простой уход и долговечность. В гостиной и детской поклеены обои, добавляющие уют и теплоту, а в спальне удачно сочетаются краска и фрагмент обоев для акцента. Напольное покрытие подобрано с учетом функциональности и комфорта: инженерная доска в жилых комнатах и керамогранит в прихожей и кухне.
В гостиной площадью 15 кв. м удалось компактно разместить три ключевые зоны: ТВ, рабочее место и уголок для фитнеса. Чтобы сэкономить пространство, ТВ-зона была интегрирована с рабочим столом, что позволило выделить достаточно места для тренировок с напольным зеркалом. Освещение продумано под разные задачи: лампа на столе — для работы, бра — для чтения, а подсветка в нишах создает атмосферу для семейного просмотра фильмов.
Мебельное наполнение интерьера объединяет три ключевых предмета из одной коллекции — кровать, письменный стол и гардероб на ножках. Благодаря схожей эстетике и пропорциям, они выглядят органично, несмотря на то, что размещены в разных комнатах, создавая тонкую дизайнерскую связь между пространствами.
Шкаф в спальне выполнен в цвет стен, что позволило ему слиться с плоскостью и не дробить пространство. В фасадах книжных полок использовано прозрачное стекло, создающее эффект легкости. Над туалетным столиком размещено зеркало высотой до потолка, визуально увеличивающее высоту помещения. На фасадах отказались от традиционных ручек в пользу системы открывания по нажатию или интегрированных профилей, что обеспечило гладкие, цельные поверхности и минималистичный вид.
Для рабочей зоны школьницы был подобран эргономичный стол с регулируемой по высоте столешницей. Это решение позволяет легко адаптировать его к росту ребёнка в любой момент, а также быстро превратить в удобное рабочее место для взрослого, например, для совместных занятий. Дополнительным элементом стала выкатная тумба с мягкой съёмной панелью — она служит одновременно как практичное место для хранения и как удобный пуф для родителей, которые помогают с уроками или проводят время вместе.
В коридоре разместили шкаф для верхней одежды и аксессуаров и обувницу. Чтобы пространство визуально оставалось просторным, использовали проверенное решение с зеркалом на входной двери, а также одинаковый цвет встроенного шкафа и стен. Интерьер наполнили личными историями и увлечениями его обитателей. Так, общая любовь семьи к конструкторам Lego нашла отражение в специально созданных моделях, ставших яркими акцентами в пространстве. Еще одним уникальным элементом стала картина с изображением горнолыжного склона, на которой запечатлены сами жильцы квартиры.



















