Вкратце
Дизайнер Валерия Разумова разработала проект квартиры для молодой пары, ценителей современного дизайна и советской эстетики. Задача стояла не только в создании светлого, комфортного и динамичного пространства, но и в том, чтобы наполнить его характером — отразить увлечения заказчиков. Их любовь к книгам, интерес к советскому и современному искусству, а также планы по формированию личной арт-коллекции стали смысловым стержнем всей концепции.
Подробности
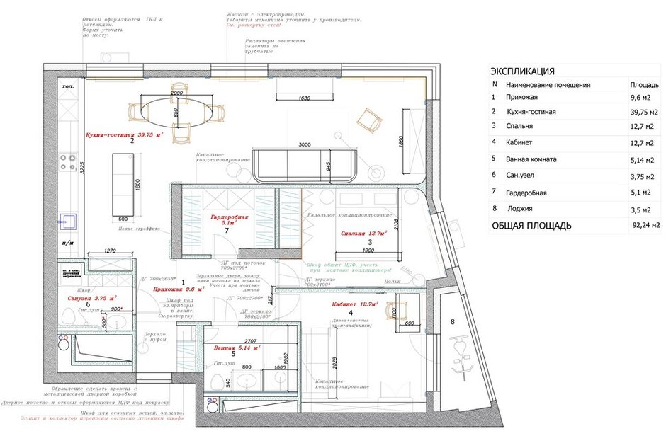
Квартира сдавалась в отделке white box (в переводе с английского — «белая коробка»). Отделочные материалы, в том числе стяжку пола, полностью поменяли. Изменения в планировке коснулись создания единого пространства: угловое окно, выходящее на две стороны, позволило объединить кухню-гостиную, сделав ее светлой и визуально более просторной.
В центре квартиры обустроили функциональную гардеробную. Также в квартире есть две изолированные комнаты. Одна из них выполняет функцию спальни хозяев, другая — кабинета-библиотеки. Предусмотрена возможность трансформации второй комнаты в детскую, учитывая планы семьи на будущее.
Основное внимание в интерьере уделено индивидуальной и выразительной мебели. Стены выступают в роли нейтрального фона, выгодно подчеркивая элементы искусства, коллекция которого постоянно пополняется владельцами. В реализации авторских идей дизайнер сотрудничала с ремесленниками, художниками и столярными мастерскими, что позволило привнести в проект уникальные элементы и высокое качество исполнения.
Кухонные модули стандартного размера (60 см) обеспечивают удобное хранение посуды в нижних ящиках. Особое внимание в этой зоне уделено острову, столешница которого выполнена из редкого бразильского камня Азул Макаубас. Поиск и обработка этого материала были непростыми задачами. Для большой коллекции хрустальной посуды предусмотрен встроенный шкаф с подсветкой. Облицовка полок и наличников выполнена из древесины лайсвуд в интересном серо-фиолетовом оттенке. Она обладает исключительными декоративными качествами и уникальным чешуйчатым узором.
Светильники над обеденным столом стали одним из самых сложных, но и самых интересных этапов проекта. Изначально у Валерии была четкая идея, которую она представила керамисту Полине Артамоновой. Вместе они начали работу над осветительными приборами «с нуля». Процесс занял более полугода, потребовав множества экспериментов и отработки технологий. Этот период был насыщен эмоциями — от моментов отчаяния до моментов радости и вдохновения. В результате совместной работы Полина смогла запустить собственный бренд и производство.
Поиск мебели был очень обширным и включал посещение как специализированных салонов, так и просмотр товаров на вторичном рынке. Например, стулья для столовой, обитые красной кожей, были привезены из Италии. А деревянные стулья были найдены в винтажном магазине, отреставрированы и обтянуты новой тканью. Диван в гостиной был создан по индивидуальному эскизу Валерии. Он раскладывается и обшит прочной, износостойкой тканью. Зеркало в прихожей, а также прикроватные столики из акрила также выполнены по ее авторским наброскам.
Благодаря отсутствию жестких бюджетных ограничений, многие элементы были реализованы по эскизам дизайнера в столярной мастерской. Так, для хранения аксессуаров в спальне использована натуральная синяя кожа внутри шкафов. В библиотеке, где площадь ограничена, совместили зоны хранения книг и одежды. Шкаф в этой комнате выполнен в виде арт-объекта с фасадами, украшенными решетчатым узором.
Красный мрамор обрамляет периметр ванной комнаты, перетекая в зеркальную поверхность. Тумбы под раковины изготовлены по индивидуальным эскизам. В санузле-постирочной пол выложен травертином, а стены покрыты мозаикой с закругленными углами.






















