Дизайнеры Анастасия Гавриленко, Анастасия Камаева и Екатерина Маркина реализовали интересный проект в самом центре Екатеринбурга — квартира на пятом этаже «брежневки» в Красном переулке, рядом с ДИВСом и рукой подать до набережной. Квартира, мягко говоря, повидала виды: давний ремонт, сильный кошачий запах, пропитавший даже стены. Задача состояла в том, чтобы сделать ремонт, подобрать мебель и декор. Срок реализации составил 6 месяцев.
Гостиная до ремонта
Кухня до ремонта
Гостиная до ремонта
Спальня до ремонта
Кабинет до ремонта
Коридор до ремонта
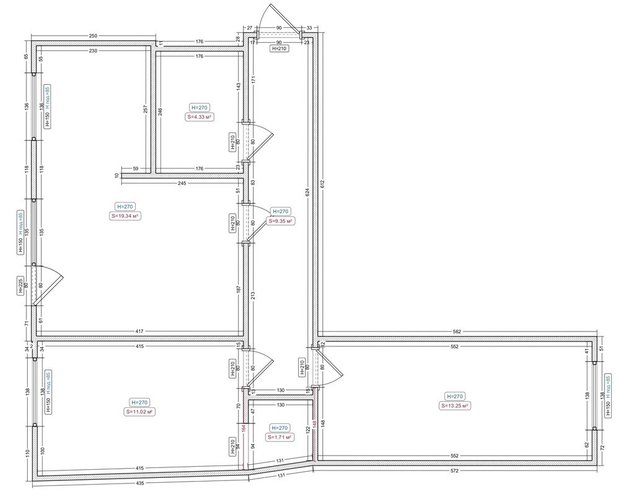
О планировке
Планировку не меняли, так как это не входило в задачи проекта. В квартире есть длинный коридор, кухня, гостиная, спальня с гардеробной, кабинет-гостевая, совмещенный санузел.
О кухне
Стены кухни оформили краской — это практичное и доступное решение. В качестве фартука использовали плитку, которая осталась после ремонта в санузле. Кухонный гарнитур изготавливался на заказ: фасады представлены в двух оттенках. Обратите внимание, что вдоль стены, которая хорошо видна из гостиной, установлены только нижние шкафы, что делает пространство более легким и воздушным. Все необходимое для хранения и отдельно стоящий холодильник вынесли на правую сторону.
Бывший зимний холодильник под окном демонтировали и освободили место для уютной зоны. Теперь там стоят барные стулья, образуя идеальный уголок для утреннего кофе и быстрых перекусов. Наслаждаться завтраком, любуясь видом на аллею, — одно удовольствие.
О гостиной
Центром гостиной стал яркий диван, задающий тон всему пространству. Обстановку гармонично дополняют ТВ-тумба, журнальный столик и шкаф-витрина — все элементы выполнены в едином стиле с плавными, округлыми формами. Мягкий ковер в клетчатый узор придает пространству уют и завершенность.
Из гостиной есть выход на балкон. Он был застеклен и отделан пластиковыми панелями, но от всего этого избавились. На пол уложили керамогранит, остекление решили не делать, сохранив оригинальное кованое ограждение. Теперь балкон наполнен светом и воздухом, добавляя квартире визуального простора.
О спальне
Спальня получилась очень светлой и уютной. Нежный песочный оттенок стен красиво гармонирует с фигурным полосатым изголовьем кровати. Стеклянный прикроватный столик и пара бра, повешенных над ним вертикально, создают легкую и воздушную композицию. С другой стороны — минималистичный черный столик и поворотный светильник, удобный для чтения.
В нише обустроена гардеробная, оформленная шторами в полоску. Наполнение гардеробной стандартное, а как в ней, так и напротив кровати у окна, располагаются фигурные зеркала.
О кабинете
Кабинет легко трансформируется в уютную гостевую комнату. Центральное место занимает раскладной диван в приятной темно-зеленой обивке. У окна расположился рабочий стол, а для хранения предусмотрены вместительные шкафы. Бра над столом было перекрашено в нежный сливочный цвет, придающий ему изысканность.
Над диваном появился изысканный гобелен: дизайнеры заметили его в одном из ресторанов Екатеринбурга, пришли в восторг и нашли точно такой же. Ручки шкафов дополнили элегантными кисточками, оставшимися от одного из прошлых проектов, что добавило интерьеру уникальности и завершенности.
О прихожей
В прихожей на полу уложили практичный керамогранит, а дверь перекрасили в тон интерьера, сделав ее гармоничной частью пространства. Поскольку место здесь ограничено, вместо громоздкого шкафа решили установить настенную панель с крючками — идеальное решение для повседневной одежды и сумок. Электрощиток искусно скрыт за картиной. Старый пуф обрел новую жизнь благодаря чехлу, сшитому из оставшейся ткани.
О санузле
Стены в ванной зоне и над раковиной отделаны квадратной плиткой, подчеркнутой контрастной бордовой затиркой. Пол украшает квадратная зеленая плитка с белой затиркой, создавая геометрический рисунок. Круглое зеркало с подсветкой, несмотря на свою доступность, мгновенно преобразило атмосферу ванной комнаты.
В зоне унитаза использованы яркие бордовые стены, добавляющие смелый акцент. От инсталляции решили отказаться, чтобы сохранить пространство и бюджет. Красивая картина в основных цветах интерьера скрывает счетчики.
Общие затраты на ремонт и комплектацию квартиры «под ключ» составил 2,44 миллиона рублей.
Распределение бюджета:
- Демонтаж, вывоз мусора и доставка материалов на пятый этаж без лифта: 400 тыс. рублей.
- Работа строителей: 850 тыс. рублей.
- Черновые и чистовые материалы: 650 тыс. рублей.
- Мебель, техника, текстиль и декор: 540 тыс. рублей.



























