Вкратце
Дизайнер Татьяна Иванова успешно реализовала инвест-проект, превратив маленькое пространство студии в привлекательное жилье для аренды. Оригинальные решения оформления, основанные на местной истории и колорите, создают уникальную атмосферу для туристов. В квартире с комфортом можно остановиться как на несколько дней, так и на пару недель.
Татьяна Иванова — дизайнер, декоратор и стилист интерьера с опытом работы более 20 лет. «В работе люблю задействовать исторический подтекст, создавая для каждого пространства свою персональную историю, проявляя его достоинства. О своих проектах рассказываю в Телеграм, во ВКонтакте, а с портфолио и отзывами можно ознакомиться на сайте».
Подробности
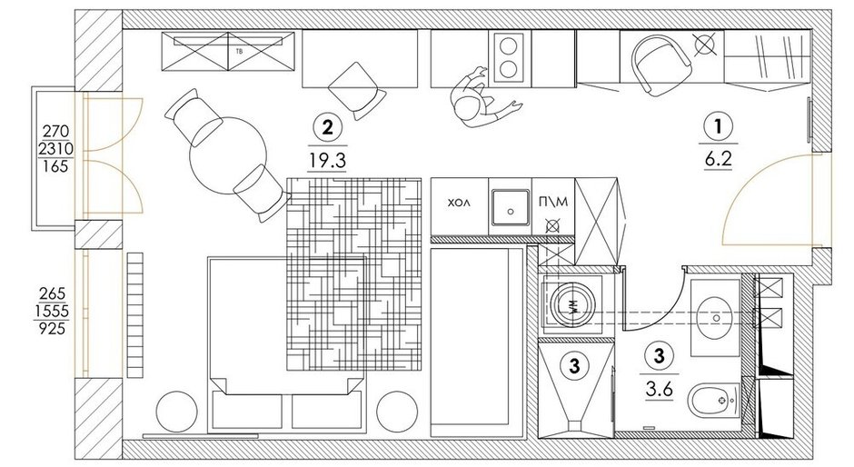
Изначальную планировку от застройщика не меняли, но максимально оптимизировали пространство. Кухонная зона перенесена в коридор, что позволило разместить в бывшей нише удобную кушетку. Центральным элементом стала спальная зона, напротив нее – ТВ-зона и небольшое рабочее место. Завершают функциональное наполнение квартиры прихожая и совмещенный санузел.
Обратите внимание на видео:
Кухонный гарнитур был изготовлен на заказ, что дало возможность идеально подобрать цвет отделки и гармонично вписать его в общую композицию со шкафом, формирующим прихожую. Отказ от верхних секций в пользу минималистичных деревянных полок для декора и подручного хранения позволил сохранить легкость пространства.
Поскольку квартира предназначена для временного проживания, количество бытовой техники сбалансировали, обеспечив полный набор необходимого для приготовления полноценных блюд. Кухонная зона оснащена встроенным подстольным холодильником, мойкой с фильтром для воды, посудомоечной машиной, индукционной варочной панелью, духовкой и микроволновой печью. Для приготовления напитков предусмотрены кофемашина и чайник.
«В оформлении квартиры я обращалась к названию стихотворения Н. Некрасова "Зеленый шум", взяв за основу несколько оттенков зеленого, гармонично сочетающихся со стилистикой мид-сенчури, — рассказывает дизайнер Татьяна Иванова. — Интерьер пронизан духом 70-х: он наполнен винтажными предметами той эпохи, которые я собирала по местным блошиным рынкам или с любовью реставрировала в своей мастерской. Особое очарование придают настенное текстильное панно над кроватью и элегантные металлические ширмы, зонирующие пространство кухни и гостиной — все это создано по моим собственным эскизам».
Особое внимание уделено винтажным предметам, которые стали любимыми элементами проекта. Среди них — тумба для раковины в санузле. Этот отреставрированный предмет мебели, найденный на онлайн-площадке и доставленный из Санкт-Петербурга, был дополнительно покрыт несколькими слоями акрилового лака для защиты столешницы от влаги. Также в интерьер гармонично вписаны винтажное кресло и стул для рабочего места, которые прошли реставрацию и были перетянуты новой тканью.
Некоторые предметы декора были обнаружены на блошиных рынках Ярославля. Среди них — изящные настенные кашпо, винтажный кофейник и сахарница. Декоративная тарелка «Товарищества М.С.Кузнецова», несмотря на легкую трещинку, добавила проекту нужную винтажную нотку. Также я нашла применение своей коллекции керамических крышечек — они украсили стены и зеркало в прихожей, став частью оригинального декора.
Материалы отделки стен включают влагостойкую краску для жилых зон и комбинацию керамической плитки, керамогранита и влагостойкой краски в санузле. Такой подход обеспечивает практичность, долговечность и легкость в поддержании чистоты. В качестве напольного покрытия по всей квартире выбран SPC-ламинат, устойчивый к воде, износу и простой в уборке.
Корпусная мебель, кровать и кушетка были подобраны с учетом необходимых размеров, цветовой гаммы и общей стилистики интерьера. Кровать и кушетка оснащены вместительными ящиками для хранения, что особенно удобно для длительного пребывания гостей и позволяет держать под рукой дополнительный текстиль.
Декоративным акцентом у кровати выступает текстильное панно, состоящее из двух частей для удобства монтажа. Поролоновая основа обеспечивает некоторую шумоизоляцию, а верхняя часть выполнена из эффектного гобелена. Нижняя панель выполнена из влагостойкой ткани типа «Оксфорд», что значительно облегчает уход и предотвращает быстрое загрязнение.
Система хранения представлена композицией из двух отдельных шкафов в прихожей зоне. Один из них предназначен для гардеробной, второй — для кухонных принадлежностей. Эта основа дополнена настенной панелью и еще одним шкафом. Последний идеально подходит для хранения негабаритного багажа, сумок или аксессуаров, а также имеет выделенную секцию для гладильной доски, ручного пылесоса и стремянки, обеспечивая максимальную упорядоченность.
В санузле предусмотрена ниша за шторкой, в которой компактно размещены накопительный водонагреватель и стиральная машина с функцией сушки. Это решение также позволяет удобно хранить чистящие средства. Раковина и унитаз расположены вдоль одной стены, а глубина инсталляции позволила сформировать эргономичный выступ, который служит удобной полкой.
Отделка представляет собой гармоничное сочетание двух видов плитки и влагостойкой краски для ванных. Все элементы выполнены в близких зеленых оттенках, что воплощает тему «Зеленого шума» в завершенной форме.
Бренды, представленные в проекте
Отделка: краска, Тиккурила; плитка, Керама Марацци, Creto
Напольное покрытие: ламинат, PLANKER
Сантехника: смесители, Am.Pm; раковина и унитаз, Ceramica Nova
Мебель: комод, Икеа
Освещение: Maytoni; Odeon Light


















