Задача дизайнера Марии Жигуновой в этом проекте была четкой: подготовить квартиру к выгодной продаже, проведя ремонт с ограниченным бюджетом, без масштабных строительных работ. Требовалось создать универсальный, привлекательный для большинства покупателей интерьер и — что критически важно — предусмотреть максимум удобных мест для хранения, так как эта опция всегда высоко ценится на рынке.
Место: МО, г. Красногорск
Метраж: 43 м²
Высота потолков: 2,6 м
Количество комнат: 2
Санузел: 1
Дизайн: Мария Жигунова
Фото: Павел Беспалов
Квартира до ремонта
До переделки квартира находилась в плачевном состоянии. Старые грязные обои, облупившаяся побелка на потолке, темные и массивные межкомнатные двери визуально «съедали» свет и пространство. Интерьер выглядел усталым и требовал не просто косметического, а комплексного обновления. Несмотря на это, у квартиры были и сильные стороны: просторная кухня и красивый вид с балкона, которые следовало грамотно обыграть.
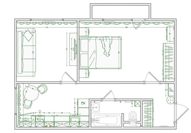
О планировке
Планировка в квартире типовая, поэтому глобальных изменений в нее не вносили. Основные усилия были направлены на визуальные и функциональные улучшения. Ключевыми шагами стали объединение раздельного санузла (что сразу повысило комфорт и современность планировки) и демонтаж дверного проема между кухней и коридором. Это создало более открытое и светлое пространство.
О кухне
Угловая модульная кухня представляет собой полностью укомплектованный гарнитур, включающий всю необходимую встроенную технику. Даже стиральна машина скрыта за одним из фасадов. Практичность пространства обеспечена множеством вместительных шкафчиков, а также отдельно стоящим холодильником, над которым размещен навесной модуль для хранения.
Кухонный фартук выполнен из керамогранита с прожилками, что позволяет ему выполнять не только защитную, но и декоративную функцию, служа стильным акцентом. В обеденной зоне предусмотрен компактный круглый стол, дополненный парой мягких стульев. Их обивка перекликается с цветовой гаммой верхних фасадов, создавая целостный и гармоничный образ всего интерьера.
О гостиной
Во всех помещениях квартиры стены оформлены обоями под покраску, которые создают нейтральный и современный фон. На полу уложен практичный ламинат с приятной фактурой, имитирующей натуральное дерево.
Небольшая гостиная оборудована функционально: здесь установлен просторный диван, который легко раскладывается в полноценное спальное место. Напротив предусмотрена компактная подвесная тумба, которая не загромождает пространство. Помимо основного верхнего освещения, в зоне отдыха есть стильные бра над диваном, создающие уютную атмосферу в вечернее время.
О спальне
В спальне акцентной стала стена за изголовьем кровати, которую оклеили обоями с красивым растительным принтом. Центральный предмет мебели — просторная кровать с подъемным механизмом, обеспечивающим дополнительное место для хранения вещей. По обе стороны от нее установлены удобные прикроватные тумбы, а вдоль стены размещен большой вместительный шкаф.
У окна организован функциональный уголок: подвесная консоль и мягкий пуф. Завершает композицию зеркало с интегрированной подсветкой, создающее уютную атмосферу и делающее пространство более светлым.
О прихожей
Для организации хранения в прихожей был спроектирован большой встроенный шкаф, расположенный напротив входа. Справа от входной двери размещено большое зеркало, а для обуви предусмотрена удобная обувница. Дополнительный комфорт обеспечивает мягкий пуф.
О санузле
В отделке совмещенного санузла использована комбинация материалов: в ванной зоне стены облицованы керамогранитом спокойного оттенка, а в туалетной части окрашены влагостойкой краской. По всему полу уложена система теплого пола. Оборудование включает ванну, подвесную тумбу для хранения, раковину и зеркало с интегрированной вечерней подсветкой. В туалете смонтирована компактная инсталляция. Люк доступа к инженерному коллектору был декоративно скрыт за картиной.
Этот проект — яркий пример того, как даже небольшие инвестиции в грамотный дизайн способны кардинально изменить пространство и повысить его рыночную стоимость.




















