Вкратце
Интерьер этой двухкомнатной квартиры создавался для молодой и очень активной семьи, которая часто и подолгу путешествует. Им хотелось, чтобы после ярких впечатлений было приятно возвращаться домой и обнуляться. Дизайнеру Марии Сапуновой предстояло создать расслабляющую и ничем не перегруженную атмосферу, в которой можно перезагрузиться для новых путешествий. Особым пожеланием стало размещение двух совершенно разных санузлов — для него и для нее.
Подробности
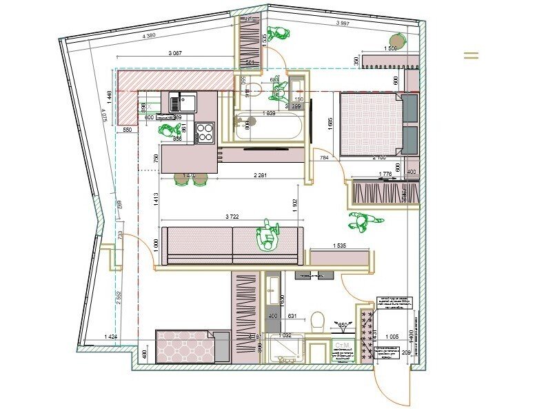
Планировка от застройщика — свободная, но с огромным количеством ригелей, что неудивительно для такой сейсмоактивной зоны. Необходимости сносить стены не было. Основной задачей стало размещение на небольшой квадратуре всех функциональных зон, необходимых для комфортной жизни молодой активной семьи. Острой необходимостью было разместить два санузла — и это удалось сделать в пределах мокрых зон, обозначенных застройщиком.
Основной особенностью интерьера стала миниатюрная, но полностью укомплектованная кухня, которая разместили внутри несущей конструкции. С обратной стороны этой конструкции расположен функциональный кабинет для хозяина квартиры с великолепным видом из панорамных окон. Встроенная техника размещена согласно стандартному рабочему треугольнику, но в очень компактных пропорциях, что является бесспорным плюсом для миниатюрной заказчицы.
Система хранения до потолка позволяет разместить все необходимое для редкого использования. Индукционная плита установлена в один уровень со столешницей из искусственного камня, что обеспечивает легкий уход за рабочей поверхностью. Мойка подстольного монтажа также, бесспорно, облегчает повседневные бытовые задачи.
Неоспоримым плюсом отделки всех помещений является аппаратная покраска стен. Интегрированный плинтус подчеркивает графичность интерьера и идеально примыкает к дверям скрытого монтажа нестандартной высоты, что придает дополнительную графичность и строгость минималистичному интерьеру.
Системы хранения организованы в нескольких зонах. В коридоре за дверцами шкафов скрыты хозблок и стиральная машина. В спальне расположен большой шкаф, за его верхним фасадом спрятан кондиционер. В период использования он будет открываться с помощью пульта, а в остальные десять месяцев в году — не будет портить вид комнаты.
Несущая конструкция и ригельная система стали своего рода шаблоном для зонирования. В частности, в спальне по ригелю проходит подсветка, а разделение зоны туалетного столика и кровати выполнено реечной конструкцией. Такая же реечная конструкция визуально разделяет зону кухни и TV-зону.
Вся мебель для этого проекта была выполнена на заказ, с тонким подбором оттенков под цвет стен. Декор подбирался интуитивно, но именно картина собрала в себе все оттенки этого минималистичного интерьера и внесла немного динамики в размеренную цветовую гамму уютного пространства.
Согласно техническому заданию заказчиков, в квартире необходимо было разместить два санузла: для нее и для него. Они выполнены в противоположной цветовой гамме. Его санузел — брутальный, графитовый, с большой душевой кабиной. При этом дно душевой расположено в одной плоскости с уровнем пола санузла — это также было пожеланием заказчика, и инженеры с помощью насоса успешно решили эту задачу. Такое решение отражает динамичный темперамент главы семьи.
Санузел для нее наполнен совершенно другой энергией: он расслабляющий, замедляющий, приглашающий отдохнуть и понежиться в ванне при свечах под медитационную музыку.


















