Созданию проекта, который мы сегодня хотим вам представить, предшествовала романтическая история. Изначально, интерьер квартиры в старинном особняке на Патриарших прудах должен был стать воплощением мечты холостяка, но изменения в личной жизни заказчика привели к коррекции базовой концепции дизайна.
Автор
"Все наши идеи – это реакция на то, что мы видим вокруг себя. У нас никогда не было чувства, что мы работаем (в истинном смысле этого слова). Мы держим марку и беремся за проекты идеологически близкие нам, веря в то, что только в этом случаем можно достигнуть высокого результата".
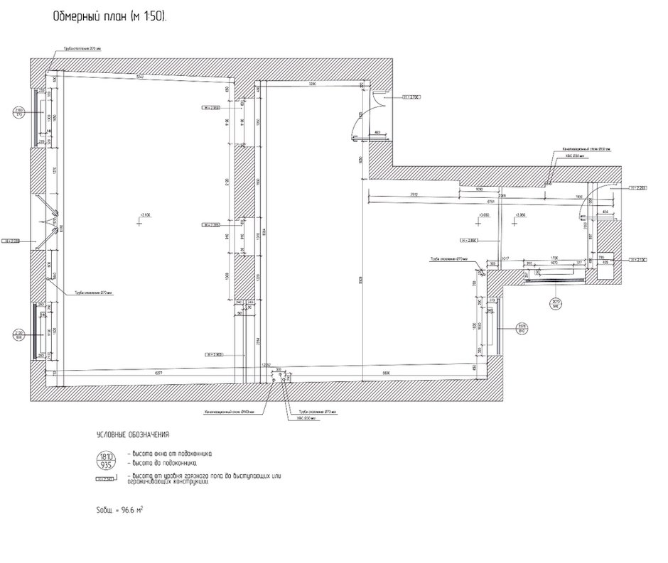
Квартира площадью 96,6 квадратного метра расположена на последнем этаже старинного особняка в Спиридоньевском переулке, что на Патриарших прудах. Заказчику она досталась в ужасном состоянии. Изменить ситуацию предстояло автору проекта – Маргарите Кашиной.
Заказчик
Заказчик – интересный образованный человек, много путешествует, свободно говорит на нескольких языках, коллекционирует современное искусство. Изначально по духу квартира должна была стать чисто мужской, холостяцкой. Однако в жизни заказчика произошли некоторые изменения, в результате которых появилась необходимость организовать пространство таким образом, чтобы в нем могла комфортно разместиться семья из двух человек.
Перепланировка
Верхние и нижние перекрытия, коммуникации были полностью реконструированы. Однако глобальных изменений в несущие перегородки не было внесено. Дверные проемы были выборочно расширены и укреплены.
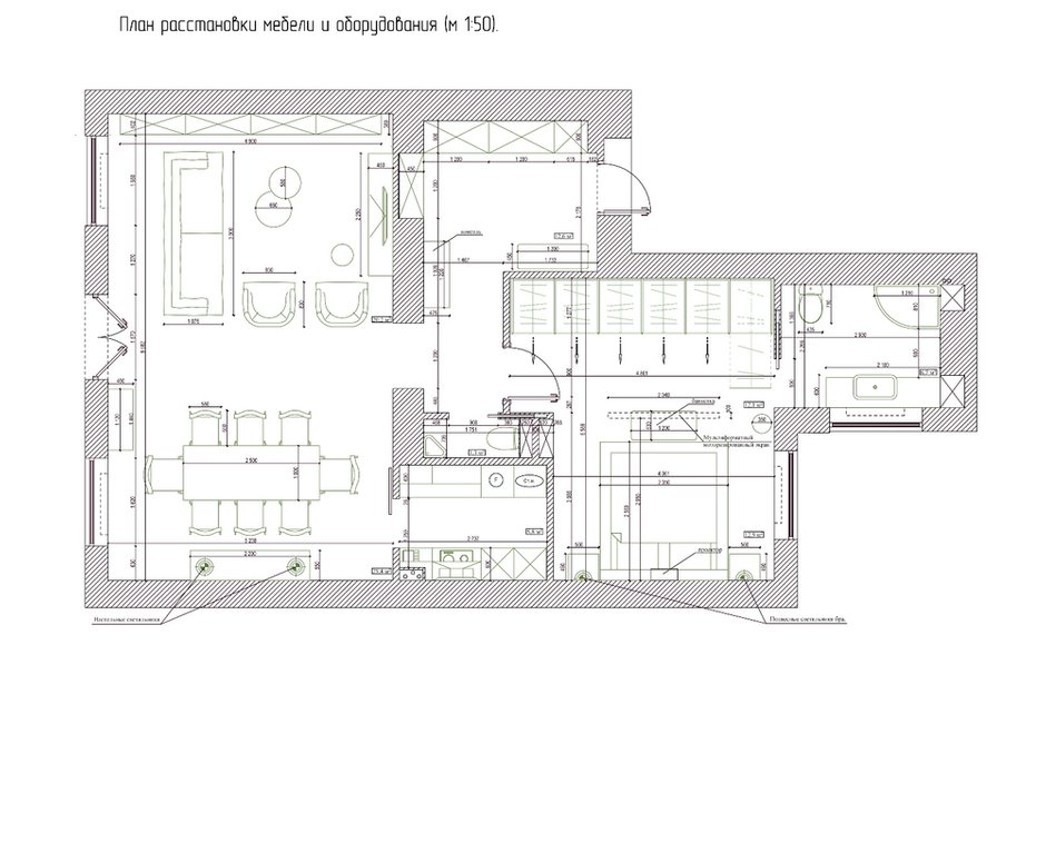
Также произошло перераспределение жилых зон. В результате появилась большая спальня с отдельным санузлом и гардеробной, а также большая открытая зона гостиной-столовой с потайной кухней.
Стиль
Так как заказчик проекта – человек очень разносторонний, можно сказать, коллекционирующий впечатления, настроения и тенденции, было достаточно сложно ограничиваться определенными стилевыми рамками. Сами создатели определяют стиль проекта как "вариации на тему ар-деко". Однако это определение касается скорее общего настроения интерьера, а не его предметного наполнения.
В целом проект получился эклектичным, свободным от каких-либо канонов и поэтому весьма интересным.
Цвет и свет
Были подобраны глубокие, насыщенные, преимущественно темные оттенки, которые в сочетании с правильно организованным освещением придают особую глубину интерьеру.
Декоративный свет: подвесной светильник в зоне столовой, светильник в прихожей, бра в спальне и подвесной светильник в ванной комнате – Delightfull (Португалия). Технический свет – Delta Light (Бельгия).
Мебель
Диван, кресла и кровать – Baxter. Остальные предметы мебели: Minotti, Longhi, Boca do Lobo. Уникальный шкаф в гардеробной с выкатными метровыми секциями и гобеленовым панно известного московского художника – идея заказчика, воплощенная на одной из фабрик Италии. Деревянный шкаф-гардероб в прихожей и книжный стеллаж в гостиной сделаны на заказ по эксклюзивным авторским чертежам.
Декор и текстиль
Интерьер получился достаточно минималистичным относительно текстильного оформления. В отделке мебели в основном присутствует состаренная кожа и нубук. Окна оформлены деревянными ставнями(шаттерсами).
Яркой изюминкой стали ковры дизайнера Кэтрин Мартин, оформившей декорации к фильму по одноименному роману Фрэнсиса Скотта Фицджеральда "Великий Гэтсби". Основными декоративными акцентами являются предметы современного искусства из коллекции заказчика.













