Заказчиком этого проекта стал холостой молодой человек 26 лет, который работает промышленным дизайнером. Он обратился к дизайнеру Александре Петропавловской за помощью в дизайне интерьера. Главной задачей было задействовать каждый метр и не загромоздить квартиру.
им. В.И.Сурикова – факультет архитектуры. С 2006 года работает дизайнером интерьера. В настоящее время является идейным вдохновителем и дизайнером студии "Триограф". Считает, что главное в жилье – комфортность и гармоничность. Несмотря на это, часто применяет смелые приемы для реорганизации пространства.
Заказчик и перепланировка
Хозяин квартиры — молодой человек 26 лет, промышленный дизайнер. Еще пока не женат, без детей.
Квартира для хозяина является одновременно жильем, студией и местом, куда можно привести клиента или друзей. При совсем небольшом метраже пришлось задействовать каждый метр, чтобы вместить все необходимое и в то же время создать ощущение свободного пространства и незагроможденности.
Перепланировка
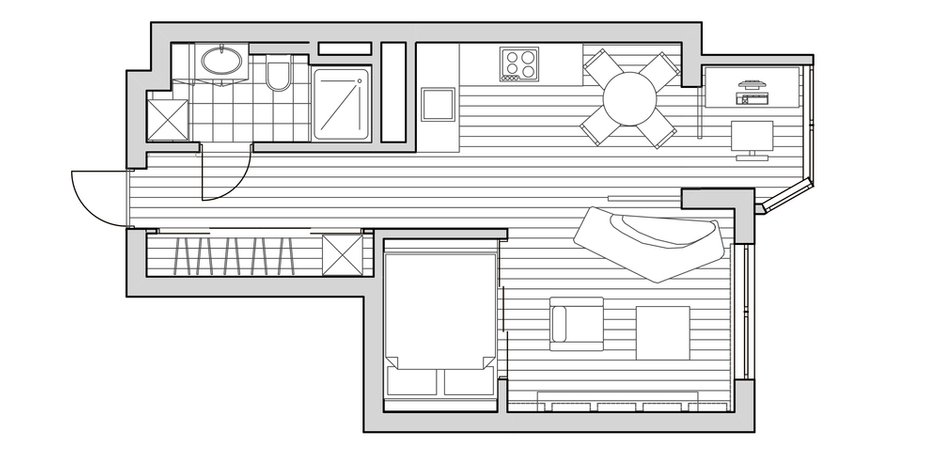
Перепланировка была, и достаточно серьезная, что обусловлено неудачной изначальной планировкой. Пришлось снести стену, разделяющую комнату и кухню, потому что исходная планировка не отвечала требованиям заказчика – не помещалось спальное место и не было ощущения студии. Также были объединены ванная комната и туалет и демонтировано окно и балконная дверь между кухней и балконом.
Свет и цвет
Свет поделен на несколько функциональных групп: для общего освещения коридора, кухни, ванной комнаты использованы встроенные светильники фабрики Massive. Для освещения обеденной зоны использован подвес KELLY S01 итальянского производства, для освещения гостиной зоны – торшер FLOS (Италия) и накладной светильник Linea Light (Италия).
Для общего фона квартиры был выбран нейтральный белый цвет, при этом каждая из функциональных зон выделена своим мотивом. В гостеприимной зоне отдыха – это рельефная стена и акцентное малиновое кресло, в кухне-столовой — кресла жизнерадостной зеленой расцветки на фоне темно-синей стены, в мини-спальне — контрастные обои (Harlequim) в мелкую полоску.
Мебель
Так как заказчик – промышленный дизайнер, он приложил руку к созданию некоторых объектов. В частности, диван, кресло и стол будут выполняться на заказ в отечественных мастерских, кресла – Thefurnish, кухня – Ikea, шкаф на заказ, Россия. Стол на балконе, кресло и лампа – Cosmorelax. ТВ-тумба – Boconcept.
Декор и текстиль
Текстиль в проекте самый простой, частично ИКЕА, частично на заказ.
Возможные сложности
Самым сложным будет реализация декоративной перегородки из стекла и мебели.
Сроки
От 9 месяцев до года (из-за заказных позиций сложно сказать точно).
Бюджет
2 млн рублей.
Советы читателям InMyRoom
- Самое важное для любого жилья – правильная организация пространства. Прежде всего, нужно хорошо продумать, что и где будет находиться и насколько это будет удобным.
- Вторым этапом нужно определиться с предпочитаемой цветовой гаммой, основными цветами и дополнительными. Подобрать максимально гармоничную палитру, отвечающую вашему вкусу.
- Следующий этап – подбор мебели и светильников. Для футуризма характерны плавные линии, необычные формы, современные материалы, разноцветные свечения для светильников.
Планировка
Метраж
Общий метраж – 40 кв. м
Метраж по помещениям:
студия – 27,7 кв. м
спальное место – 4,4 кв. м
ванная комната – 4,4 кв. м
балкон – 3,4 кв. м
Высота потолков – 2,6 м
Дополнительная информация
Кухня
Отделка: покраска Dulux
Напольное покрытие: паркетная доска Tarkett
Мебель: на заказ
Гарнитур: Ikea
Смесители: hansgrohe
Освещение: Studio Italia Design KELLY S0
Ванная/санузел
Отделка: плитка Marazzi – Citta (IT), мозаика Giaretta – Black Ice (IT)
Напольное покрытие: плитка Papier ABK-ceramika (IT)
Мебель: Duravit
Кабина/ванна/санфаянс: Duravit
Смесители: Hansgrohe
Освещение: Massive
Гостиная
Отделка: покраска Dulux
Напольное покрытие: паркетная доска Tarkett
Мебель: Boconcept, на заказ
Текстиль: Ikea
Освещение: Linea Light, Massive
Спальня
Напольное покрытие: паркетная доска Tarkett
Текстиль: Ikea
Освещение: Massive
Коридор
Отделка: покраска Dulux
Напольное покрытие: паркетная доска Tarkett
Мебель: на заказ
Декор: на заказ
Освещение: Massive

















