Этот проект интересен во всех смыслах. Во-первых, дизайнер сделал это пространство трансформируемым, вписав в зону гостиной полностью раскладывающуюся конструкцию, которая превращается в спальню и кабинет.
Во-вторых, сама по себе концепция интерьера не совсем обычна для большинства дизайнов, которые мы ежедневно можем наблюдать в проектах. Здесь в рамках проекта ElBelaruso воплощены традиционные для старинного белорусского стиля приемы размещения мебели, а также использованы экологичные материалы и узоры на текстиле.
Заказчик и пожелания
Экспериментальный проект для креативной молодой пары, которым важна культура и история их белорусских предков. Заказчики хотели нечто отличное от интерьеров, которые осуществляют современные дизайнеры, возможно, что-то связанное со стилем этно.
Планировка
Мы частично снесли перегородку между гостиной и кухней, а также часть стены в ванной.
Система хранения
В прихожей есть шкаф для одежды, который также относится к спальне. В спальне двустворчатый шкаф со створками с двух сторон, который в задвинутом виде становится частью гостиной. В кухне 2 шкафа для хранения. Также здесь есть дополнительные ящики, которые скрыты в ступеньках, ведущих в гостиную и лоджию. В лоджии пол поднят, специально для того, чтобы разместить систему хранения для закаток, инструментов и прочих вещей.
Свет
Люстры и подвесы в зонах гостиной, кухни и ванной авторского индивидуального дизайна из стеклянных трубочек имитируют славянские подвесы из соломки. Также мы применяли светодиодные подсветки на потолке.
Цвет
В этом интерьере мы решили использовать сочетание черного, белого и красного. Это основные цвета белорусских орнаментов (точнее, их предков). Все стены делались под покраску, имеется штукатурка типа «короед» в обеденной зоне.
Мебель
Встраиваемые и кухонные шкафы с резными фасадами были выполнены по эскизам дизайнера, так же как и шкаф-трансформер, который передвигается по рельсам. Диван от Grande Walzer фабрики Busnelli в гостиной, стулья на кухне от Wire Chair DKR. ТВ-тумба, экран ванны, умывальник, стульчики и столики тоже выполнены по эскизам дизайнера.
Пространство может трансформироваться. Гостиная за счет передвижного шкафа и опускаемой из стены кровати делится местом с полноценной спальней, которая закрывается шторой. Передвижной шкаф трансформируется в кабинет благодаря откидной дверце и выдвижным полкам из простенка. Также выдвижная часть имеет открывающиеся дверцы спереди и сзади.
Декор и текстиль
Для пошива штор и подушек мы использовали лен и нанесли на него традиционный белорусский орнамент. Жаккардовые и твидовые ткани использовались для покрывал и обивок.
Рядом с кроватью в спальной зоне висит фреска с изображением женщины в белорусском народном костюме. Также в декоре интерьера имеются репродукции картин Шагала и Малевича, древних белорусских икон, резные кувшины и хрустальные вазы.
Основополагающим центром данного интерьера в прямом и переносном смысле стала печь, относительно которой и выстраивался весь остальной интерьер, его углы, зоны и предметы.
Стиль
Поскольку наш отдельный проект называется El’Belaruso и посвящен этно-белорусскому славянскому интерьеру, то в проекте важно было воссоздать пространство жизнедеятельности белорусских (русских, литвинских) славян/селян, взяв элементы из их быта и вставив их в современное пространство.
Здесь мы отталкивались от не совсем правильного и уютного для Запада, но абсолютно верного и идеального для восточно-славянских культур принципа диагоналей или даже углов. У нас все акценты, фокусы и оси смещаются в углы – печь, стол, икона, а позже и телевизор. Данный проект – это не воссоздание, а скорее интерпретация славянских мотивов в современном интерьере.
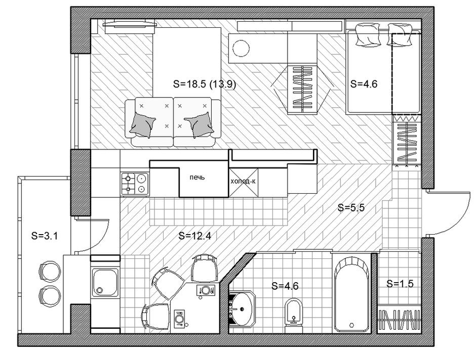
Планировка
Метраж
Общий метраж – 45,6 квадратного метра
Гостиная – 18,5 (13,9) квадратного метра
Спальня – 4,6 квадратного метра
Кухня-столовая – 12,4 квадратного метра
Санузел – 4,6 квадратного метра
Гардеробная – 1,5 квадратного метра
Лоджия – 3,1 квадратного метра
Высота потолков – 2,7 метра
Дополнительная информация
Кухня
Отделка – штукатурка типа «короед», обшивки и конструкции из состаренных досок, кирпич клинкерный Sydney – черный рифленый NF 20
Полы – паркет Сoswick бразильский орех, плитка по эскизам с нанесением узоров Слуцких поясов
Мебель – кухонные шкафы под заказ, фасады фрезерная резка + покраска, лак, столешница матовая из искусственного акрилового камня, подоснова для шкафчиков конструкция печи из кирпича. Стулья Wire Chair
Техника – электрокамин Dimplex, вытяжка Falmec Ellittica, варочная панель Miele, духовка Bosch
Мойка и смеситель – Dornbracht
Освещение – торшер Verilux Brookfield Deluxe Floor Lamp, имитация славянских подвесов из соломки, светодиодная лента.
Гостиная
Отделка – штукатурка типа короед, кирпич клинкерный Sydney черный рифленый NF 20, фреска
Полы – паркет Сoswick бразильский орех
Мебель: шкафы (передвигаемый по рельсу) по эскизам/чертежам под заказ, фасады фрезерная резка + покраска, лак, диван Grande Walzer от фабрики Busnelli, журнальный столик, опора под откидной стол, тумба под ТВ, стульчик – все для изготовление под заказ по чертежам/эскизам дизайнера проекта
Текстиль – льняные ткани для штор, подушек с нанесением белорусского узора по эскизам. Также жаккардовые и твидовые ткани для покрывал, обивок.
Техника – принтер Samsung SCX-4200, телевизор Ergo TV
Освещение – Торшер Rich brilliant willing-quart floor lamp, люстра имитация славянских подвесов из соломки, светодиодная лента, утопленные встраиваемые светильник S-65928-SLV, Германия
Спальня
Отделка – 3D панели под белорусскую резьбу, покраска «Снежка»
Полы – паркет Сoswick Бразильский орех
Мебель – шкафы (передвигаемый по рельсу) по эскизам/чертежам под заказ, фасады фрезерная резка + покраска, лак. Кровать откидная из стенки
Освещение – утопленные встраиваемые светильник S-65928-SLV Германия. Световые короба (белый пластик) встроенные в мебельные конструкции
Коридор
Отделка – покраска «Снежка», каленое стекло
Полы – паркет Сoswick Бразильский орех, плитка по эскизам с нанесением узоров слуцких поясов
Мебель – шкафы и двери по эскизам/чертежам под заказ, фасады фрезерная резка + покраска, лак
Текстиль – льняные ткани для шторы в спальню (гостиную)
Освещение – утопленные встраиваемые светильник S-65928-SLV, Германия
Техника – стиральная машина Samsung WF0400N1NE, спрятанная в мебельную конструкцию
Ванная/санузел
Отделка – 3D-панели под белорусскую резьбу, состаренная обработанная доска и конструкция из них, плитка по эскизам с нанесением узоров слуцких поясов
Мебель – экран ванны, конструкция умывальника, стульчик, инсталляция для унитаза изготовлены по эскизам/чертежам дизайнера
Освещение – утопленные встраиваемые светильник S-65928-SLV, Германия. Подвесные светильники – имитация подвесов из соломки
Сантехника – овальная компактная модель черной ванны The Petit фабрики Castello, душевая лейка Grohe Rainshower System 310, умывальник Vitra – Memoria, смеситель – Grohe Veris Titanium


























