Сервис

8 (800) 300 61 76
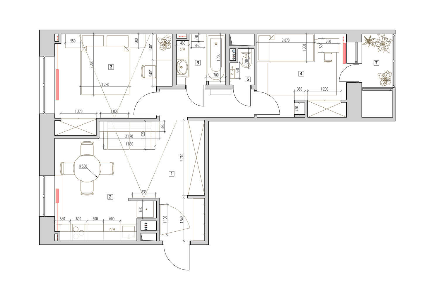
Фотография: Планировки в стиле , Квартира, Проект недели, Светлана Старцева – фото на INMYROOM
Закрыть
Olga Lopteva
Журналист
4,6
– 23 отзыва
Гамма
Другие фото в этом проекте
Сохранить
Подобрать товары
Закрыть
Информация