Сервис

8 (863) 310 30 53
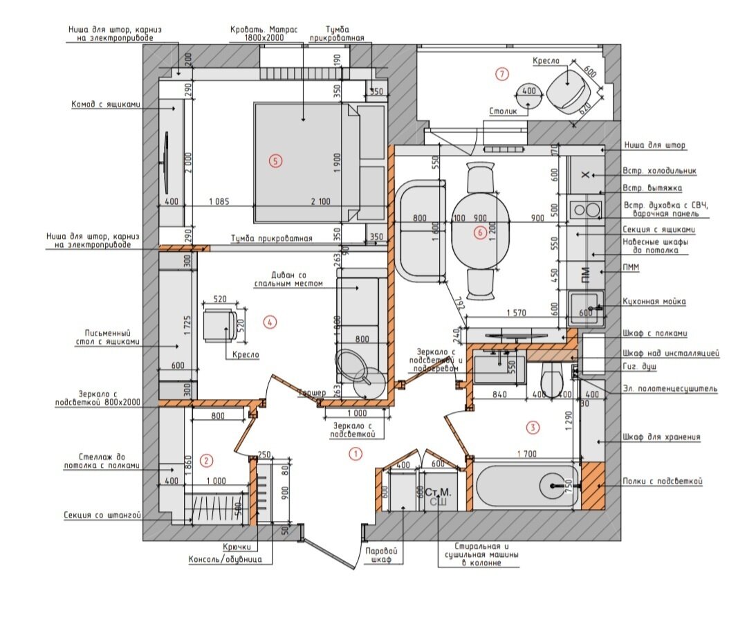
Фотография: Планировки в стиле , Квартира, Проект дня, Москва, 1 комната, 40-60 метров, современный с элементами минимализма и скандинавского стиля, Регина Гарипова – фото на INMYROOM
Закрыть
Marina Timokhina
Дизайн
4,6
– 26 отзывов
Гамма
Другие фото в этом проекте
Сохранить
Подобрать товары
Закрыть
Информация