Сервис

8 (812) 416 09 00
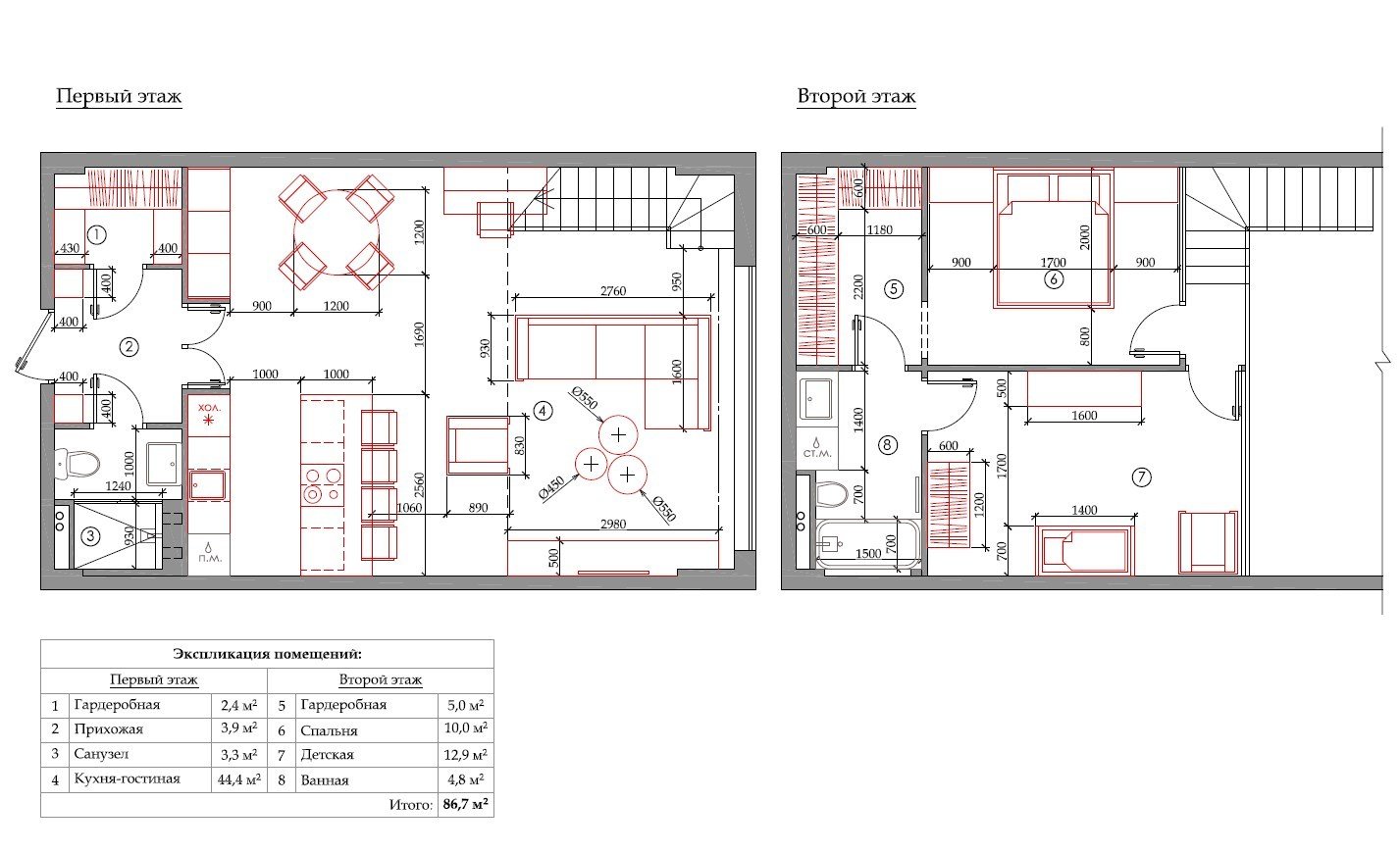
Фотография: Планировки в стиле , Современный, Квартира, Россия, Delightfull, Проект недели, Москва, Дина Салахова, PORADA, MERIDIANI, SANCAL, Duravit, Cosmorelax, как оформить двухуровневую квартиру, дизайн двухуровневых апартаментов, дизайн квартиры со свободной планировкой, дизайн апартаментов в TriBeCa Apartments, TriBeCa Apartments – фото на INMYROOM
Закрыть
Информация