
Закрыть
Olga Lopteva
Журналист
Фото из статьи
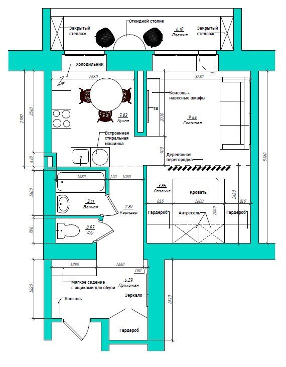
Как рационально зонировать однушку: проект в Одинцово4,7
– 11 отзывов
Гамма
Другие фото в этом проекте
Сохранить
Подобрать товары
Закрыть
Сервис

Разрешить использование cookies?
Мы используем cookies для удобства и персонализации. Подробности в Политике конфиденциальности. Согласие можно отозвать в любой момент.