Сервис

8 (800) 300 61 76
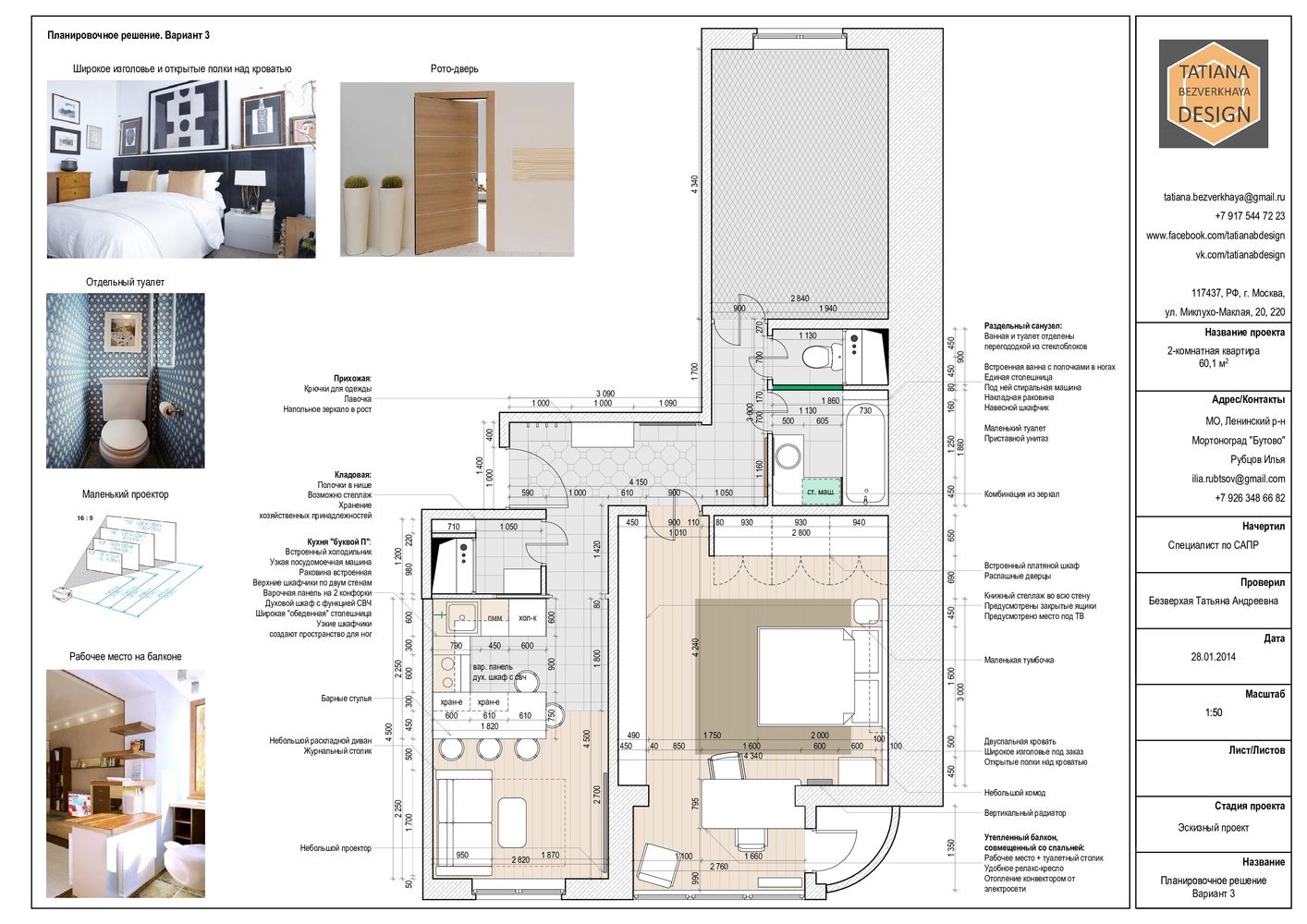
Фотография: Планировки в стиле , Скандинавский, Квартира, Проект недели, Московская область, Татьяна Безверхая, новостройка, Монолитный дом, 2 комнаты, 40-60 метров, 60-90 метров – фото на INMYROOM
Закрыть
Сохранить
Подобрать товары
Закрыть
Информация