Сервис

8 (800) 300 61 76
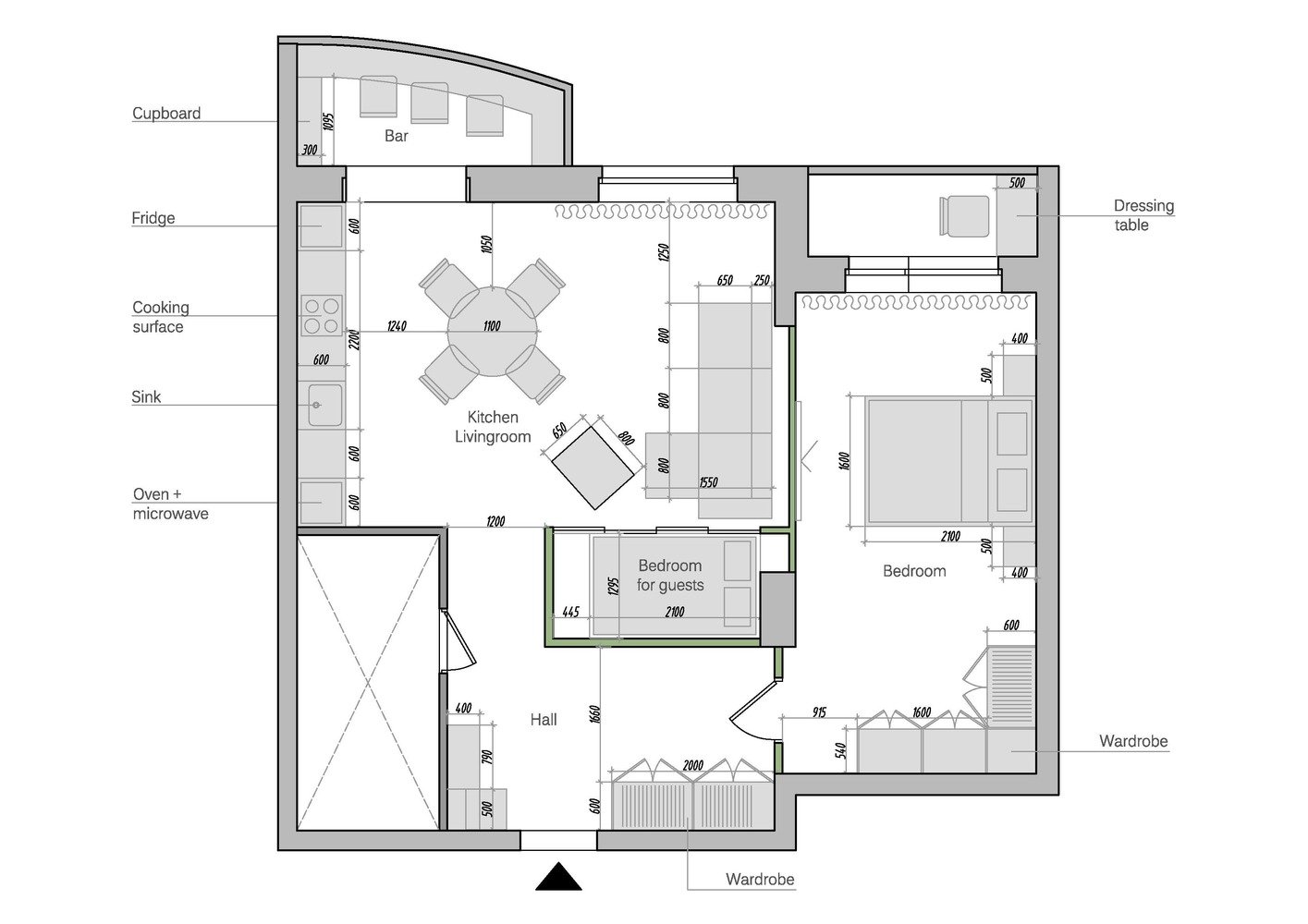
Фотография: Планировки в стиле , Квартира, Проект недели, Краснодар, Екатерина Домрачева – фото на INMYROOM
Закрыть
Неля Кенжебаева
Журналист
5,0
– 2 отзыва
Гамма
Сохранить
Подобрать товары
Закрыть
Информация